Sold

$289,900

Características:
  • 3 Quartos
  • 2 Banheiros
  • 127 m²
Visão Geral
  • ID: MFRW7874982
  • Quartos: 3
  • Banheiros: 2
  • Tamanho: 127 m²
Detalhes do Imóvel
Observações
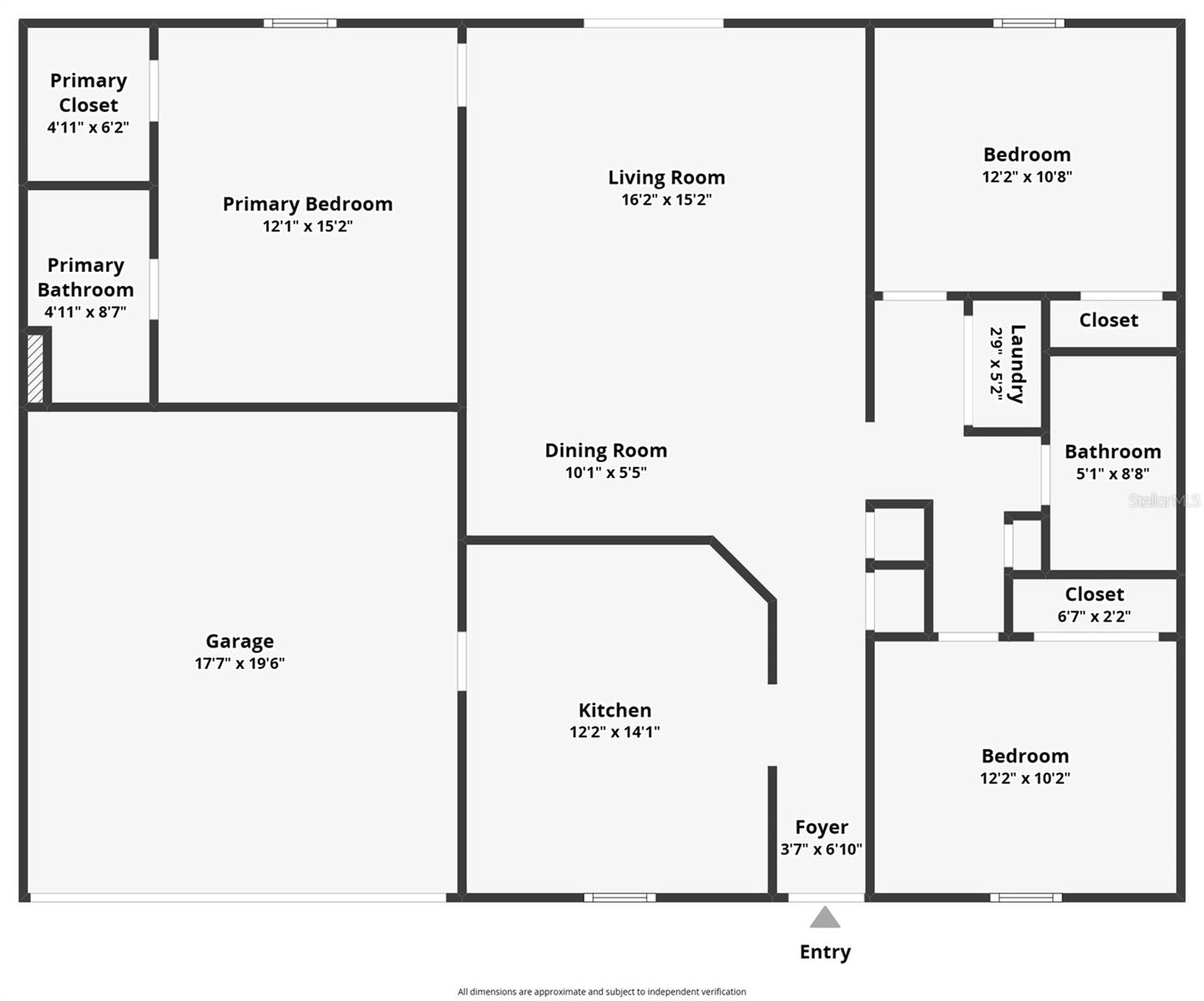
Múltiplas ofertas- envie apenas o melhor e o mais alto. Procurando espaço, privacidade e liberdade? Esta casa bem mantida de 3 quartos e 2 banheiros no coração de Spring Hill oferece tudo o que você precisa-sem o HOA para restringir seu estilo de vida! Situado em um lote totalmente cercado de 0,23 acres, esta casa possui uma planta de quarto dividida desejável, cheia de luzes naturais e espaços confortáveis. As áreas de estar e jantar de conceito aberto criam um fluxo fácil, perfeito para a vida diária e o entretenimento. A cozinha está localizada na frente da casa e oferece bastante gabinete e espaço no balcão, juntamente com uma janela voltada para a frente que traz ao sol da manhã. A espaçosa suíte primária inclui um closet e um banho privativo, enquanto os dois quartos adicionais oferecem espaço flexível para a família, os hóspedes ou um escritório em casa. Saia para apreciar o grande quintal cercado - perfeito para animais de estimação, jardinagem, atividades ao ar livre ou adicionar uma piscina. Com uma garagem de 2 carros e sem HOA, você tem a liberdade de trazer seu barco, RV ou personalizar a propriedade para atender às suas necessidades. Convenientemente localizado perto de fazer compras, restaurantes, parques e rotas de passageiros, esta casa combina conforto, espaço e oportunidade.
Considerações Financeiras
Preço:
$289,900
Taxa de HOA:
N/D
Valor do Imposto:
$3138.74
Preço por m²:
$215.64
Descrição Legal do Imposto:
Spring Hill Unit 6 BLK 292 LOT 16 ORB 287 PG 576
Características Exteriores
Tamanho do Lote:
10000
Características do Lote:
N/D
Beira-mar:
Não
Vagas de Estacionamento:
N/D
Estacionamento:
N/D
Telhado:
Telha
Piscina:
Não
Características da Piscina:
N/D
Características Interiores
Quartos:
3
Banheiros:
2
Aquecimento:
Elétrico
Resfriamento:
Central Aérea
Eletrodomésticos:
Máquina de lavar louça, micro-ondas, fogão
Mobiliado:
Não
Andar:
Tapete, Azulejo Cerâmico
Níveis:
Um
Características Adicionais
Subtipo de Imóvel:
Residência Unifamiliar
Estilo:
N/D
Ano de Construção:
2003
Tipo de Construção:
Bloquear
Vagas na Garagem:
Sim
Vagas Cobertas:
N/D
Orientação da Fachada:
Sul
Animais Permitidos:
Não
Condição Especial:
Nenhum
Características Adicionais:
Iluminação, caixa de correio privada
Características Adicionais 2:
N/D
Mapa
  • Endereço
    8461 APPLE ORCHARD RD
Fale com um profissional
Por Que Nos Escolher?
  • Comunicação e Transparência
  • Negociação Qualificada
  • Rede Profissional Robusta
  • Suporte Pós-Venda
Propriedades em Destaque

Imóveis relacionados

avt
Daniel Dourado
$ 479,990
avt
Daniel Dourado
$ 649,990
avt
Daniel Dourado
$ 639,990
avt
Daniel Dourado
$ 320,000
avt
Daniel Dourado
$ 364,900
avt
Daniel Dourado
$ 649,000
avt
Daniel Dourado
$ 299,000