Active

$340,000

Características:
  • 4 Quartos
  • 2 Banheiros
  • 193 m²
Visão Geral
  • ID: MFRW7863686
  • Quartos: 4
  • Banheiros: 2
  • Tamanho: 193 m²
Detalhes do Imóvel
Observações
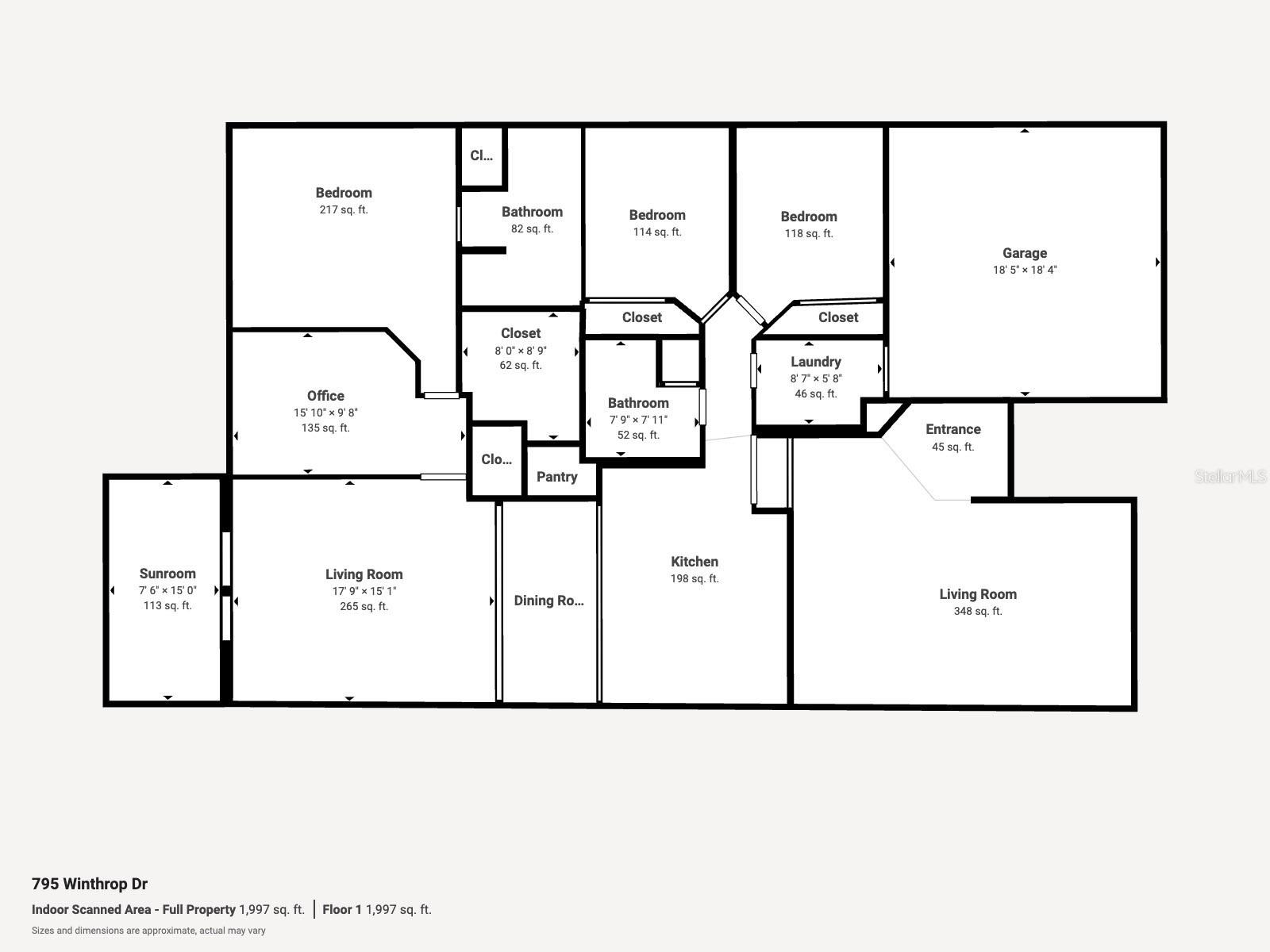
O vendedor pode considerar concessões ao comprador se feitas em uma oferta. Dê uma olhada neste 3/2/2 & den extremamente bem conservado, em um terreno de esquina nas Aldeias de Avalon. Esta casa possui uma combinação formal aberta de sala de estar e sala de jantar, além de uma sala familiar perto de uma cozinha muito espaçosa com armários de madeira real, balcões de Corian, grande ilha central e despensa. O ar condicionado foi substituído em dezembro de 2023, o triturador de lixo 4/2024, os chuveiros e o piso dos banheiros têm apenas 7 meses e um aquecedor de água sem tanque mais novo. Os recursos da comunidade incluem piscina, academia, parque para cães e HOA MUITO baixo sem CDD! Convenientemente localizado perto da Suncoast Parkway. Você pode andar de bicicleta em casa e percorrer quilômetros pela trilha Suncoast. Esta casa fica a poucos minutos da Veterans Parkway (SR 589), tornando-a um trajeto muito fácil para Tampa, aeroporto de Tampa e todas as cidades adjacentes. Centralmente localizado perto de restaurantes, lojas, entretenimento, escolas, hospitais e muito mais. Agende uma visita e faça desta linda casa a sua!
Considerações Financeiras
Preço:
$340,000
Taxa de HOA:
165
Valor do Imposto:
$2453
Preço por m²:
$163.46
Descrição Legal do Imposto:
ALDEIAS EM AVALON FASE 1 BLK 18 LOTE 29
Características Exteriores
Tamanho do Lote:
12602
Características do Lote:
N/D
Beira-mar:
Não
Vagas de Estacionamento:
N/D
Estacionamento:
N/D
Telhado:
Telha
Piscina:
Não
Características da Piscina:
N/D
Características Interiores
Quartos:
4
Banheiros:
2
Aquecimento:
Central, Elétrica
Resfriamento:
Central Aérea
Eletrodomésticos:
Descarte, secadora, micro-ondas, fogão, geladeira, aquecedor de água sem tanque, lavadora
Mobiliado:
Não
Andar:
Azulejo cerâmico, vinil luxuoso
Níveis:
Um
Características Adicionais
Subtipo de Imóvel:
Residência Unifamiliar
Estilo:
N/D
Ano de Construção:
2007
Tipo de Construção:
Bloco, Estuque
Vagas na Garagem:
Sim
Vagas Cobertas:
N/D
Orientação da Fachada:
Leste
Animais Permitidos:
Não
Condição Especial:
Nenhum
Características Adicionais:
Calçada
Características Adicionais 2:
Consulte a HOA
Mapa
  • Endereço
    795 WINTHROP DR
Fale com um profissional
Por Que Nos Escolher?
  • Comunicação e Transparência
  • Negociação Qualificada
  • Rede Profissional Robusta
  • Suporte Pós-Venda
Propriedades em Destaque

Imóveis relacionados

avt
Daniel Dourado
$ 499,000
avt
Daniel Dourado
$ 240,000
avt
Daniel Dourado
$ 349,900
avt
Daniel Dourado
$ 2,449,000
avt
Daniel Dourado
$ 425,000
avt
Daniel Dourado
$ 529,990
avt
Daniel Dourado
$ 845,000
avt
Daniel Dourado
$ 319,000