Active

$415,000

Características:
  • 4 Quartos
  • 3 Banheiros
  • 180 m²
Visão Geral
  • ID: MFRTB8457186
  • Quartos: 4
  • Banheiros: 3
  • Tamanho: 180 m²
Detalhes do Imóvel
Observações
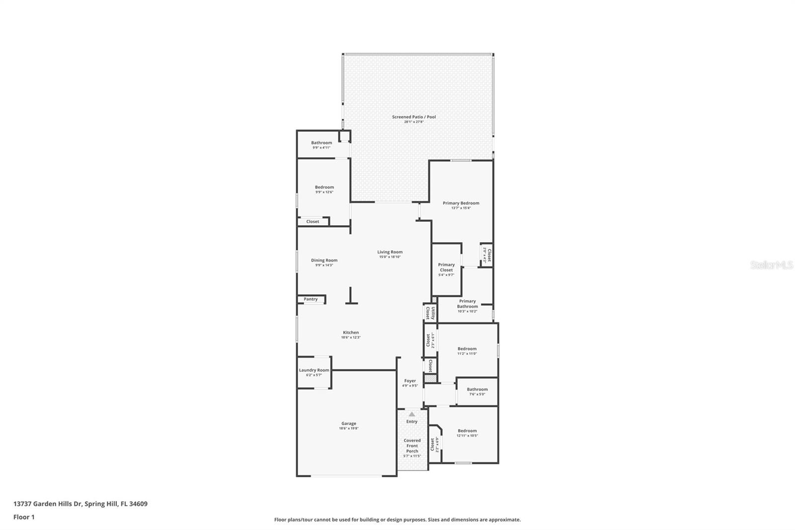
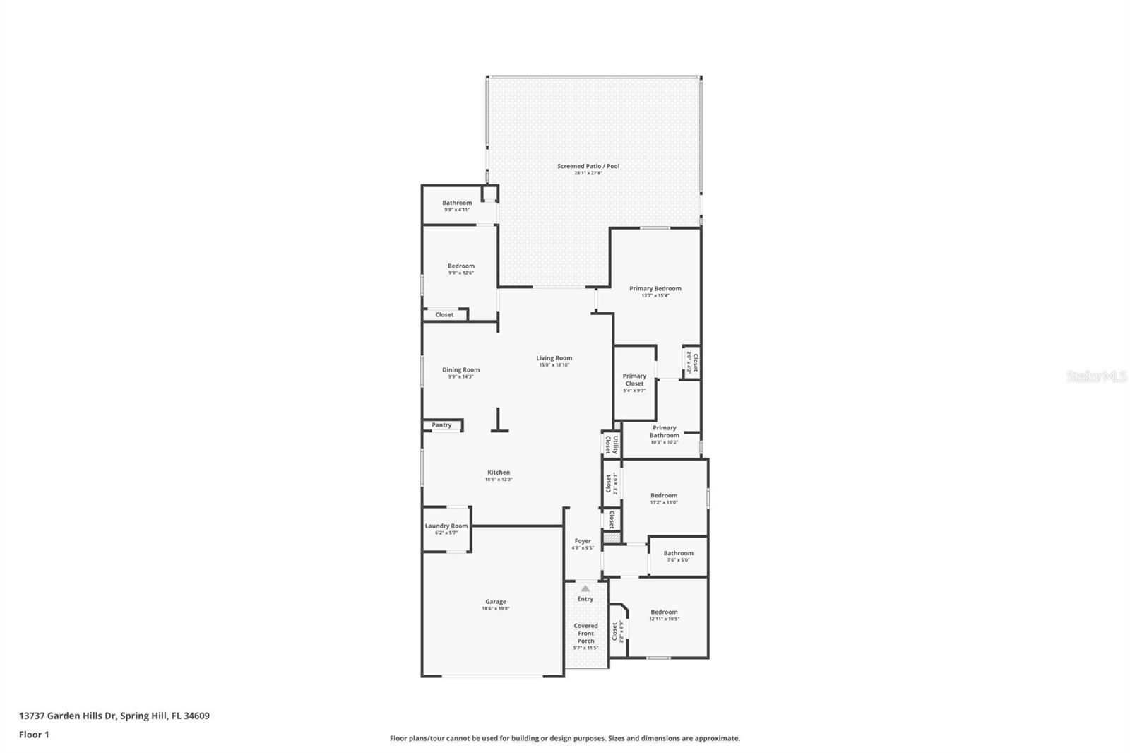
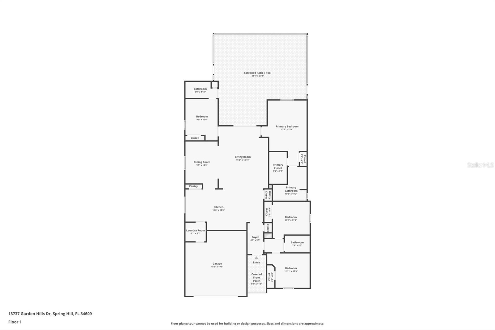
Imagine voltar para casa e encontrar sua piscina particular, muito espaço para todos e um layout que torna a vida mais fácil. Esta casa lindamente conservada, construída em 2019, em Spring Hill, oferece exatamente isso - com 4 quartos, 3 banheiros completos e uma garagem para 2 carros em um bairro tranquilo que ainda mantém você perto de tudo. Uma das primeiras coisas que você notará nesta casa é como a planta é cuidadosamente projetada. Bem na frente da casa estão dois quartos de hóspedes e um banheiro completo, criando um espaço confortável para familiares ou visitantes que se sente separado do resto da casa. Um terceiro quarto de hóspedes inclui banheiro privativo com acesso direto à área da piscina, tornando-o perfeito como banheira de piscina, suíte de hóspedes ou até mesmo home office se você trabalha remotamente. À medida que você se move para o coração da casa, o espaço se abre para uma área de estar iluminada e de conceito aberto, onde a cozinha, a sala de jantar e a sala de estar fluem juntas sem esforço. O piso de cerâmica nas principais áreas de estar mantém a casa fresca e fácil de manter, enquanto os quartos oferecem carpete macio para maior conforto. A cozinha foi construída tanto para a vida cotidiana quanto para o entretenimento, com bancadas de granito, abundantes armários de madeira, balcão envolvente, despensa e uma aconchegante área de jantar. Há também um amplo espaço para refeições formais, perfeito para jantares de feriados, celebrações ou simplesmente para reuniões com amigos e familiares. Escondida na parte de trás da casa, a suíte principal oferece um retiro tranquilo com armários duplos - incluindo um closet espaçoso - e um banheiro privativo com penteadeira grande e box amplo. Saia e você descobrirá uma das melhores características da casa: sua própria piscina privada (2020) cercada por um pátio pavimentado e um quintal totalmente cercado com uma cerca de vinil branco. Poucas casas nesta comunidade têm piscinas privadas, tornando esta uma descoberta especial. Quer você esteja desfrutando de manhãs tranquilas com café ou organizando dias de fim de semana na piscina com os amigos, este quintal foi projetado para ser apreciado o ano todo. Os destaques adicionais incluem iluminação embutida, ventiladores de teto nos quartos, uma conveniente lavanderia interna e uma espaçosa garagem para 2 carros com espaço de armazenamento extra. A própria comunidade oferece um HOA baixo, SEM zona de inundação e SEM CDD, junto com comodidades como piscina comunitária, academia de ginástica, playground, clube e caixa de correio comunitária. A localização é outro grande bônus. A Suncoast Parkway fica a poucos minutos de distância, tornando o deslocamento para Tampa incrivelmente conveniente, enquanto parques, lojas, restaurantes e itens essenciais do dia a dia estão todos nas proximidades. Se você está procurando uma casa mais nova com espaço, flexibilidade e piscina privativa em Spring Hill, esta realmente se destaca. E para os compradores que exploram opções de financiamento criativas – esta casa também pode ser adquirida sem verificação de rendimentos, criando uma oportunidade única que raramente está disponível.
Considerações Financeiras
Preço:
$415,000
Taxa de HOA:
220
Valor do Imposto:
$4488.78
Preço por m²:
$213.37
Descrição Legal do Imposto:
ALDEIAS EM AVALON FASE 3B-3 BLK 8 LOTE 14
Características Exteriores
Tamanho do Lote:
6250
Características do Lote:
N/D
Beira-mar:
Não
Vagas de Estacionamento:
N/D
Estacionamento:
N/D
Telhado:
Telha
Piscina:
Sim
Características da Piscina:
No chão
Características Interiores
Quartos:
4
Banheiros:
3
Aquecimento:
Central
Resfriamento:
Central Aérea
Eletrodomésticos:
Máquina de lavar louça, descarte, aquecedor elétrico de água, micro-ondas, fogão, geladeira
Mobiliado:
Sim
Andar:
Tapete, Azulejo
Níveis:
Um
Características Adicionais
Subtipo de Imóvel:
Residência Unifamiliar
Estilo:
N/D
Ano de Construção:
2020
Tipo de Construção:
Bloco, Estuque
Vagas na Garagem:
Sim
Vagas Cobertas:
N/D
Orientação da Fachada:
Sul
Animais Permitidos:
Sim
Condição Especial:
Nenhum
Características Adicionais:
Calçada, portas de correr
Características Adicionais 2:
O COMPRADOR DEVE CONFIRMAR DIRETAMENTE COM A ASSOCIAÇÃO.
Mapa
  • Endereço
    13737 GARDEN HILLS DR
Fale com um profissional
Por Que Nos Escolher?
  • Comunicação e Transparência
  • Negociação Qualificada
  • Rede Profissional Robusta
  • Suporte Pós-Venda
Propriedades em Destaque

Imóveis relacionados

avt
Daniel Dourado
$ 399,000
avt
Daniel Dourado
$ 1,150,000
avt
Daniel Dourado
$ 489,000
avt
Daniel Dourado
$ 599,500
avt
Daniel Dourado
$ 750,000
avt
Daniel Dourado
$ 384,990
avt
Daniel Dourado
$ 1,195,000
avt
Daniel Dourado
$ 675,000
avt
Daniel Dourado
$ 379,500