Active

$680,000

Características:
  • 4 Quartos
  • 3 Banheiros
  • 276 m²
Visão Geral
  • ID: MFRTB8450460
  • Quartos: 4
  • Banheiros: 3
  • Tamanho: 276 m²
Detalhes do Imóvel
Observações
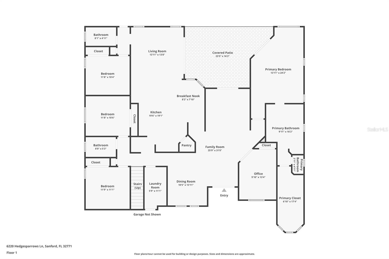
Bem-vindo a esta residência unifamiliar de 4 quartos e 3 banheiros, lindamente conservada, perfeitamente posicionada em um terreno de esquina desejável em uma das áreas residenciais mais charmosas de Sanford. Com novos pisos, espaços flexíveis e atualizações modernas, esta casa oferece o equilíbrio perfeito entre conforto, estilo e conveniência. TELHADO NOVO PAGO E CHEGANDO! NOVO Pisos 2025, NOVOS Banheiros 2025, (2) Unidades AC: 2019 e 2020, Aquecedor de Água 2019, Geladeira 2023. As espaçosas áreas de estar e jantar fluem perfeitamente para a cozinha bem equipada, que possui eletrodomésticos de aço inoxidável, bancadas em granito e amplos armários, ideais para a vida cotidiana ou para receber familiares e amigos. A planta cuidadosa inclui quartos de tamanhos generosos e banheiros bem conservados, criando um ambiente caloroso e acolhedor. Um dos destaques desta casa é a sala bônus acima da garagem. Este espaço versátil pode ser usado como suíte de hóspedes privada, sala de mídia, home office, sala de jogos ou sala de hobby, oferecendo infinitas possibilidades para se adequar ao seu estilo de vida. O lote de esquina adiciona privacidade extra, apelo ao meio-fio e espaço ao ar livre, tornando-o perfeito para jardinagem, relaxamento ou entretenimento. A Cross Seminole Trail atravessa este bairro, dando-lhe acesso a quilômetros de espaço bem cuidado para andar de bicicleta, caminhar ou correr. Buckingham Estates fica a poucos minutos de restaurantes e lojas incríveis em Sanford E em Lake Mary, cada um com uma variedade de eventos comunitários para entreter e encantar você. Convenientemente, você também encontrará fácil acesso às vias expressas, o que o torna a uma curta distância de carro de diversas praias ou do centro de Orlando e de todos os parques de diversões. Esta casa combina conforto moderno, vida flexível e o estilo de vida rico pelo qual a área de Heathrow é conhecida. Pronto para morar e cheio de personalidade, esta é uma oportunidade que você não vai querer perder.
Considerações Financeiras
Preço:
$680,000
Taxa de HOA:
584
Valor do Imposto:
$7255.51
Preço por m²:
$228.57
Descrição Legal do Imposto:
LOTE 218 BUCKINGHAM ESTATES FASES 3 E 4 PB 65 PGS 65 - 68
Características Exteriores
Tamanho do Lote:
10327
Características do Lote:
No município, paisagístico, calçada, pavimentado
Beira-mar:
Não
Vagas de Estacionamento:
N/D
Estacionamento:
Entrada
Telhado:
Telha
Piscina:
Não
Características da Piscina:
N/D
Características Interiores
Quartos:
4
Banheiros:
3
Aquecimento:
Central
Resfriamento:
Central Aérea
Eletrodomésticos:
Máquina de lavar louça, descarte, secadora, micro-ondas, fogão, geladeira, lavadora
Mobiliado:
Sim
Andar:
Laminado
Níveis:
Dois
Características Adicionais
Subtipo de Imóvel:
Residência Unifamiliar
Estilo:
N/D
Ano de Construção:
2005
Tipo de Construção:
Bloco, Estuque
Vagas na Garagem:
Sim
Vagas Cobertas:
N/D
Orientação da Fachada:
Sul
Animais Permitidos:
Sim
Condição Especial:
Nenhum
Características Adicionais:
Iluminação, Caixa de Correio Privada, Calçada
Características Adicionais 2:
Verifique as restrições da cidade e do condado.
Mapa
  • Endereço
    6220 HEDGESPARROWS LN
Fale com um profissional
Por Que Nos Escolher?
  • Comunicação e Transparência
  • Negociação Qualificada
  • Rede Profissional Robusta
  • Suporte Pós-Venda
Propriedades em Destaque

Imóveis relacionados

avt
Daniel Dourado
$ 2,000,000
avt
Daniel Dourado
$ 379,000
img
  • Featured
  • Active
Single Family Residence

SR-2, Km. 84.3 Int., B St CORCOVADO WARD

  • 3
  • 1
  • 117 m²
avt
Daniel Dourado
$ 215,000
avt
Daniel Dourado
$ 1,700,000
avt
Daniel Dourado
$ 420,000
avt
Daniel Dourado
$ 410,000
avt
Daniel Dourado
$ 795,000
avt
Daniel Dourado
$ 625,000
avt
Daniel Dourado
$ 454,999