Active

$289,000

Características:
  • 3 Quartos
  • 2 Banheiros
  • 97 m²
Visão Geral
  • ID: MFRT3532685
  • Quartos: 3
  • Banheiros: 2
  • Tamanho: 97 m²
Detalhes do Imóvel
Observações
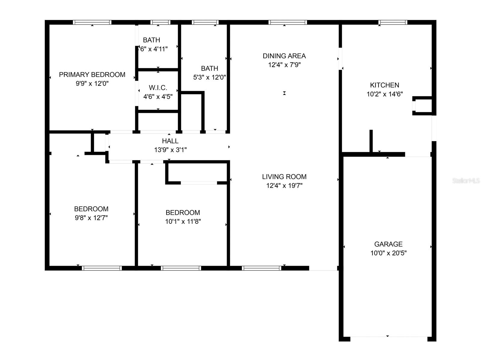
Bem -vindo à sua casa de sonho! Esta casa lindamente renovada de 3 quartos e 1,5 banheiros oferece uma mistura perfeita de comodidades modernas e charme clássico. Situado em um belo bairro, esta propriedade está pronta e esperando que você o chame de casa. Aproveite o luxo e a durabilidade do piso totalmente novo em toda a casa. O coração da casa apresenta uma cozinha impressionante e atualizada equipada com utensílios de aço inoxidável e bancadas elegantes de blocos de açougueiro, ideal para refeições diárias e entretenimento. O espaçoso quarto primário inclui um meio banho conveniente para sua privacidade e conforto. Novo telhado instalado em 2023, garantindo a paz de espírito e a longevidade. Não perca esta rara oportunidade de possuir uma casa totalmente reformada com recursos de primeira linha e uma localização privilegiada. Agende uma visualização hoje e imagine -se vivendo nesta mistura perfeita de conforto e estilo.
Considerações Financeiras
Preço:
$289,000
Taxa de HOA:
N/D
Valor do Imposto:
$2792.89
Preço por m²:
$274.45
Descrição Legal do Imposto:
Lote 12 blk c woodmere park 2nd replat pb 13 pg 73
Características Exteriores
Tamanho do Lote:
7006
Características do Lote:
N/D
Beira-mar:
Não
Vagas de Estacionamento:
N/D
Estacionamento:
N/D
Telhado:
Telha
Piscina:
Não
Características da Piscina:
N/D
Características Interiores
Quartos:
3
Banheiros:
2
Aquecimento:
Central
Resfriamento:
Central Aérea
Eletrodomésticos:
Aquecedor elétrico de água, fogão, geladeira
Mobiliado:
Não
Andar:
Vinil
Níveis:
Um
Características Adicionais
Subtipo de Imóvel:
Residência Unifamiliar
Estilo:
N/D
Ano de Construção:
1973
Tipo de Construção:
Concreto
Vagas na Garagem:
Sim
Vagas Cobertas:
N/D
Orientação da Fachada:
Sul
Animais Permitidos:
Sim
Condição Especial:
Nenhum
Características Adicionais:
Caixa de correio privada
Características Adicionais 2:
N/D
Mapa
  • Endereço
    2840 CENTRAL DR
Fale com um profissional
Por Que Nos Escolher?
  • Comunicação e Transparência
  • Negociação Qualificada
  • Rede Profissional Robusta
  • Suporte Pós-Venda
Propriedades em Destaque

Imóveis relacionados

avt
Daniel Dourado
$ 419,000
avt
Daniel Dourado
$ 330,000
avt
Daniel Dourado
$ 449,500
avt
Daniel Dourado
$ 399,000
avt
Daniel Dourado
$ 725,000
avt
Daniel Dourado
$ 550,000
avt
Daniel Dourado
$ 385,000