Active

$759,000

Características:
  • 5 Quartos
  • 3 Banheiros
  • 222 m²
Visão Geral
  • ID: MFRO6358156
  • Quartos: 5
  • Banheiros: 3
  • Tamanho: 222 m²
Detalhes do Imóvel
Observações
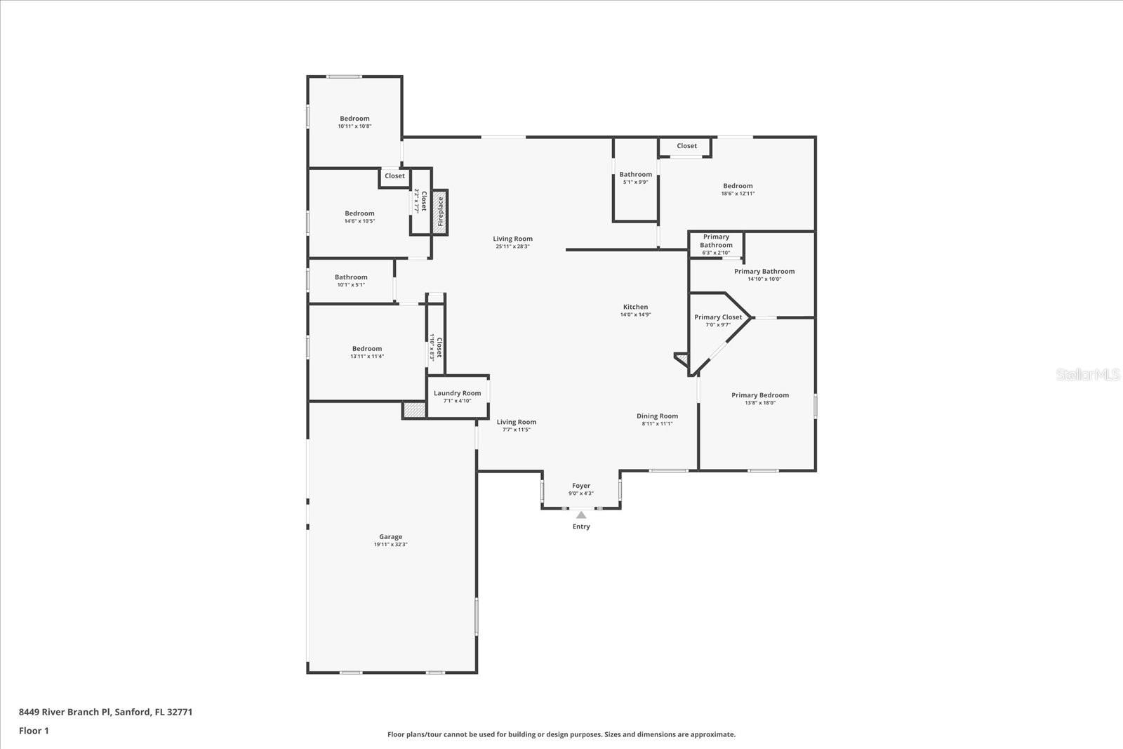
A novidade no mercado é esta lindamente renovada casa com PISCINA de 5 quartos, 3 banheiros completos e garagem para 3 carros. Situada no muito procurado condomínio fechado de River Crest, em Sanford, esta casa ocupa mais de um acre de terra, oferecendo privacidade e tranquilidade excepcionais. Uma entrada circular leva a uma grande entrada com azulejos de travertino. No interior, grandes tábuas com aparência de madeira cobrem cada centímetro quadrado do piso. No centro da planta aberta está uma cozinha gourmet personalizada com ilha dupla, bancadas e backsplash de quartzo e novos eletrodomésticos de aço inoxidável preto. A suíte principal é espaçosa e consiste em um grande closet com prateleiras personalizadas e um lindo banheiro com chuveiro de azulejos de grande formato e pia dupla. Ao lado da cozinha há uma grande sala de estar com lareira de laje do chão ao teto. No final do corredor, à esquerda, estão 3 quartos e um banheiro atualizado com pia dupla, e à direita está um 5º quarto e um banheiro privativo com box amplo de azulejos personalizado. Saia pelas portas francesas para a varanda dos fundos totalmente protegida e para a piscina e spa recém-reformados com todos os equipamentos novos. Atualizações adicionais incluem telhado totalmente novo, sistema de ar condicionado mais recente, novas portas e abridores de garagem, novas portas e acabamentos, nova iluminação, ventiladores e acessórios, novo aquecedor de água, uma nova camada de tinta por dentro e por fora e paisagismo renovado. Os moradores de River Crest desfrutam de comodidades exclusivas, incluindo quadras de tênis e um calçadão panorâmico que desce até o rio Wekiva. A comunidade também organiza uma variedade de reuniões sociais e eventos de férias, criando uma atmosfera de bairro calorosa e acolhedora. River Crest combina perfeitamente a paz da natureza com a conveniência de rodovias, lojas e restaurantes próximos - uma rara oportunidade de possuir uma casa verdadeiramente distinta em um ambiente extraordinário.
Considerações Financeiras
Preço:
$759,000
Taxa de HOA:
835
Valor do Imposto:
$4044.57
Preço por m²:
$316.25
Descrição Legal do Imposto:
LOTE 13 CRISTA DO RIO PH 2 PB 38 PGS 93 A 95
Características Exteriores
Tamanho do Lote:
43352
Características do Lote:
N/D
Beira-mar:
Não
Vagas de Estacionamento:
N/D
Estacionamento:
Entrada circular, entrada de automóveis, garagem voltada para o lado
Telhado:
Telha
Piscina:
Sim
Características da Piscina:
Gunite, no solo, gabinete de tela
Características Interiores
Quartos:
5
Banheiros:
3
Aquecimento:
Central, Elétrica
Resfriamento:
Central Aérea
Eletrodomésticos:
Máquina de lavar louça, aquecedor elétrico de água, micro-ondas, fogão, geladeira
Mobiliado:
Sim
Andar:
Telha
Níveis:
Um
Características Adicionais
Subtipo de Imóvel:
Residência Unifamiliar
Estilo:
N/D
Ano de Construção:
1994
Tipo de Construção:
Bloco, Estuque
Vagas na Garagem:
Sim
Vagas Cobertas:
N/D
Orientação da Fachada:
Oeste
Animais Permitidos:
Sim
Condição Especial:
Nenhum
Características Adicionais:
Portas francesas, iluminação, caixa de correio privada, portas de correr
Características Adicionais 2:
N/D
Mapa
  • Endereço
    8449 RIVER BRANCH PL
Fale com um profissional
Por Que Nos Escolher?
  • Comunicação e Transparência
  • Negociação Qualificada
  • Rede Profissional Robusta
  • Suporte Pós-Venda
Propriedades em Destaque

Imóveis relacionados

avt
Daniel Dourado
$ 535,000
avt
Daniel Dourado
$ 299,000
avt
Daniel Dourado
$ 380,000
avt
Daniel Dourado
$ 396,800
avt
Daniel Dourado
$ 299,900
avt
Daniel Dourado
$ 370,000
avt
Daniel Dourado
$ 747,000
avt
Daniel Dourado
$ 375,000