Active

$460,000

Características:
  • 4 Quartos
  • 3 Banheiros
  • 167 m²
Visão Geral
  • ID: MFRO6282493
  • Quartos: 4
  • Banheiros: 3
  • Tamanho: 167 m²
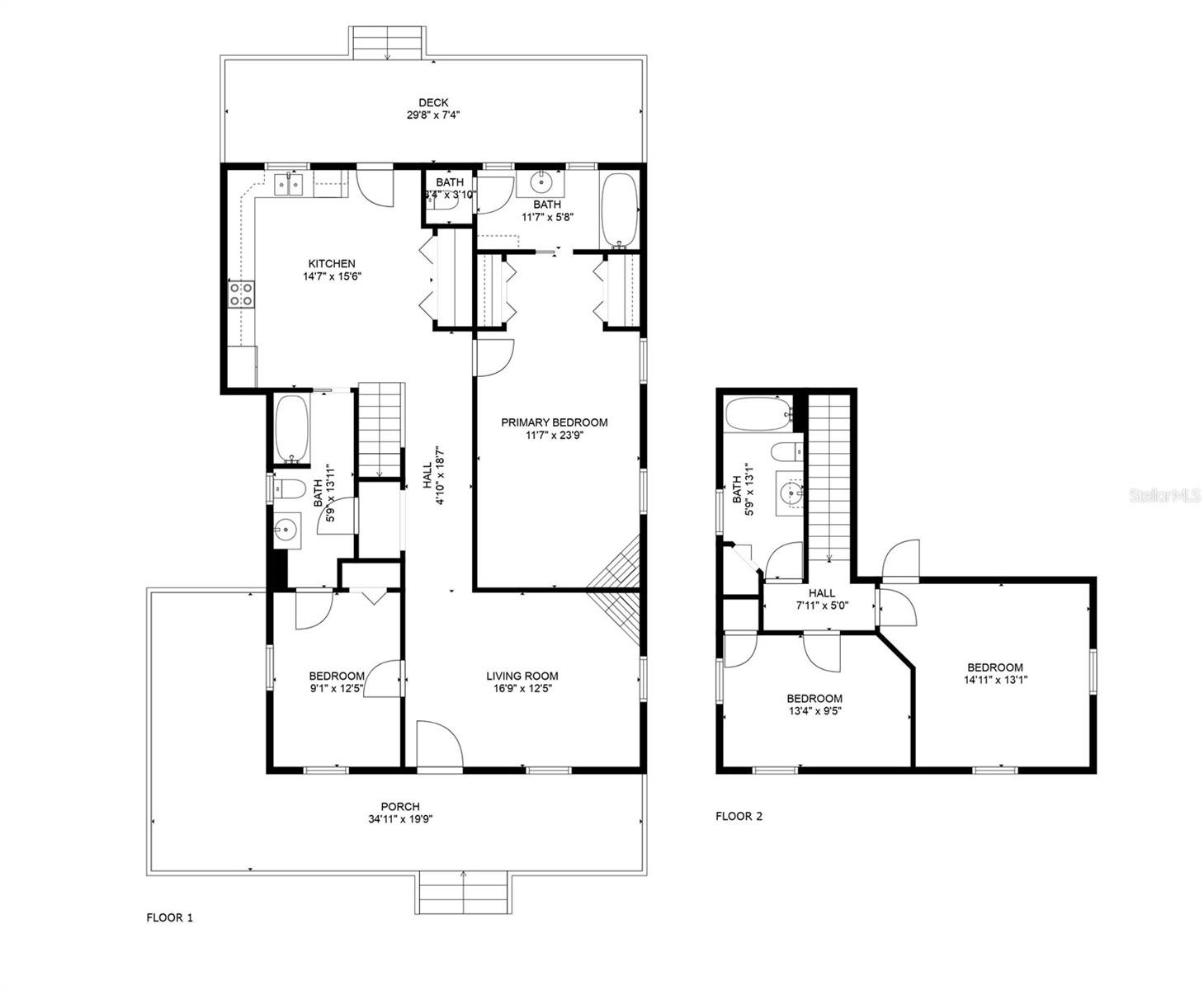
Detalhes do Imóvel
Observações
Sua oportunidade perfeita está aqui! Esta é uma chance de possuir uma casa de 4 quartos e 3 banheiros em um lote grande no centro de Sanford. Quer uma piscina? Há muito espaço. Esta casa por volta de 1900 possui um sistema de tratamento de água, um novo telhado em 2024, unidade de compressor de transagem nova 2025 e um novo aquecedor de água 2023. Como sua nova casa ou investimento, aninhada a apenas um quarteirão fora do distrito histórico designado, você pode realmente fazer com que este paladar e estilo de vida sem preservação ou restrições de HOA. Aproveite o rio, marina, restaurantes, bares e variedade constante de eventos especiais. Se voltar para casa é mais seu estilo, aproveite o lote de grandes dimensões, a varanda da frente coberta pela metade, o deck traseiro ou a oficina. O vendedor está oferecendo um crédito de até 14k por piso/decoração para ajudá -lo a fazer o ambiente certo para você. Não demore, agende sua exibição hoje !!!
Considerações Financeiras
Preço:
$460,000
Taxa de HOA:
N/D
Valor do Imposto:
$1702
Preço por m²:
$255.27
Descrição Legal do Imposto:
Todos os lote 9 e s 1/2 do lote 8 blk 8 tr 7 cidade de Sanford PB 1 pg 62
Características Exteriores
Tamanho do Lote:
11700
Características do Lote:
Limites da cidade, lote grande, pavimentado
Beira-mar:
Não
Vagas de Estacionamento:
N/D
Estacionamento:
Nenhum, fora da rua, na rua, padrões de estacionamento
Telhado:
Telha
Piscina:
Não
Características da Piscina:
N/D
Características Interiores
Quartos:
4
Banheiros:
3
Aquecimento:
Central, Elétrica, Bomba de Calor
Resfriamento:
Central Aérea
Eletrodomésticos:
Máquina de lavar louça, descarte, esquentador elétrico, exaustor, micro-ondas, fogão, exaustor, geladeira
Mobiliado:
Não
Andar:
Carpete, Azulejo Cerâmico, Laminado
Níveis:
Dois
Características Adicionais
Subtipo de Imóvel:
Residência Unifamiliar
Estilo:
N/D
Ano de Construção:
1900
Tipo de Construção:
Quadro, revestimento de madeira
Vagas na Garagem:
Não
Vagas Cobertas:
N/D
Orientação da Fachada:
Oeste
Animais Permitidos:
Sim
Condição Especial:
Nenhum
Características Adicionais:
Armazenar
Características Adicionais 2:
N/D
Mapa
  • Endereço
    615 S LAUREL AVE
Fale com um profissional
Por Que Nos Escolher?
  • Comunicação e Transparência
  • Negociação Qualificada
  • Rede Profissional Robusta
  • Suporte Pós-Venda
Propriedades em Destaque

Imóveis relacionados

avt
Daniel Dourado
$ 759,900
avt
Daniel Dourado
$ 5,749,900
avt
Daniel Dourado
$ 1,675,000
avt
Daniel Dourado
$ 1,390,000
avt
Daniel Dourado
$ 595,500
avt
Daniel Dourado
$ 309,000
avt
Daniel Dourado
$ 1,200,000