Active

$750,000

Características:
  • Quartos
  • 0 Banheiros
  • 0 m²
Visão Geral
  • ID: MFRO6177187
  • Quartos:
  • Banheiros: 0
  • Tamanho: 0 m²
Detalhes do Imóvel
Observações
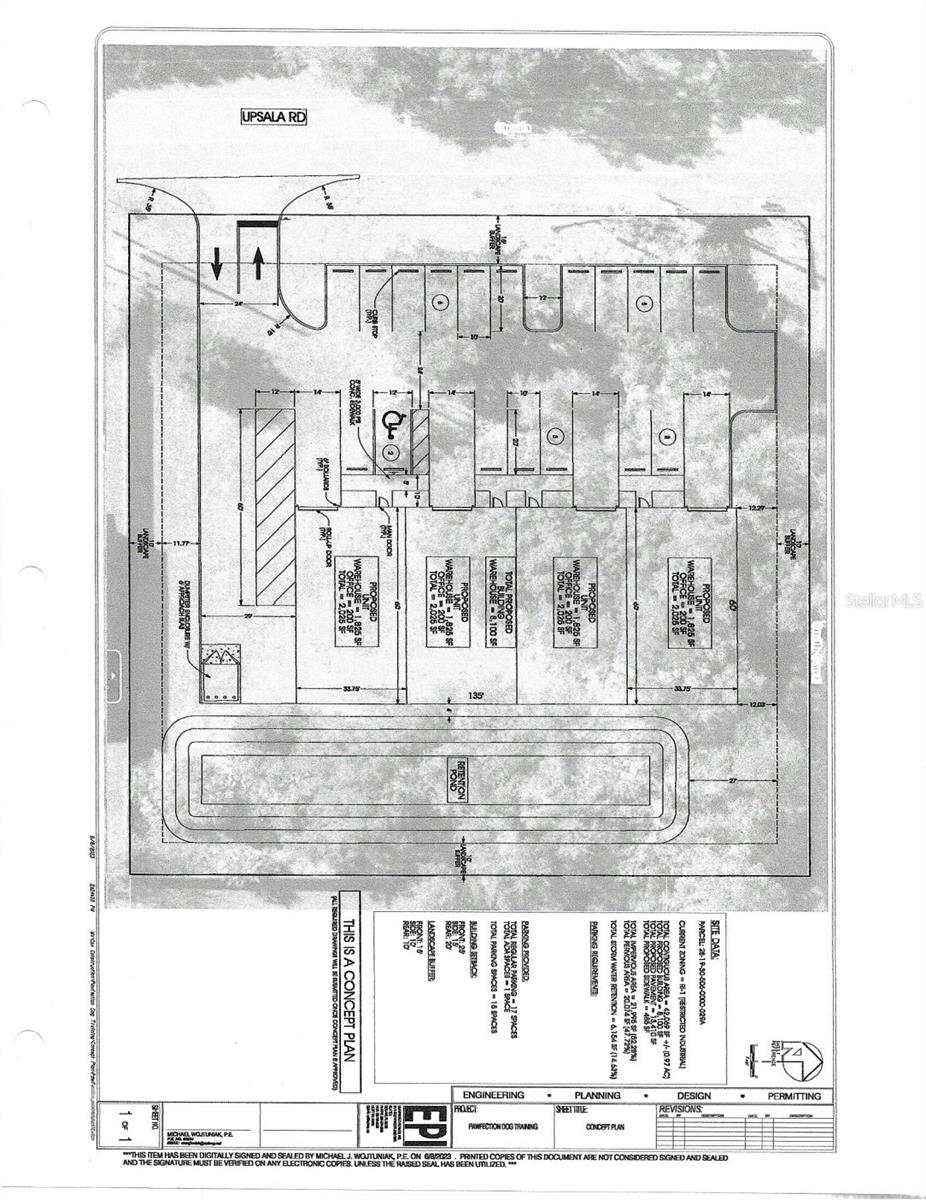
Este lote comercial exclusivo de 1 hectare localizado no North Metro Orlando. Este lote alto e seco é zonado RI-1 e é ideal para muitos usos (consulte o documento anexado), incluindo um espaço flexível, armazém, outros usos, incluindo clínica veterinária e canil. A fase I e a pesquisa têm menos de um ano de idade. O plano conceitual para um espaço flexível de 4 unidades, totalizando 8.100 SF (ainda não foi aprovado). Esse lote, diretamente na Upsala Rd, em Sanford (Seminole County), está em um local estratégico perto da I-4, Hwy 417 (The Beltway), Hwy 46 e Ushwy 17-92. Com a crescente demanda por espaços industriais impulsionados por indústrias de comércio eletrônico, logística e manufatura, essa propriedade apresenta uma oportunidade promissora de investimento. A proximidade com a infraestrutura de transporte aprimora seu apelo às empresas em geral. A crescente população e desenvolvimento econômico em Sanford e Seminole County contribuem para uma perspectiva favorável de mercado para propriedades industriais, tornando essa propriedade um ativo valioso com potencial de apreciação. Água pública e esgoto estão na propriedade. Um novo complexo de apartamentos de luxo foi construído do outro lado da rua.
Considerações Financeiras
Preço:
$750,000
Taxa de HOA:
N/D
Valor do Imposto:
$3592.95
Preço por m²:
$17.23
Descrição Legal do Imposto:
N 208,66 ft de W 208,67 ft do lote 29 Smiths 3rd subd pb 1 pg 86
Características Exteriores
Tamanho do Lote:
43541
Características do Lote:
Construível, limites da cidade
Beira-mar:
Não
Vagas de Estacionamento:
N/D
Estacionamento:
N/D
Telhado:
N/D
Piscina:
Não
Características da Piscina:
N/D
Características Interiores
Quartos:
Banheiros:
0
Aquecimento:
N/D
Resfriamento:
N/D
Eletrodomésticos:
N/D
Mobiliado:
Não
Andar:
N/D
Níveis:
N/D
Características Adicionais
Subtipo de Imóvel:
N/D
Estilo:
N/D
Ano de Construção:
N/D
Tipo de Construção:
N/D
Vagas na Garagem:
Não
Vagas Cobertas:
N/D
Orientação da Fachada:
Oeste
Animais Permitidos:
Não
Condição Especial:
Nenhum
Características Adicionais:
N/D
Características Adicionais 2:
N/D
Mapa
  • Endereço
    1199 UPSALA RD
Fale com um profissional
Por Que Nos Escolher?
  • Comunicação e Transparência
  • Negociação Qualificada
  • Rede Profissional Robusta
  • Suporte Pós-Venda
Propriedades em Destaque

Imóveis relacionados

img
  • Featured
  • Active

11375 N CIRCLE M AVE

  • 0
  • 0 m²
avt
Daniel Dourado
$ 835,000
avt
Daniel Dourado
$ 1,900,000
avt
Daniel Dourado
$ 800,000
img
  • Featured
  • Active

CUTTING HORSE WAY

  • 0
  • 0 m²
avt
Daniel Dourado
$ 299,900
avt
Daniel Dourado
$ 250,000
img
  • Featured
  • Active

17065 NW 306TH ST

  • 0
  • 0 m²
avt
Daniel Dourado
$ 269,900
img
  • Featured
  • Active

2019 ILLINOIS AVE NE

  • 0
  • 0 m²
avt
Daniel Dourado
$ 1,200,000
avt
Daniel Dourado
$ 389,000
avt
Daniel Dourado
$ 349,900
avt
Daniel Dourado
$ 1,390,000
avt
Daniel Dourado
$ 450,000
avt
Daniel Dourado
$ 1,200,000