Active

$370,000

Características:
  • 4 Quartos
  • 2 Banheiros
  • 179 m²
Visão Geral
  • ID: MFRT3541725
  • Quartos: 4
  • Banheiros: 2
  • Tamanho: 179 m²
Detalhes do Imóvel
Observações
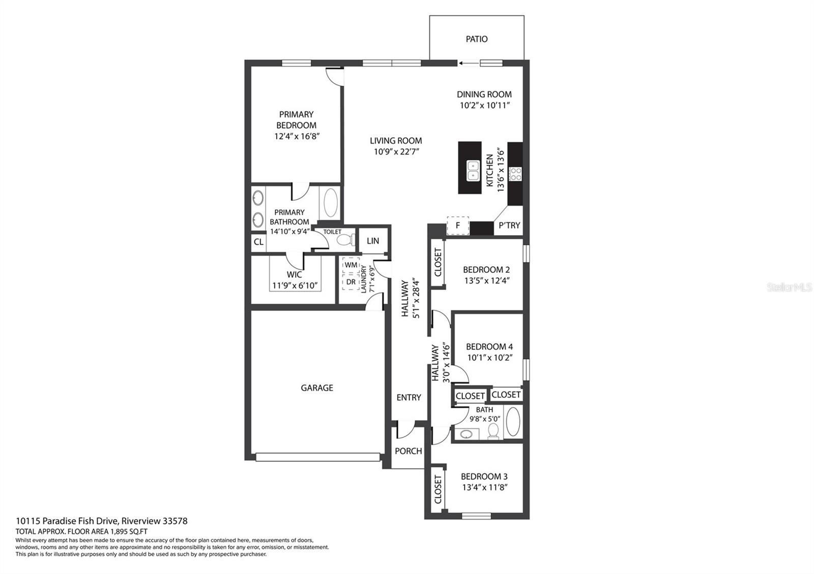
Descubra o charme desta ampla casa de 1.936 pés quadrados com 4 quartos e 2 banheiros. Entre nesta casa espaçosa e de conceito aberto, com piso de cerâmica nas áreas principais e carpete macio nos quartos. A cozinha possui uma ilha central e tem vista para um amplo café e sala de estar, perfeita para receber reuniões. Equipada com todos os eletrodomésticos pretos elegantes, armários quadrados com painel elevado escalonado de 36 ”e amplo espaço na bancada, a cozinha é elegante e funcional. Tanto os banheiros primários quanto os secundários apresentam armários quadrados de painel elevado de 34” e amplo espaço de toucador. A luxuosa suíte principal inclui um quarto de tamanho generoso conectado a uma suíte com pia dupla, bem como um espaçoso closet. Esta casa fica no coração florescente de Riverview e está convenientemente localizada com acesso às principais estradas que conectam você a Orlando, Bush Gardens, centro de Tampa e muitas outras atrações. 45 minutos ao norte das praias de Sarasota e não muito longe da exclusiva praia do resort “Little Harbor” em South Shore. Um novo hospital está a uma curta distância e muitas lojas e serviços públicos, além de novas escolas charter. Aproveite as comodidades que este condomínio oferece, como uma cabana, uma bela piscina e um parque para cães. A lavadora e secadora serão incluídas na casa. As câmeras de segurança estão excluídas. O chuveiro principal foi substituído por uma banheira de imersão e parede de vinil para fins de design. Agende sua exibição hoje mesmo!
Considerações Financeiras
Preço:
$370,000
Taxa de HOA:
144
Valor do Imposto:
$3431.28
Preço por m²:
$191.12
Descrição Legal do Imposto:
FERN HILL FASE 2 LOTE 229
Características Exteriores
Tamanho do Lote:
6000
Características do Lote:
No condado, paisagístico, nivelado, calçada
Beira-mar:
Não
Vagas de Estacionamento:
N/D
Estacionamento:
Entrada de automóveis, abridor de porta de garagem
Telhado:
Telha
Piscina:
Não
Características da Piscina:
N/D
Características Interiores
Quartos:
4
Banheiros:
2
Aquecimento:
Central
Resfriamento:
Central Aérea
Eletrodomésticos:
Máquina de lavar louça, descarte, secadora, micro-ondas, fogão, geladeira, lavadora
Mobiliado:
Não
Andar:
Tapete, Azulejo Cerâmico
Níveis:
Um
Características Adicionais
Subtipo de Imóvel:
Residência Unifamiliar
Estilo:
N/D
Ano de Construção:
2020
Tipo de Construção:
Bloco, Estuque
Vagas na Garagem:
Sim
Vagas Cobertas:
N/D
Orientação da Fachada:
Sul
Animais Permitidos:
Sim
Condição Especial:
Nenhum
Características Adicionais:
Sistema de Irrigação, Iluminação, Calçada
Características Adicionais 2:
O comprador é responsável por verificar essas informações de forma satisfatória.
Mapa
  • Endereço
    10115 PARADISE FISH DR
Fale com um profissional
Por Que Nos Escolher?
  • Comunicação e Transparência
  • Negociação Qualificada
  • Rede Profissional Robusta
  • Suporte Pós-Venda
Propriedades em Destaque

Imóveis relacionados

avt
Daniel Dourado
$ 245,000
avt
Daniel Dourado
$ 1,695,000
avt
Daniel Dourado
$ 399,000
avt
Daniel Dourado
$ 375,000
avt
Daniel Dourado
$ 445,000
avt
Daniel Dourado
$ 369,900
avt
Daniel Dourado
$ 939,000
avt
Daniel Dourado
$ 329,900