Active

$375,000

Características:
  • 4 Quartos
  • 2 Banheiros
  • 179 m²
Visão Geral
  • ID: MFRT3524046
  • Quartos: 4
  • Banheiros: 2
  • Tamanho: 179 m²
Detalhes do Imóvel
Observações
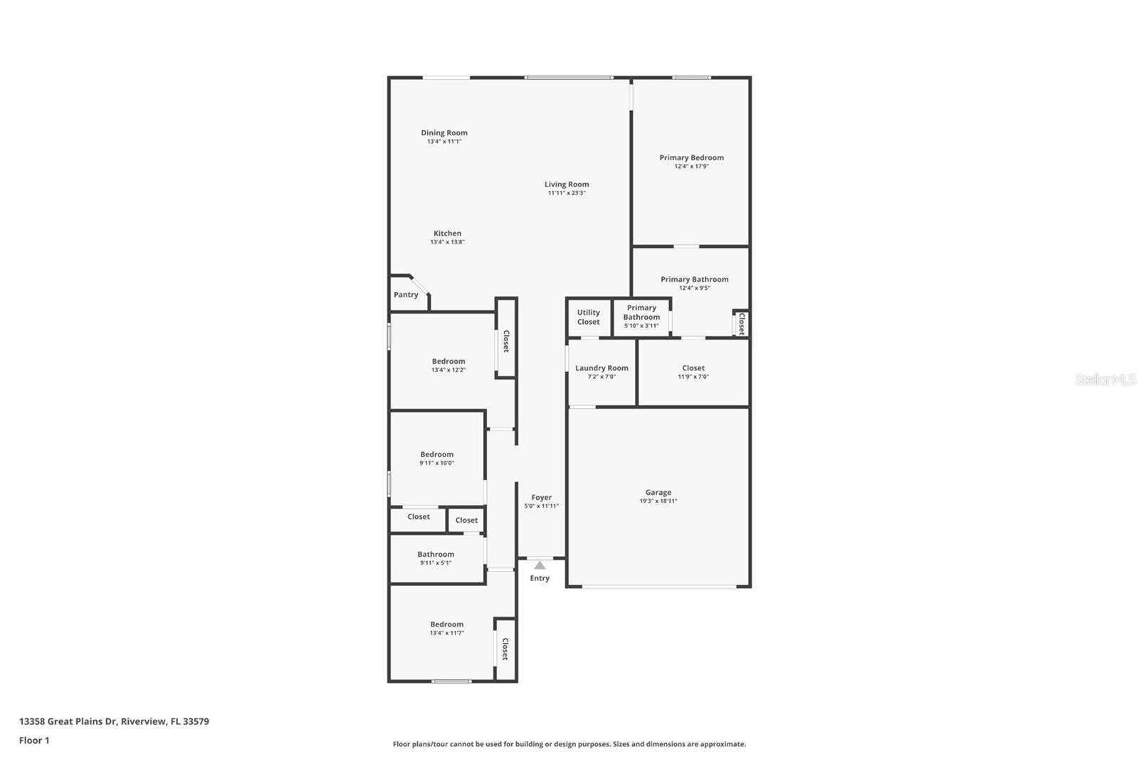
MELHORIA DE PREÇO! POR QUE ESPERAR PARA CONSTRUIR! O VENDEDOR TEM FLEXIBILIDADE PARA POSSÍVEIS CUSTO DE FECHAMENTO OU TAXA DE COMPRA. Esta espaçosa residência possui 4 quartos, 2 banheiros e 1.935 pés quadrados de espaço interior, proporcionando amplo espaço para famílias de todos os tamanhos. O coração da casa, a cozinha, conta com eletrodomésticos em aço inox e elegantes bancadas em granito, perfeitas para preparar deliciosas refeições e receber convidados. O layout bem projetado inclui uma aconchegante sala de estar, ideal para noites relaxantes com seus entes queridos, e uma área de jantar separada para desfrutarem de refeições juntos. Com quatro quartos, há muito espaço para descanso e relaxamento, e os dois banheiros proporcionam comodidade para as manhãs agitadas. Localizada em uma área desejável de Riverview, esta localização oferece fácil acesso a uma variedade de comodidades e atrações. Explore os parques próximos, como o Alafia River State Park, ou passe um dia à beira-mar no Lago Grady. Para fazer compras e jantar, vá ao Westfield Brandon Mall ou desfrute de um jantar à beira-mar no Circles Waterfront Restaurant. De volta a casa, você apreciará a manutenção e o cuidado meticulosos dispensados ​​a esta propriedade. Do paisagismo bem cuidado aos elegantes acabamentos interiores, esta casa está pronta para você se mudar e torná-la sua. Não perca a oportunidade! Agende uma exibição hoje!
Considerações Financeiras
Preço:
$375,000
Taxa de HOA:
87.26
Valor do Imposto:
$5318.77
Preço por m²:
$193.8
Descrição Legal do Imposto:
TRIPLE CREEK VILLAGE N E P LOTE 73
Características Exteriores
Tamanho do Lote:
6000
Características do Lote:
N/D
Beira-mar:
Não
Vagas de Estacionamento:
N/D
Estacionamento:
N/D
Telhado:
Telha
Piscina:
Não
Características da Piscina:
N/D
Características Interiores
Quartos:
4
Banheiros:
2
Aquecimento:
Central
Resfriamento:
Central Aérea
Eletrodomésticos:
Máquina de lavar louça, secadora, micro-ondas, fogão, geladeira, lavadora
Mobiliado:
Não
Andar:
Tapete, Azulejo Cerâmico
Níveis:
Um
Características Adicionais
Subtipo de Imóvel:
Residência Unifamiliar
Estilo:
N/D
Ano de Construção:
2022
Tipo de Construção:
Bloco, Estuque
Vagas na Garagem:
Sim
Vagas Cobertas:
N/D
Orientação da Fachada:
Sudoeste
Animais Permitidos:
Sim
Condição Especial:
Nenhum
Características Adicionais:
Calçada
Características Adicionais 2:
O Agente do Comprador deve verificar as restrições de locação com os documentos que regem o HOA e o Gerenciamento de Propriedade anexados.
Mapa
  • Endereço
    13358 GREAT PLAINS DR
Fale com um profissional
Por Que Nos Escolher?
  • Comunicação e Transparência
  • Negociação Qualificada
  • Rede Profissional Robusta
  • Suporte Pós-Venda
Propriedades em Destaque

Imóveis relacionados

avt
Daniel Dourado
$ 264,000
avt
Daniel Dourado
$ 889,000
avt
Daniel Dourado
$ 450,000
avt
Daniel Dourado
$ 415,000
avt
Daniel Dourado
$ 495,000
avt
Daniel Dourado
$ 370,000
avt
Daniel Dourado
$ 315,000
avt
Daniel Dourado
$ 699,900
avt
Daniel Dourado
$ 1,100,000
avt
Daniel Dourado
$ 685,000