Active

$349,000

Características:
  • 4 Quartos
  • 3 Banheiros
  • 213 m²
Visão Geral
  • ID: MFRO6335404
  • Quartos: 4
  • Banheiros: 3
  • Tamanho: 213 m²
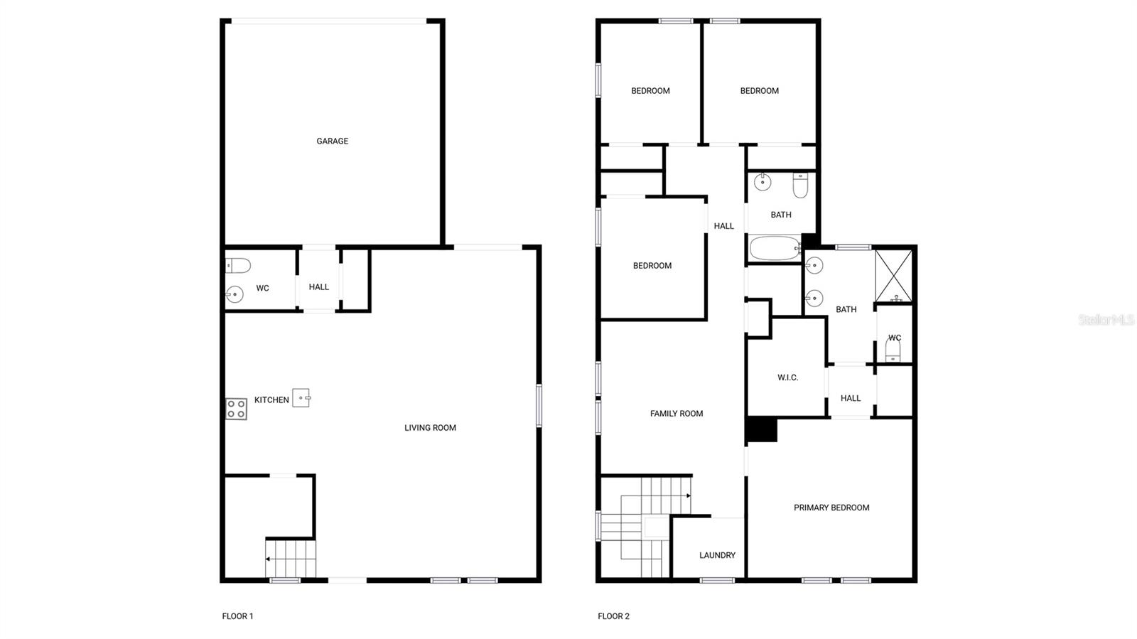
Detalhes do Imóvel
Observações
Uma ou mais fotos foram praticamente encenadas. Bem -vindo a esta propriedade lindamente mantida, com um esquema de tinta colorida neutra que lhe dá uma sensação fresca e moderna. A cozinha é o sonho de um chef com uma ilha central e todos os utensílios de aço inoxidável. O quarto principal é um santuário com um espaçoso closet. O banheiro principal foi projetado para conveniência com pias duplas. A propriedade também possui um pátio, perfeito para relaxamento ao ar livre. O interior foi pintado recentemente, aumentando o apelo geral. Esta propriedade é uma mistura perfeita de conforto e estilo, tornando-a uma cobertura de garantia doméstica imperdível.
Considerações Financeiras
Preço:
$349,000
Taxa de HOA:
100.34
Valor do Imposto:
$3909
Preço por m²:
$151.67
Descrição Legal do Imposto:
Triple Creek Fase 4 Village I Lote 143
Características Exteriores
Tamanho do Lote:
4878
Características do Lote:
N/D
Beira-mar:
Não
Vagas de Estacionamento:
N/D
Estacionamento:
Nenhum
Telhado:
Telha
Piscina:
Não
Características da Piscina:
N/D
Características Interiores
Quartos:
4
Banheiros:
3
Aquecimento:
Central
Resfriamento:
Central Aérea
Eletrodomésticos:
Aquecedor elétrico de água, outro, fogão
Mobiliado:
Não
Andar:
Tapete, Vinil
Níveis:
Dois
Características Adicionais
Subtipo de Imóvel:
Residência Unifamiliar
Estilo:
N/D
Ano de Construção:
2020
Tipo de Construção:
Tapume de vinil
Vagas na Garagem:
Sim
Vagas Cobertas:
N/D
Orientação da Fachada:
Nordeste
Animais Permitidos:
Sim
Condição Especial:
Nenhum
Características Adicionais:
Outro
Características Adicionais 2:
Comprador para verificar.
Mapa
  • Endereço
    13001 UPWARD PL
Fale com um profissional
Por Que Nos Escolher?
  • Comunicação e Transparência
  • Negociação Qualificada
  • Rede Profissional Robusta
  • Suporte Pós-Venda
Propriedades em Destaque

Imóveis relacionados

avt
Daniel Dourado
$ 439,990
avt
Daniel Dourado
$ 875,000
avt
Daniel Dourado
$ 429,900
avt
Daniel Dourado
$ 419,000
avt
Daniel Dourado
$ 299,990
avt
Daniel Dourado
$ 564,900
avt
Daniel Dourado
$ 320,990
avt
Daniel Dourado
$ 309,990
avt
Daniel Dourado
$ 404,990
avt
Daniel Dourado
$ 549,000
avt
Daniel Dourado
$ 235,000