Active

$1,399,000

Características:
  • 3 Quartos
  • 6 Banheiros
  • 332 m²
Visão Geral
  • ID: MFRO6385657
  • Quartos: 3
  • Banheiros: 6
  • Tamanho: 332 m²
Detalhes do Imóvel
Observações
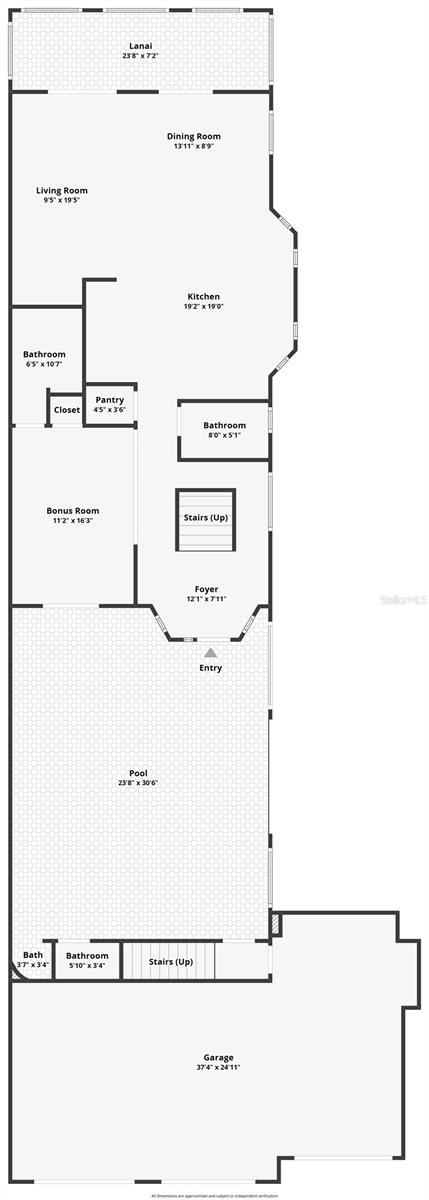
Residência privada com frente para golfe no primeiro tee do campo exclusivo de Jack Nicklaus do Reunion Resort. Esta casa ÚNICA combina o exterior natural da Flórida com acabamentos interiores de origem global. Lote premium superdimensionado – 78’ X 155’ – com servidão de 58’ na zona sul. Ao caminhar pela calçada de pedras, você é recebido no caminho para a porta da frente com um pátio coberto de vidro UV e uma piscina olímpica recém-reformada, telas suspensas permitem uma extensão do interior da casa para fora. No interior, uma janela circular de quase dois metros permite a entrada de muita luz. O piso de porcelanato italiano guiou você até a cozinha e sala de jantar/estar. Há um quarto à esquerda com banheiro privativo e portas sanfonadas. A cozinha possui armários planejados, bancadas em granito escuro, cooktops a gás e elétricos e vaporizador, com eletrodomésticos de última geração, complementados por backsplashes de mármore e vidro, inúmeras tomadas redondas, iluminação pendente e ampla luz natural proveniente de janelas voltadas para sul e portas com vista para o golfe. Armários personalizados e marcenaria percorrem toda a casa para manter a simetria. Escadas curvas com corrimão de vidro arredondado levam ao segundo nível. A ala principal inclui guarda-roupas embutidos, banheiro tipo spa e varanda privativa com vista para o campo. Um segundo quarto e banheiro, além de um amplo escritório aberto com mesas, estantes, uma cozinha compacta e uma sala de recreação adjacente completam o nível superior. A propriedade tem uma adesão ativa com acesso aos três campos de golfe e ao parque aquático exclusivos do Reunions. Contate-nos para um passeio.
Considerações Financeiras
Preço:
$1,399,000
Taxa de HOA:
571
Valor do Imposto:
$9092.42
Preço por m²:
$390.35
Descrição Legal do Imposto:
REUNIÃO WEST VILLAGE 3A PB 16 PGS 136-141 LOTE 48
Características Exteriores
Tamanho do Lote:
8102
Características do Lote:
N/D
Beira-mar:
Não
Vagas de Estacionamento:
N/D
Estacionamento:
Abridor de porta de garagem, grande
Telhado:
Concreto
Piscina:
Sim
Características da Piscina:
Aquecido, no solo, colo, iluminação, acesso externo ao banheiro, água salgada, tela de proteção
Características Interiores
Quartos:
3
Banheiros:
6
Aquecimento:
Elétrica, Gás Natural
Resfriamento:
Central Aérea
Eletrodomésticos:
Geladeira Bar, Forno Embutido, Forno de Convecção, Cooktop, Máquina de Lavar Louça, Descarte, Secadora, Aquecedor de Água a Gás, Microondas, Exaustor, Geladeira, Aquecedor de Água Sem Tanque, Lavadora, Sistema de Filtragem de Água, Refrigerador de Vinho
Mobiliado:
Sim
Andar:
Tapete, Mármore, Azulejo
Níveis:
Dois
Características Adicionais
Subtipo de Imóvel:
Residência Unifamiliar
Estilo:
N/D
Ano de Construção:
2008
Tipo de Construção:
Concreto, Estuque
Vagas na Garagem:
Sim
Vagas Cobertas:
N/D
Orientação da Fachada:
Sul
Animais Permitidos:
Sim
Condição Especial:
Nenhum
Características Adicionais:
Varanda, Pátio, Jardim, Persianas Furacão, Iluminação, Chuveiro Exterior, Calhas de Chuva, Calçada, Portas de Correr
Características Adicionais 2:
Veja os documentos HOA
Mapa
  • Endereço
    917 DESERT MOUNTAIN CT
Fale com um profissional
Por Que Nos Escolher?
  • Comunicação e Transparência
  • Negociação Qualificada
  • Rede Profissional Robusta
  • Suporte Pós-Venda
Propriedades em Destaque

Imóveis relacionados

avt
Daniel Dourado
$ 369,000
avt
Daniel Dourado
$ 315,000
avt
Daniel Dourado
$ 450,000
avt
Daniel Dourado
$ 499,900
avt
Daniel Dourado
$ 475,000
avt
Daniel Dourado
$ 249,900
avt
Daniel Dourado
$ 589,000
avt
Daniel Dourado
$ 320,000
avt
Daniel Dourado
$ 439,000