Active

$349,900

Características:
  • 3 Quartos
  • 2 Banheiros
  • 152 m²
Visão Geral
  • ID: MFRC7523562
  • Quartos: 3
  • Banheiros: 2
  • Tamanho: 152 m²
Detalhes do Imóvel
Observações
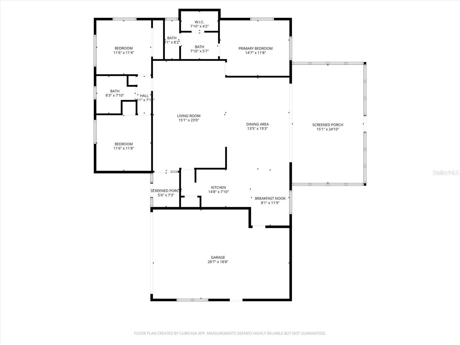
ESTE É O QUE OS COMPRADORES ESPERAM... TOTALMENTE REMODELADO À BEIRA-MAR COM ACESSO AO GOLFO COM ELEVADOR DE BARCO - E ESTÁ PRONTO AGORA. MOVA-SE RÁPIDO – OPORTUNIDADES COMO ESTA NÃO DURAM. CASA NO CANAL DE ÁGUA SALGADA COM ACESSO AO GOLFO - TOTALMENTE REMODELADA COM ELEVADOR DE BARCO, PAREDE E SALA PARA PISCINA Bem-vindo à sua oportunidade de estilo de vida à beira-mar na Flórida, na desejável Punta Gorda! Esta casa lindamente remodelada de 3 quartos e 2 banheiros fica em um canal de água salgada com acesso direto ao Porto de Charlotte e ao Golfo, proporcionando o estilo de vida náutico que os compradores procuram. Com 30 metros de frente para o canal, um paredão de concreto, elevador de barco coberto de 10.000 libras e turcos para embarcações adicionais, você pode estar em águas abertas em minutos. No interior, a casa foi completamente atualizada de cima a baixo, oferecendo uma verdadeira tranquilidade para quem está pronto para se mudar com: • Armários novos • Impressionantes bancadas de quartzo • Novos aparelhos de aço inoxidável • Piso totalmente novo e livre de alérgenos (sem carpete) — ideal para viver na Flórida, com fácil manutenção e um ambiente interno mais limpo • Toda a fiação elétrica nova e luminárias modernas • Novo sistema HVAC • Novo aquecedor de água quente • Pintura interna fresca • Banheiros totalmente remodelados, incluindo um chuveiro principal lindamente atualizado com novo piso e paredes de azulejo • Todas as portas internas foram substituídas por portas Craftsman elegantes e contemporâneas de 1 painel e ferragens atualizadas, adicionando um toque de design moderno e limpo. A espaçosa planta aberta de 1.646 pés quadrados oferece conforto e funcionalidade, incluindo um espaço para refeições formal separado e uma suíte primária no nível principal. Saia para uma varanda com tela de 25x15, perfeita para relaxar ou se divertir, com um lote generoso de 100x100 que oferece muito espaço para projetar a piscina dos seus sonhos e espaço ao ar livre. Destaques adicionais incluem: • Garagem anexa para 2 carros • Persianas contra furacões para proteção adicional • Sem HOA ou restrições de escritura • Sem restrições de aluguer mínimo – ideal para investidores ou utilização sazonal. Idealmente localizado a poucos minutos do centro de Punta Gorda, desfrute de fácil acesso à Vila dos Pescadores, boutiques, restaurantes à beira-mar, mercado semanal de agricultores, Gilchrist Park e Laishley Park - trazendo o melhor do sudoeste da Flórida à sua porta. Esteja você procurando uma residência em tempo integral, uma fuga sazonal ou uma oportunidade de investimento, esta casa oferece uma vida à beira-mar totalmente renovada e com acesso ao Golfo, com todas as principais atualizações já concluídas.
Considerações Financeiras
Preço:
$349,900
Taxa de HOA:
N/D
Valor do Imposto:
$1470.11
Preço por m²:
$212.58
Descrição Legal do Imposto:
CPK 000 000J 0005 CHARLOTTE PARK RE PLAT BLK J LOTE 5 328/324 402/472 408/333 445/931 942/1367 1751/746 1867/419 2738/193 4119/1851 UNREC DC-GS DOC TR UNREC
Características Exteriores
Tamanho do Lote:
10000
Características do Lote:
Desobstruído, Pavimentado
Beira-mar:
Sim
Vagas de Estacionamento:
N/D
Estacionamento:
Abridor de porta de garagem
Telhado:
Telha
Piscina:
Não
Características da Piscina:
N/D
Características Interiores
Quartos:
3
Banheiros:
2
Aquecimento:
Elétrico
Resfriamento:
Central Aérea
Eletrodomésticos:
Máquina de lavar louça, micro-ondas, fogão, geladeira
Mobiliado:
Sim
Andar:
Vinil de luxo
Níveis:
Um
Características Adicionais
Subtipo de Imóvel:
Residência Unifamiliar
Estilo:
N/D
Ano de Construção:
1973
Tipo de Construção:
Bloquear
Vagas na Garagem:
Sim
Vagas Cobertas:
N/D
Orientação da Fachada:
Norte
Animais Permitidos:
Sim
Condição Especial:
Nenhum
Características Adicionais:
Persianas contra furacões, portas deslizantes, armazenamento
Características Adicionais 2:
N/D
Mapa
  • Endereço
    235 POMPANO TER
Fale com um profissional
Por Que Nos Escolher?
  • Comunicação e Transparência
  • Negociação Qualificada
  • Rede Profissional Robusta
  • Suporte Pós-Venda
Propriedades em Destaque

Imóveis relacionados

avt
Daniel Dourado
$ 999,000
avt
Daniel Dourado
$ 6,000,000
avt
Daniel Dourado
$ 530,000
avt
Daniel Dourado
$ 415,000
avt
Daniel Dourado
$ 999,500
avt
Daniel Dourado
$ 339,000
avt
Daniel Dourado
$ 460,000
avt
Daniel Dourado
$ 2,200,000
avt
Daniel Dourado
$ 334,900
avt
Daniel Dourado
$ 499,900
avt
Daniel Dourado
$ 629,000