Active

$745,000

Características:
  • 3 Quartos
  • 2 Banheiros
  • 277 m²
Visão Geral
  • ID: MFRC7515711
  • Quartos: 3
  • Banheiros: 2
  • Tamanho: 277 m²
Detalhes do Imóvel
Observações
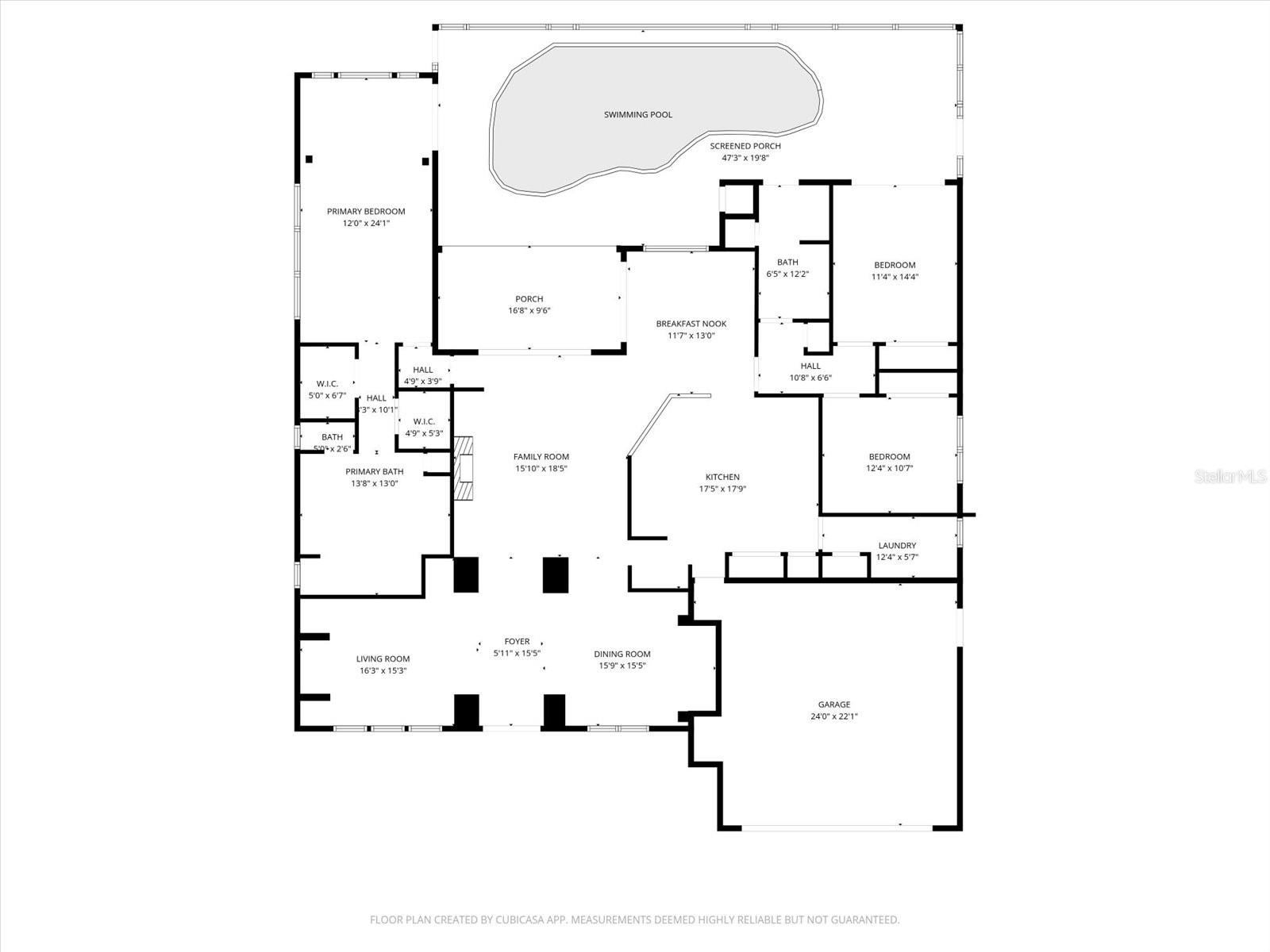
Descubra esta impressionante antiga casa modelo, localizada em um lote de canto de grandes dimensões na comunidade altamente desejável de Punta Gorda Isles. Esta residência excepcional foi projetada com elegância, conforto e orlagem à beira -mar - oferecendo acesso direto à lancha ao porto de Charlotte em menos de 20 minutos. Entre e experimente o layout convidativo e aberto com vistas de água brilhante de quase todos os quartos. As salas de estar e de jantar formais apresentam armários embutidos iluminados personalizados, prateleiras de exibição e uma área de bar elegante-ideal para entretenimento. Uma verdadeira planta dividida fornece privacidade, com a expansiva suíte master escondida na parte traseira da casa. O retiro principal inclui uma área de estar aconchegante com vista para o canal e piscina, armários duplos e um banheiro inspirado em spa com vaidades duplas, uma banheira de imersão e um chuveiro espaçoso. Esta casa de 3 quartos e dois banheiros mostra artesanato excepcional e acabamentos de ponta, incluindo tetos altos e altos em toda a casa, tetos de bandeja decorativa em todas as salas, moldagem por coroa (mesmo na garagem), bancadas de granito e armadilhas premium, uma armadilha para a lareira e a lareira a gás, as portas arqueadas, as portas arqueadas. Esta casa é pré-conectada para uma rede de casa inteira e um centro de conexão de entretenimento. A cozinha gourmet flui perfeitamente para a sala da família e ao ar livre, onde você encontrará o retiro perfeito na Flórida. Desfrute da piscina aquecida de borda infinita com lanai, churrasqueira externa embutida, decks de concreto estampado e um acionamento circular carimbado. A doca de concreto e o paredão (mantidos pela cidade de Punta Gorda) tornam o passeio de barco simples e sem preocupações. Destaques adicionais incluem uma lavanderia espaçosa com uma lavadora/secadora e uma tábua de passar a ferro embutida, além de uma pia de pré-lavagem. Uma garagem de grandes dimensões com ventiladores e pode iluminar e um sistema de irrigação. Localizada a poucos quarteirões do St. Andrews South Golf Club, esta casa oferece um estilo de vida incomparável em Punta Gorda Isles-uma comunidade à beira-mar com restrição de ação com 52 milhas de canais de água salgada que levam ao porto de Charlotte e ao Golfo do México. Esteja você buscando uma residência em tempo integral, retiro sazonal ou uma casa à beira-mar pronta para se mover, esta propriedade é uma rara oportunidade de possuir uma casa em uma das comunidades de barco mais desejáveis ​​da Flórida.
Considerações Financeiras
Preço:
$745,000
Taxa de HOA:
N/D
Valor do Imposto:
$8604.95
Preço por m²:
$249.41
Descrição Legal do Imposto:
PGI 014 0169 0022 Punta Gorda Isles Sec14 BLK169 LT22 1005/1017 & 18 1095/399 1894/64 2514/1070 2610/1899 3002/1808 3378/1228 CT4118/5366 42/1808 378/1228
Características Exteriores
Tamanho do Lote:
14314
Características do Lote:
N/D
Beira-mar:
Não
Vagas de Estacionamento:
N/D
Estacionamento:
Entrada de automóveis, abridor de porta de garagem
Telhado:
Metal
Piscina:
Sim
Características da Piscina:
Gunite, aquecida, no solo, infinito, iluminação, acesso externo ao banho, gabinete de tela, ladrilho
Características Interiores
Quartos:
3
Banheiros:
2
Aquecimento:
Elétrico, Zoneado
Resfriamento:
Ar central, controle de umidade, ventilador do sótão
Eletrodomésticos:
Máquina de lavar louça, descarte, secadora, esquentador elétrico, exaustor, micro-ondas, fogão, geladeira, lavadora
Mobiliado:
Sim
Andar:
Tapete, Azulejo Cerâmico, Azulejo
Níveis:
Um
Características Adicionais
Subtipo de Imóvel:
Residência Unifamiliar
Estilo:
N/D
Ano de Construção:
2002
Tipo de Construção:
Bloco, Estuque
Vagas na Garagem:
Sim
Vagas Cobertas:
N/D
Orientação da Fachada:
Leste
Animais Permitidos:
Sim
Condição Especial:
Nenhum
Características Adicionais:
Persianas anti-furacão, iluminação, chuveiro externo, portas de correr, armazenamento
Características Adicionais 2:
N/D
Mapa
  • Endereço
    1592 AQUI ESTA DR
Fale com um profissional
Por Que Nos Escolher?
  • Comunicação e Transparência
  • Negociação Qualificada
  • Rede Profissional Robusta
  • Suporte Pós-Venda
Propriedades em Destaque

Imóveis relacionados

avt
Daniel Dourado
$ 3,100,000
avt
Daniel Dourado
$ 365,000
avt
Daniel Dourado
$ 299,000
avt
Daniel Dourado
$ 285,000
avt
Daniel Dourado
$ 456,990
avt
Daniel Dourado
$ 357,500
avt
Daniel Dourado
$ 494,090
avt
Daniel Dourado
$ 850,000
avt
Daniel Dourado
$ 220,000