Active

$3,499,000

Características:
  • 4 Quartos
  • 6 Banheiros
  • 620 m²
Visão Geral
  • ID: MFRW7875577
  • Quartos: 4
  • Banheiros: 6
  • Tamanho: 620 m²
Detalhes do Imóvel
Observações
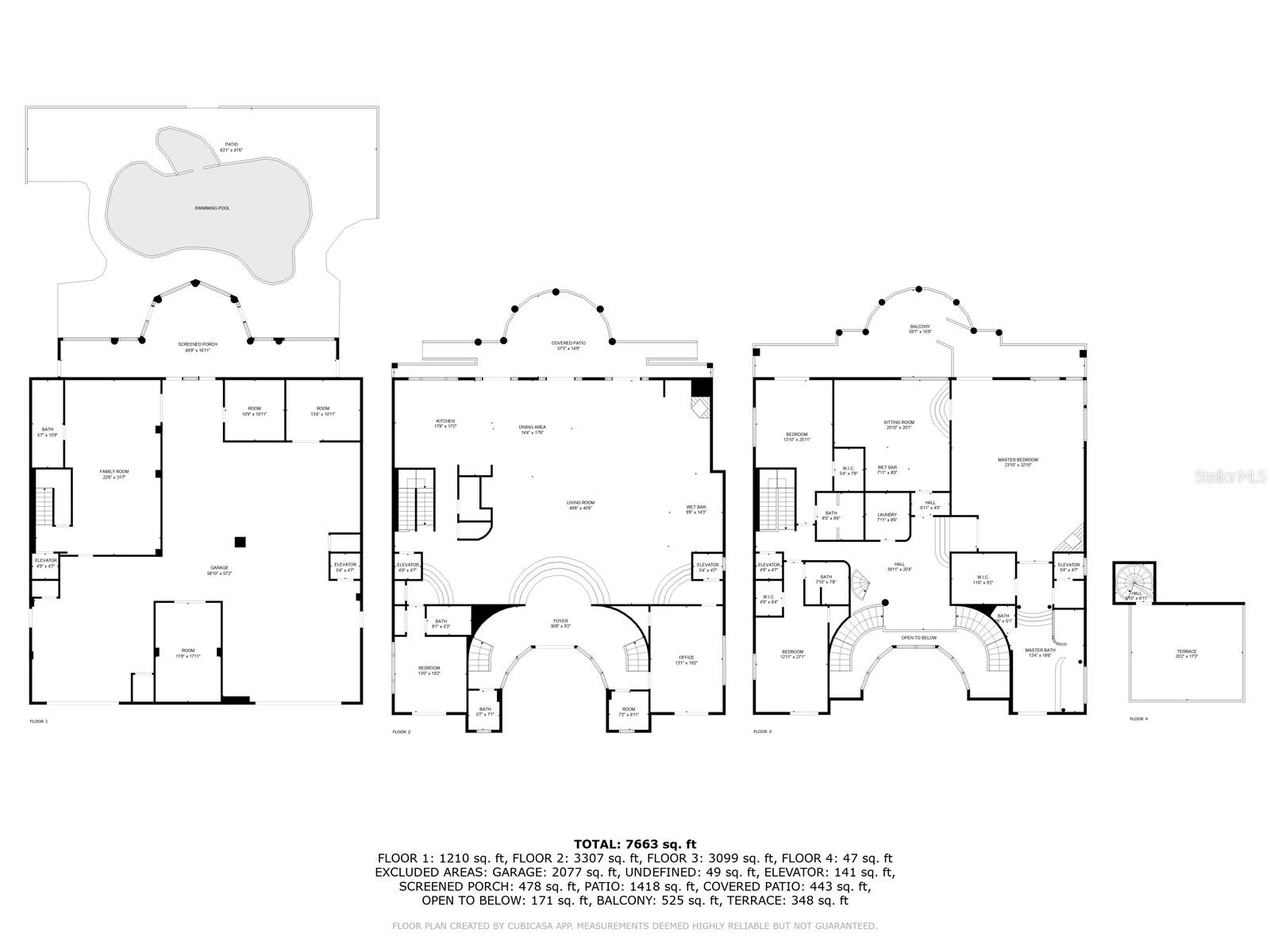
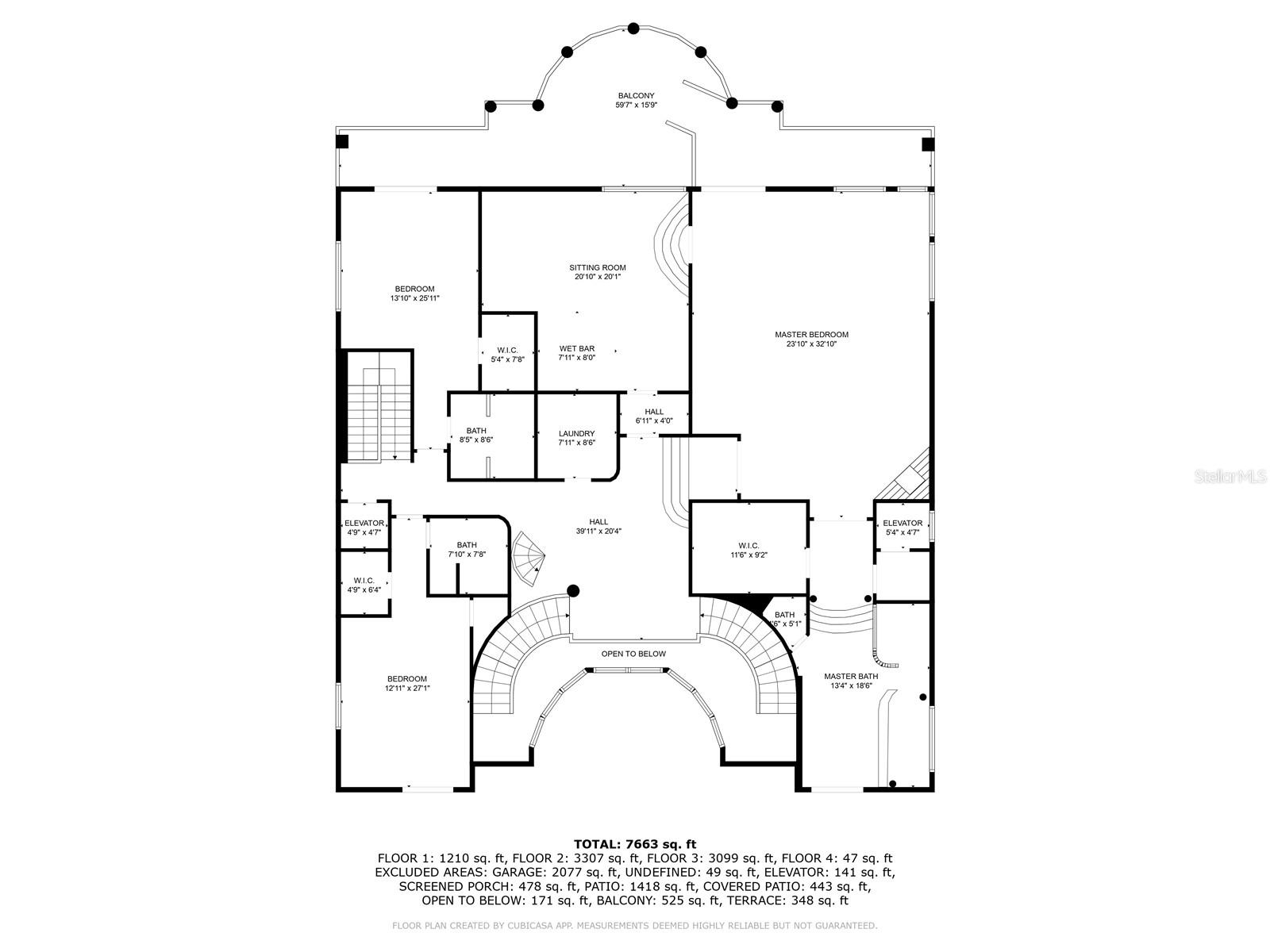
Se o céu na terra tivesse um discurso, provavelmente seria isso. Quatro quartos. Cinco banheiros e meio. Dois elevadores. Seis varandas. Um terraço na cobertura. Uma garagem de seis carros. A cozinha de um chef. Um bar afundado na sala de estar. Duas áreas de lavanderia. Armazenamento por toda parte. E uma suíte master tão expansiva, provavelmente é maior que a maioria dos apartamentos da cidade de Nova York. Situado dentro de Harborpointe-uma comunidade de península dupla, tripulada de 24 horas, no Golfo da América-, essa propriedade fica onde o rio Cotee encontra o Golfo, oferecendo atividade de barco durante o dia e um horizonte marina suave à noite. As vistas são constantes. O pôr do sol? Absolutamente inesquecível. No interior, a elegância ousada encontra uma vida elevada. O Speakeasy particular, com seu ambiente sombrio e papel de parede Gucci, é uma verdadeira jóia escondida - ideal para reuniões íntimas, horas de coquetel ou simplesmente desfrutar de um espaço que parece diferente de qualquer outra coisa. Dois elevadores particulares servem todos os três andares da casa, enquanto uma escada de madeira artesanal leva ao terraço na cobertura, onde vistas panorâmicas e céus de hora dourada se tornam parte do seu ritmo diário. Existem quatro quartos grandes, cada um com seu próprio banho completo, além de um banheiro completo e um banheiro meio. Três dos banheiros privativos foram atualizados com bom gosto. Mas a suíte primária se destaca. Equipado com um lindo piso de telha de grande formato, oferece vistas para a água tão imersiva, acordar pode parecer que você está a bordo de um navio de cruzeiro de luxo. Uma lareira aprimora a área de dormir, embora logo depois - na própria suíte - é um lounge privado com um bar molhado, pia, geladeira e suas próprias vistas à beira -mar - um mundo dentro de um mundo. Espaços como esse existem em apenas um punhado de casas, em qualquer lugar. A propriedade também possui seis varandas, incluindo dois espaços de vida ao ar livre de grandes dimensões - um no andar principal, o outro acima. A cozinha do chef combina elegância com funcionalidade, enquanto o bar afundado na sala adiciona uma camada sem esforço à sua experiência divertida. No andar de cima, uma lavanderia completa oferece conveniência e espaço, com uma segunda área de lavanderia cuidadosamente projetada no nível principal. Do lado de fora, a piscina e o spa em estilo resort fornecem um cenário impressionante para relaxamento e entretenimento. A rara garagem de seis carros é um verdadeiro destaque-seja para colecionadores, entusiastas ou qualquer pessoa que simplesmente espere mais. As atualizações adicionais incluem um novo amaciador de água Culligan, uma unidade A/C recentemente substituída e um aquecedor de água a gás sem tanque atualizado - um de dois em casa - refletindo os cuidados e investimentos investidos em pequenos detalhes. Seu deslizamento de barco atendido está a poucos passos. Home não recebeu água ou danos durante os furacões Helene ou Milton devido à alta propriedade dessa propriedade está acima do nível do mar.
Considerações Financeiras
Preço:
$3,499,000
Taxa de HOA:
960
Valor do Imposto:
$42294.45
Preço por m²:
$524.12
Descrição Legal do Imposto:
Harborpointe pb 29 pgs 144-152 lote 10 e deslizamento de barco #10
Características Exteriores
Tamanho do Lote:
15642
Características do Lote:
N/D
Beira-mar:
Sim
Vagas de Estacionamento:
N/D
Estacionamento:
N/D
Telhado:
Telha
Piscina:
Sim
Características da Piscina:
Gunite, no solo
Características Interiores
Quartos:
4
Banheiros:
6
Aquecimento:
Central, Elétrica
Resfriamento:
Central Aérea
Eletrodomésticos:
Barrébria de bar, cozinheira, microondas, alcance, alcance capô, geladeira, geladeira de vinho
Mobiliado:
Não
Andar:
Azulejo cerâmico, azulejo, madeira
Níveis:
Três ou mais
Características Adicionais
Subtipo de Imóvel:
Residência Unifamiliar
Estilo:
N/D
Ano de Construção:
2002
Tipo de Construção:
Bloco, estuque, quadro
Vagas na Garagem:
Sim
Vagas Cobertas:
N/D
Orientação da Fachada:
Oeste
Animais Permitidos:
Sim
Condição Especial:
Nenhum
Características Adicionais:
Sacada
Características Adicionais 2:
Verifique as restrições de arrendamento com o HOA ou gerenciamento de propriedades
Mapa
  • Endereço
    4348 HARBORPOINTE DR
Fale com um profissional
Por Que Nos Escolher?
  • Comunicação e Transparência
  • Negociação Qualificada
  • Rede Profissional Robusta
  • Suporte Pós-Venda
Propriedades em Destaque

Imóveis relacionados

avt
Daniel Dourado
$ 400,000
avt
Daniel Dourado
$ 624,990
avt
Daniel Dourado
$ 875,000
avt
Daniel Dourado
$ 399,000
avt
Daniel Dourado
$ 1,150,000
avt
Daniel Dourado
$ 489,000
avt
Daniel Dourado
$ 599,500
avt
Daniel Dourado
$ 750,000