Active

$349,000

Características:
  • 3 Quartos
  • 2 Banheiros
  • 159 m²
Visão Geral
  • ID: MFRD6146096
  • Quartos: 3
  • Banheiros: 2
  • Tamanho: 159 m²
Detalhes do Imóvel
Observações
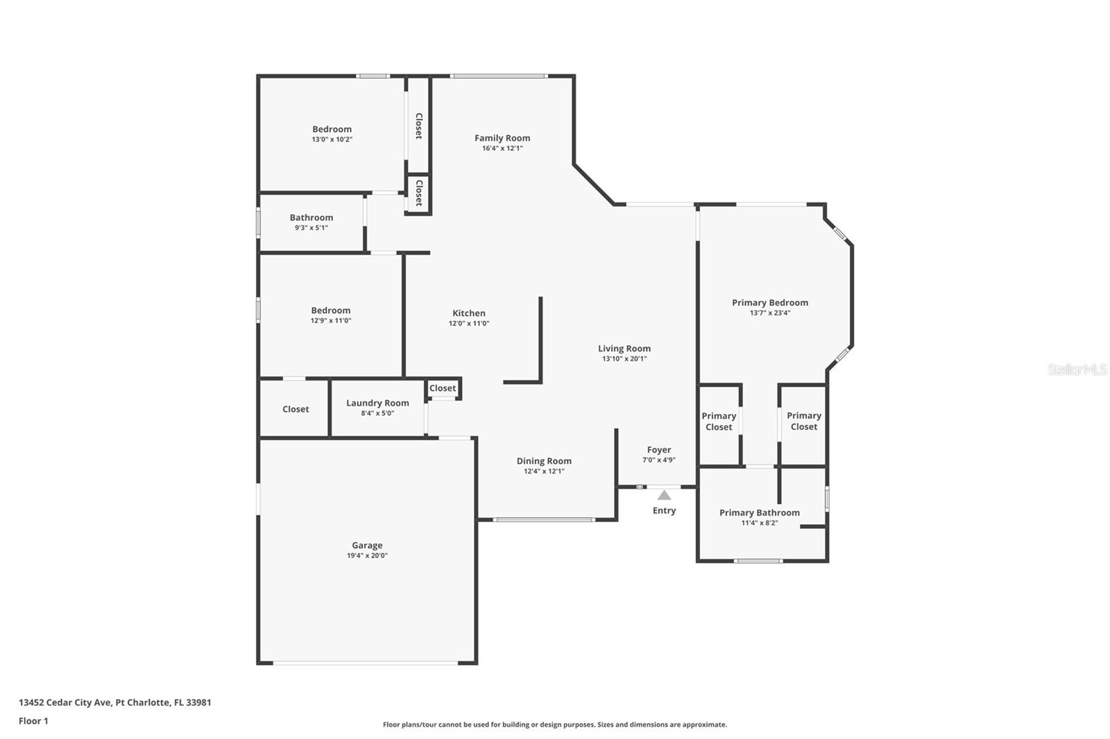
Oportunidade rara em South Gulf Cove com POTENCIAL DE EXPANSÃO. Esta casa bem conservada de 3 quartos, 2 banheiros e garagem para 2 carros está exclusivamente posicionada com terrenos baldios em AMBOS os lados disponíveis para compra sob a mesma propriedade, para maior privacidade, expansão futura ou investimento, um achado cada vez mais raro nesta comunidade de acesso ao Golfo. CONSTRUA UMA GARAGEM PARA RV, ESTACIONE SEU BARCO, CONSTRUA UMA CASA DE SOGRA como exemplos. Situada no desejável bairro à beira-mar de South Gulf Cove, a casa apresenta um layout aberto e luminoso, repleto de luz natural, tetos volumosos e um fluxo fácil projetado para a vida cotidiana e o entretenimento. As atualizações recentes incluem um novo telhado (2022), pintura externa (2025) e aquecedor de água (2025), proporcionando tranquilidade ao próximo proprietário. No interior, a casa oferece espaços de estar definidos, mas conectados, incluindo uma área de jantar frontal e uma convidativa sala de estar. A suíte principal com localização privativa serve como um refúgio confortável com closets e penteadeira dupla embutida, cuidadosamente separada dos quartos de hóspedes. O coração da casa é a combinação de sala de família e cozinha, oferecendo armários abundantes, um bar para comer e um generoso espaço de reunião. Dois quartos adicionais, um banheiro completo para hóspedes e uma lavanderia dedicada estão posicionados no lado oposto da casa, criando uma planta desejável de quartos divididos. Várias portas de vidro deslizantes se abrem para a varanda com tela, permitindo luz natural, brisas cruzadas e uma vida interna e externa perfeita. South Gulf Cove é uma comunidade HOA opcional conhecida por sua rampa pública para barcos, calçadas, trilhas para caminhada, playground, quadras de pickleball e estilo de vida ativo ao ar livre. Localizada a poucos minutos das praias de Boca Grande, passeios de barco, caiaque, pesca de classe mundial, restaurantes e lojas, esta propriedade oferece estilo de vida e valor a longo prazo. Todas as informações aqui contidas são consideradas confiáveis, mas não garantidas. O Comprador e o agente do Comprador verificarão todas as informações por meio de due diligence independente.
Considerações Financeiras
Preço:
$349,000
Taxa de HOA:
120
Valor do Imposto:
$5239.14
Preço por m²:
$203.62
Descrição Legal do Imposto:
PCH 085 4596 0023 PORTA CHARLOTTE SEC85 BLK4596 LT 23 871/1352 1061/1583 1143/432 1224/1350 TD2349/216 3003/2077 3237/1272
Características Exteriores
Tamanho do Lote:
10000
Características do Lote:
N/D
Beira-mar:
Não
Vagas de Estacionamento:
N/D
Estacionamento:
N/D
Telhado:
Telha
Piscina:
Não
Características da Piscina:
N/D
Características Interiores
Quartos:
3
Banheiros:
2
Aquecimento:
Central, Elétrica
Resfriamento:
Central Aérea
Eletrodomésticos:
Máquina de lavar louça, descarte, secadora, aquecedor elétrico de água, fogão, geladeira, lavadora
Mobiliado:
Sim
Andar:
Tapete, Azulejo
Níveis:
Um
Características Adicionais
Subtipo de Imóvel:
Residência Unifamiliar
Estilo:
N/D
Ano de Construção:
2006
Tipo de Construção:
Bloco, Estuque
Vagas na Garagem:
Sim
Vagas Cobertas:
N/D
Orientação da Fachada:
Sul
Animais Permitidos:
Não
Condição Especial:
Nenhum
Características Adicionais:
Portas deslizantes
Características Adicionais 2:
Siga as regras e regulamentos do condado de Charlotte
Mapa
  • Endereço
    13452 CEDAR CITY AVE
Fale com um profissional
Por Que Nos Escolher?
  • Comunicação e Transparência
  • Negociação Qualificada
  • Rede Profissional Robusta
  • Suporte Pós-Venda
Propriedades em Destaque

Imóveis relacionados

avt
Daniel Dourado
$ 305,000
avt
Daniel Dourado
$ 329,000
avt
Daniel Dourado
$ 415,000
avt
Daniel Dourado
$ 950,000
avt
Daniel Dourado
$ 320,000
avt
Daniel Dourado
$ 314,900
avt
Daniel Dourado
$ 399,000
avt
Daniel Dourado
$ 484,999
avt
Daniel Dourado
$ 400,000