Active

$223,500

Características:
  • 2 Quartos
  • 2 Banheiros
  • 140 m²
Visão Geral
  • ID: MFRD6145499
  • Quartos: 2
  • Banheiros: 2
  • Tamanho: 140 m²
Detalhes do Imóvel
Observações
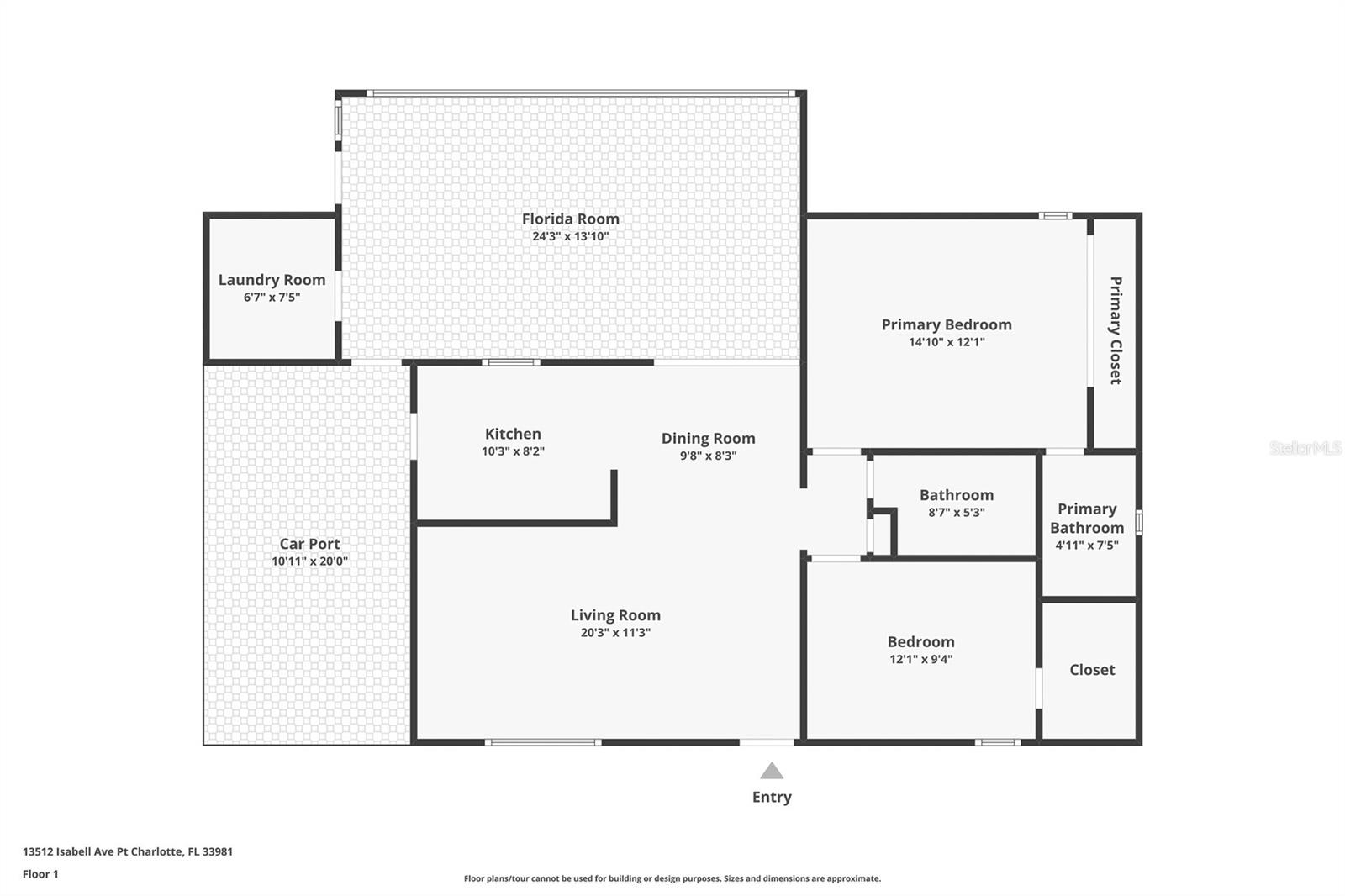
NEGÓCIO INCRÍVEL nesta casa de 2 quartos e 2 banheiros de INSPIRAÇÃO COSTEIRA em Gardens of Gulf Cove ~ ideal para vida sazonal ou redução de tamanho! Os recursos de investimento inteligente incluem JANELAS RESISTENTES A IMPACTO por toda parte, designação X ZONA DE INUNDAÇÃO (pode eliminar os requisitos obrigatórios de seguro contra inundações), NOVO TELHADO (2023), NOVO Aquecedor de água, NOVO SECADOR e um HOA incrivelmente ACESSÍVEL: apenas $ 470/ano! O interior apresenta DOIS espaços de estar, incluindo uma AMPLA SALA FLÓRIDA para uso durante todo o ano e apresenta amplas janelas de ponta a ponta com lindas PERSIANAS DE PLANTAÇÃO! O piso de cerâmica é encontrado em todas as áreas principais, criando uma aparência polida e fácil de cuidar, enquanto os quartos possuem piso laminado - sem carpete aqui! O ESPAÇOSO quarto principal inclui um amplo armário embutido e um banheiro SUITE completamente ATUALIZADO! O quarto secundário oferece um verdadeiro WALK-IN CLOSET e uma charmosa JANELA BOX BAY com um banheiro de hóspedes adjacente que também foi atualizado no ESTILO DESIGNER! A cozinha BEACHY-VIBE apresenta bancadas de azulejos lisos e armários abundantes em tons suaves de azul oceano, uma NOVA GELADEIRA e micro-ondas, e uma passagem aberta de grandes dimensões com vista para a Sala Florida! Lavanderia interna para maior comodidade! O oásis no quintal é privado, parcialmente cercado, com deck para pavimentação, galpão de armazenamento e uma PERGOLA existente ~ pronta para entretenimento e relaxamento! AS COMODIDADES COMUNITÁRIAS incluem duas PISCINAS (uma aquecida), um centro de recreação/fitness, quadra de tênis (pronta para pickelball), shuffleboard, basquete, sala de jogos coberta com mesas de sinuca, air hockey, mesas de cartas e muito mais ~ estilo resort com UTILIDADES SUBTERRÂNEAS, água/esgoto da cidade e calçadas para pedestres. Esta LOCALIZAÇÃO IMBATÍVEL está situada entre Port Charlotte e Englewood ~ a poucos minutos das PRAIAS PRISTINE DO GOLFO para aproveitar o sol e surfar e desfrutar de nosso pôr do sol de algodão doce de tirar o fôlego ~ várias rampas para barcos, cais de pesca e campos de golfe nas proximidades também! Além disso, há uma infinidade de restaurantes, mercearias, mercados agrícolas e lojas, incluindo Dearborn Street e Downtown Punta Gorda, onde você pode desfrutar de eventos culturais, entretenimento ao vivo e jantares requintados! Perto de aeroportos locais e regionais! Parece uma cidade pequena, mas se você precisar de uma dose da vida na cidade grande, Sarasota e Ft Myers ficam a 45 minutos de carro em qualquer direção! O que você está esperando? Venha desfrutar do estilo de vida da Flórida hoje!
Considerações Financeiras
Preço:
$223,500
Taxa de HOA:
470
Valor do Imposto:
$3738.26
Preço por m²:
$147.82
Descrição Legal do Imposto:
PCH 066 4294 0018 PORTA CHARLOTTE SEC66 BLK4294 LT 18 507/12 UNREC DC-LUDGER 3433/1949 CD3624/61 3724/2036 4343/1632 3247226
Características Exteriores
Tamanho do Lote:
7499
Características do Lote:
N/D
Beira-mar:
Não
Vagas de Estacionamento:
N/D
Estacionamento:
Entrada
Telhado:
Telha
Piscina:
Não
Características da Piscina:
N/D
Características Interiores
Quartos:
2
Banheiros:
2
Aquecimento:
Central, Elétrica
Resfriamento:
Central Aérea
Eletrodomésticos:
Máquina de lavar louça, descarte, secadora, aquecedor elétrico de água, micro-ondas, fogão, geladeira, lavadora
Mobiliado:
Sim
Andar:
Azulejo Cerâmico, Laminado
Níveis:
Um
Características Adicionais
Subtipo de Imóvel:
Residência Unifamiliar
Estilo:
N/D
Ano de Construção:
1975
Tipo de Construção:
Estuque, quadro
Vagas na Garagem:
Não
Vagas Cobertas:
N/D
Orientação da Fachada:
Sul
Animais Permitidos:
Sim
Condição Especial:
Nenhum
Características Adicionais:
Iluminação, Caixa de Correio Privada, Calhas de Chuva, Calçada
Características Adicionais 2:
Deve possuir por um ano antes que a casa possa ser alugada. Consulte documentos da associação e restrições de locação.
Mapa
  • Endereço
    13512 ISABELL AVE
Fale com um profissional
Por Que Nos Escolher?
  • Comunicação e Transparência
  • Negociação Qualificada
  • Rede Profissional Robusta
  • Suporte Pós-Venda
Propriedades em Destaque

Imóveis relacionados

avt
Daniel Dourado
$ 1,999,900
avt
Daniel Dourado
$ 370,000
avt
Daniel Dourado
$ 380,000
avt
Daniel Dourado
$ 274,900
avt
Daniel Dourado
$ 405,000
avt
Daniel Dourado
$ 699,000
avt
Daniel Dourado
$ 392,000
avt
Daniel Dourado
$ 339,990
avt
Daniel Dourado
$ 500,000