Active

$530,000

Características:
  • 4 Quartos
  • 4 Banheiros
  • 176 m²
Visão Geral
  • ID: MFRD6144898
  • Quartos: 4
  • Banheiros: 4
  • Tamanho: 176 m²
Detalhes do Imóvel
Observações
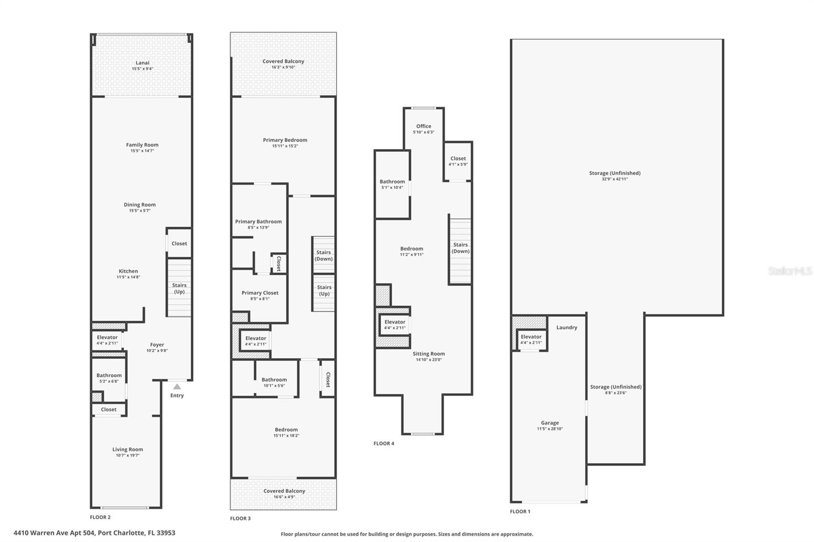
NOVA LISTAGEM, NOVOS SONHOS! COMECE SUA HISTÓRIA AQUI! Seja o primeiro a nos contatar para uma exibição privada! EXPERIMENTE A VIDA COSTEIRA AUTÊNTICA DA FLÓRIDA com VISTAS PANORÂMICAS DESOBSTRUÍDAS DO PORTO DE CHARLOTTE E DO SERENE RIO MYAKKA de todos os quartos desta deslumbrante MORADIA DE 3 NÍVEIS À BEIRA-MAR. Projetada para quem sonha em acordar perto da água, esta casa iluminada e arejada oferece 4 QUARTOS, 3,5 BANHEIROS, ELEVADOR PRIVATIVO e uma GARAGEM ESPAÇOSA com ENORME ARMAZENAMENTO NO TERRA. No andar principal, a área de estar de conceito aberto flui da bela cozinha para a Grande Sala e Área de Jantar - perfeita para reuniões, entretenimento e jantares inesquecíveis ao pôr do sol. Passe pelas portas de vidro deslizantes até sua varanda coberta e com tela e aproveite a brisa costeira enquanto saboreia seu café da manhã ou faz sua devoção bíblica ao som das ondas suaves. A cozinha é o sonho de um chef costeiro, com BAR DE CAFÉ DA MANHÃ, ILHA CENTRAL, armários brancos, BANCADAS DE PEDRA NATURAL, backsplash de azulejos e eletrodomésticos modernos, incluindo forno embutido, micro-ondas, fogão, geladeira e lava-louças. Um escritório ou quarto versátil com PERSIANAS DE PLANTAÇÃO e PISO DE MADEIRA RICO adiciona flexibilidade e conveniência neste nível. No andar de cima, a suíte principal do segundo andar é um retiro tranquilo com ACESSO PRIVADO À VARANDA COM VISTA PARA A ÁGUA, completa com um NOVO TOLDO RETRÁTIL, ILUMINADO E COM CONTROLE REMOTO, um closet espaçoso e um banheiro inspirado em spa que oferece uma penteadeira completa com pias duplas, banheira de hidromassagem e box amplo. Além da suíte principal no segundo andar há um QUARTO EM SUITE COM VARANDA COM VISTA PARA O CANAL E DOCA PARA BARCOS. A SUÍTE DE HÓSPEDES OU SOGROS DO TERCEIRO ANDAR - COM SEU PRÓPRIO BANHEIRO COMPLETO, RECanto DE ESCRITÓRIO E KITCHENETTE com muito espaço de armazenamento extra - oferece acomodações IDEAIS para VISITANTES ou FAMÍLIA EXTENSA. Com a sua entrada separada ao nível do solo através do elevador, também pode servir como potencial UNIDADE DE PRODUÇÃO DE RENDA. UM PARAÍSO DE NAVEGADORES - esta unidade inclui uma DOCA DEEDED opcional de 25' x 6' (Espaço #18) com um ELEVADOR DE BARCO DE 5000 LB, oferecendo acesso rápido e sem pontes a águas abertas - perfeito para velejadores e pescadores ávidos. MAIS PARA AMAR • Atualizações de 2024: TELHADO NOVO, PINTURA EXTERIOR FRESCA e todas as NOVAS TELAS • As comodidades do condomínio fechado incluem um clube com academia completa, PISCINA AQUECIDA reformada, QUADRAS DE TÊNIS E PICKLEBALL recapeadas, píer de pesca, LANÇAMENTO DE CAIAQUE e DOCA COMPARTILHADA de 65 pés • Água e esgoto do condado • Convenientemente localizado perto de lojas, restaurantes, praias lindas, e muita pesca, passeios de barco e golfe • A poucos minutos de praias de areia branca, restaurantes à beira-mar, boutiques e reservas naturais Faça uma curta viagem de carro ou de barco até ENGLEWOOD BEACH ou a bela BOCA GRANDE. O vizinho Sunseeker Resort coloca você perfeitamente posicionado entre Port Charlotte, North Port e Englewood. Em poucos minutos, desfrute de inúmeras opções de compras e restaurantes, restaurantes à beira-mar e atrações populares, como as instalações de treinamento de primavera do Atlanta Braves em Wellen Park e o complexo de treinamento de primavera do Tampa Bay Rays em Port Charlotte. Esteja você adotando o estilo de vida da Flórida em tempo integral, criando um refúgio costeiro querido ou investindo em um aluguel de alta demanda à beira-mar, esta casa oferece o melhor da vida descontraída na Costa do Golfo.
Considerações Financeiras
Preço:
$530,000
Taxa de HOA:
1330
Valor do Imposto:
$5402.86
Preço por m²:
$278.36
Descrição Legal do Imposto:
HVG 006 0000 0504 VILAS NA UNIDADE HARBOR VILLAGE 504 1875/741 1889/1269 RE1883/1068 E1889/1266 4743/1336 4813/639 UNREC DC-CSB
Características Exteriores
Tamanho do Lote:
1904
Características do Lote:
Zona de inundação, no condado, paisagem, pavimentadora
Beira-mar:
Sim
Vagas de Estacionamento:
N/D
Estacionamento:
Garagem, abridor de porta de garagem, aberto, porão
Telhado:
Metal
Piscina:
Não
Características da Piscina:
Gunite, aquecido, no solo
Características Interiores
Quartos:
4
Banheiros:
4
Aquecimento:
Central, Elétrica
Resfriamento:
Central Aérea
Eletrodomésticos:
Cooktop, Lava Louça, Descarte, Secadora, Aquecedor Elétrico de Água, Microondas, Geladeira, Lavadora
Mobiliado:
Sim
Andar:
Carpete, Mármore, Madeira
Níveis:
Três ou mais
Características Adicionais
Subtipo de Imóvel:
Condomínio
Estilo:
N/D
Ano de Construção:
2000
Tipo de Construção:
Bloco, Estuque
Vagas na Garagem:
Sim
Vagas Cobertas:
N/D
Orientação da Fachada:
Norte
Animais Permitidos:
Não
Condição Especial:
Nenhum
Características Adicionais:
Toldo (s), varanda, iluminação, churrasqueira ao ar livre, caixa de correio privada, calhas de chuva, portas deslizantes, armazenamento
Características Adicionais 2:
Por favor, verifique com a Administração todas as restrições e requisitos detalhados de locação.
Mapa
  • Endereço
    4410 WARREN AVE #504
Fale com um profissional
Por Que Nos Escolher?
  • Comunicação e Transparência
  • Negociação Qualificada
  • Rede Profissional Robusta
  • Suporte Pós-Venda
Propriedades em Destaque

Imóveis relacionados

img
  • Featured
  • Active
Condominium

225 COUNTRY CLUB DR #E148

  • 2
  • 2
  • 134 m²
avt
Daniel Dourado
$ 239,000
avt
Daniel Dourado
$ 619,000
avt
Daniel Dourado
$ 239,000
img
  • Featured
  • Active
Condominium

7983 LIMESTONE LN #14-201

  • 3
  • 2
  • 125 m²
avt
Daniel Dourado
$ 324,999
img
  • Featured
  • Active
Condominium

1023 BEACH MANOR CIR #49

  • 2
  • 2
  • 102 m²
avt
Daniel Dourado
$ 319,000
avt
Daniel Dourado
$ 439,000
avt
Daniel Dourado
$ 425,000
avt
Daniel Dourado
$ 295,000
avt
Daniel Dourado
$ 419,000
img
  • Featured
  • Active
Condominium

700 S HARBOUR ISLAND BLVD #243

  • 2
  • 2
  • 93 m²
avt
Daniel Dourado
$ 414,900
img
  • Featured
  • Active
Condominium

3245 SUGARLOAF KEY RD #24C

  • 2
  • 2
  • 140 m²
avt
Daniel Dourado
$ 319,900
avt
Daniel Dourado
$ 285,000