Active

$500,000

Características:
  • 3 Quartos
  • 2 Banheiros
  • 134 m²
Visão Geral
  • ID: MFRD6140932
  • Quartos: 3
  • Banheiros: 2
  • Tamanho: 134 m²
Detalhes do Imóvel
Observações
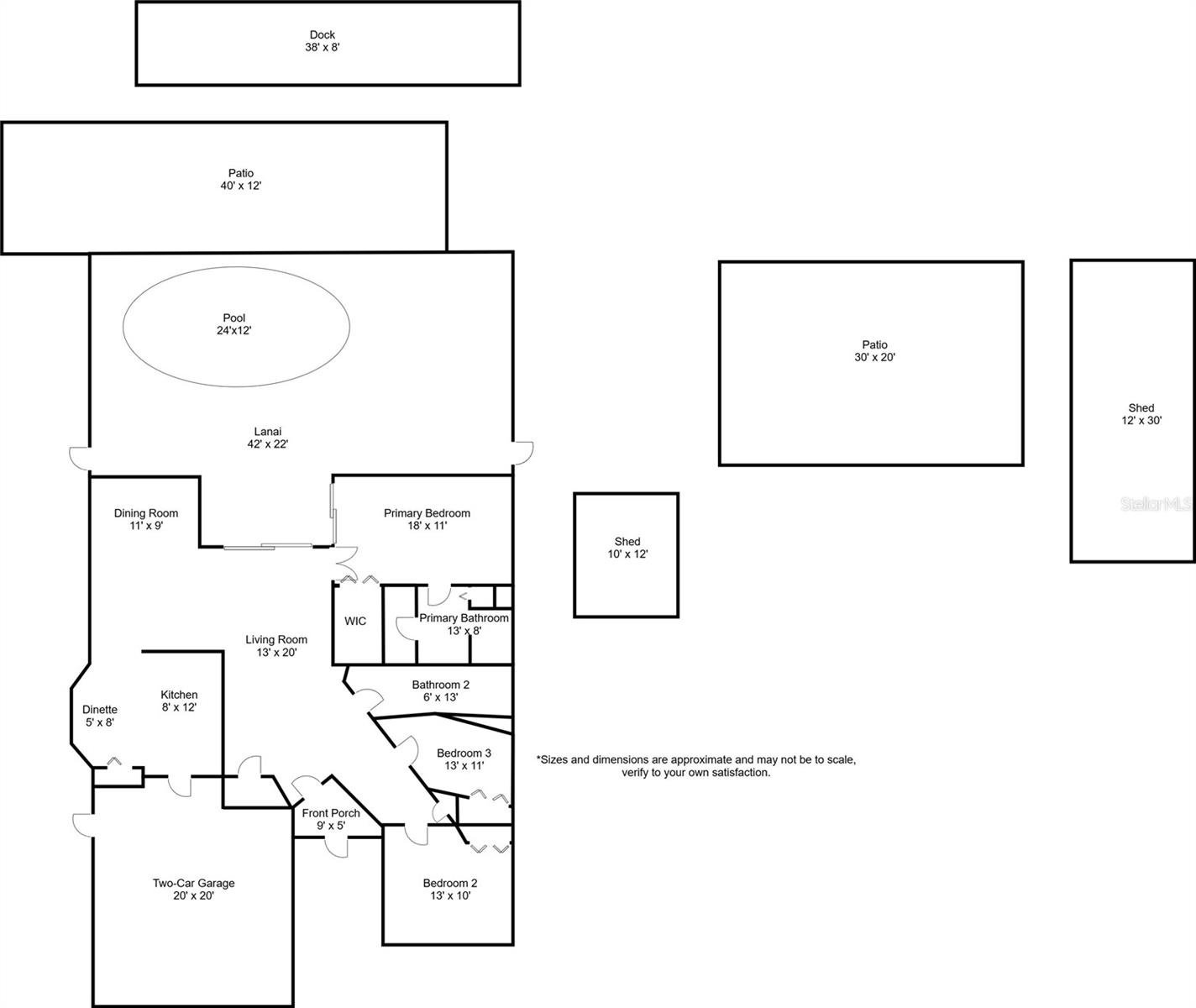
Isso é mais do que apenas uma casa. É a sua porta de entrada para o melhor estilo de vida da Flórida! Localizado em um raro lote duplo na cobiçada comunidade à beira -mar de South Gulf Cove, esta propriedade tem tudo o que você precisa para viver sua melhor vida costeira. Com acesso direto à água, uma doca de 38 'com 10.000 lb. Elevador de barco e vários espaços de estar ao ar livre, todos os dias parecem férias. *** Entre para os tetos altos da catedral, a vida de conceito aberto e o fluxo semestral de interior através de controles deslizantes que levam ao Lanai. A cozinha é o sonho de um artista com bancadas em granito, aparelhos de aço inoxidável e uma península de grandes dimensões perfeita para refeições e conversas casuais. Anfitrião brunches à beira da piscina, jantares do pôr -do -sol ou se reúnam na área de jantar formal, recanto do café da manhã ou pátio espaçoso. ~~~ A suíte primária é um retiro privado, com portas francesas, acesso de Lanai, um closet e um banheiro privativo do tipo spa com balcões de granito, um chuveiro de azulejos e um segundo armário para armazenamento extra. Dois quartos de hóspedes e um banheiro completo proporcionam conforto e privacidade para a família e os amigos. *** Aproveite a paz de espírito sem danos causados ​​por furacões, um novo telhado (2021), novo HVAC (2023), proteção com classificação de impacto e uma política de inundação transferível. O quintal totalmente cercado, paisagístico de palmeiras tropicais e jardins vibrantes, cria beleza e privacidade ao redor. ~~~ situado a apenas 11 quilômetros da calçada de Boca Grande, você está a poucos minutos de praias de classe mundial, golfe de primeira linha, jantar, compras de boutique e dois estádios de treinamento da MLB Spring. A associação opcional do HOA fornece acesso a um clube comunitário, parques e eventos sociais, se desejar. *** Este é o estilo de vida da Flórida que você estava esperando: passeios de barco, relaxar, divertir e explorar, tudo do seu próprio quintal. Não espere! Agende sua exibição particular em um momento que funcione melhor para você - acomodamos de bom grado a semana, noites e fins de semana. Venha reivindicar sua fatia de paraíso à beira -mar hoje!
Considerações Financeiras
Preço:
$500,000
Taxa de HOA:
N/D
Valor do Imposto:
$4474
Preço por m²:
$344.59
Descrição Legal do Imposto:
PCH 087 4556 0007 PORT CHARLOTTE SEC87 BLK4556 LT 7 1010/3 TD1474/1884 1498/187 CT3553/372 3578/1031 PCH 0578/1033/296 BLK4556 LT 6 1143/432 1317/2066 DC4360/1182-OCW 4360/1184
Características Exteriores
Tamanho do Lote:
20000
Características do Lote:
No condado, nível, lote grande, pavimentado
Beira-mar:
Sim
Vagas de Estacionamento:
N/D
Estacionamento:
Garagem, abridor de porta de garagem, garagem para carrinho de golfe, fora da rua, na rua, outros
Telhado:
Telha
Piscina:
Sim
Características da Piscina:
Gunite, no solo, gabinete de tela
Características Interiores
Quartos:
3
Banheiros:
2
Aquecimento:
Central, Elétrica, Bomba de Calor
Resfriamento:
Central Aérea
Eletrodomésticos:
Máquina de lavar louça, micro-ondas, fogão, geladeira
Mobiliado:
Sim
Andar:
Tijolo, carpete, azulejo cerâmico, laminado
Níveis:
Um
Características Adicionais
Subtipo de Imóvel:
Residência Unifamiliar
Estilo:
N/D
Ano de Construção:
1997
Tipo de Construção:
Bloco, Estuque
Vagas na Garagem:
Sim
Vagas Cobertas:
N/D
Orientação da Fachada:
Sul
Animais Permitidos:
Não
Condição Especial:
Nenhum
Características Adicionais:
Corrida de cachorro, jardim, iluminação, caixa de correio privada, calhas de chuva, portas deslizantes, armazenamento
Características Adicionais 2:
N/D
Mapa
  • Endereço
    14382 LILLIAN CIR
Fale com um profissional
Por Que Nos Escolher?
  • Comunicação e Transparência
  • Negociação Qualificada
  • Rede Profissional Robusta
  • Suporte Pós-Venda
Propriedades em Destaque

Imóveis relacionados

avt
Daniel Dourado
$ 349,900
avt
Daniel Dourado
$ 490,000
avt
Daniel Dourado
$ 229,000
avt
Daniel Dourado
$ 360,000
avt
Daniel Dourado
$ 299,000
avt
Daniel Dourado
$ 390,000
avt
Daniel Dourado
$ 1,250,000
avt
Daniel Dourado
$ 369,000