Active

$290,000

Características:
  • 2 Quartos
  • 2 Banheiros
  • 125 m²
Visão Geral
  • ID: MFRC7516067
  • Quartos: 2
  • Banheiros: 2
  • Tamanho: 125 m²
Detalhes do Imóvel
Observações
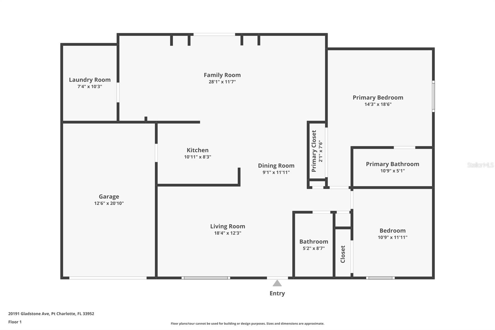
Bem-vindo à 20191 Gladstone Avenue, uma casa lindamente remodelada localizada no coração de Port Charlotte. Esta residência completamente atualizada oferece a combinação perfeita de estilo moderno, conforto e tranquilidade – tudo situado em uma zona livre de inundações para maior segurança e conveniência. Entre para encontrar um layout aberto e claro, aprimorado por novos pisos, grandes rodapés modernos e acabamentos novos por toda parte. A cozinha foi totalmente renovada com armários elegantes, bancadas contemporâneas e eletrodomésticos atualizados, criando um espaço convidativo para cozinhar e se divertir. Ambos os banheiros foram remodelados com bom gosto com toques limpos e modernos que adicionam uma sensação de spa à casa. As atualizações continuam com um novo aquecedor de água sem tanque, novo isolamento adicionado e um novo telhado instalado em 2023, oferecendo eficiência e valor a longo prazo. a casa também foi reequipada com encanamento pex. Para proteção contra tempestades, a propriedade também vem equipada com venezianas contra furacões, proporcionando tranquilidade durante a temporada de tempestades na Flórida. Esta casa não está apenas pronta para morar - ela foi cuidadosamente melhorada de cima a baixo, proporcionando a aparência de uma casa totalmente nova. Quer você seja um comprador de primeira viagem, um residente sazonal ou um investidor em busca de um imóvel de baixa manutenção, você apreciará o cuidado e a qualidade dispensados ​​a cada detalhe. Com localização central perto de lojas, restaurantes, escolas e principais rodovias, a 20191 Gladstone Avenue oferece o equilíbrio perfeito entre conveniência e conforto. Com suas atualizações modernas e localização privilegiada, esta propriedade é uma oportunidade de destaque em um dos bairros mais estabelecidos de Port Charlotte. Venha ver o valor, o estilo e o potencial que esta linda casa tem a oferecer – você não vai querer perder!
Considerações Financeiras
Preço:
$290,000
Taxa de HOA:
N/D
Valor do Imposto:
$1165
Preço por m²:
$214.34
Descrição Legal do Imposto:
PCH 026 0770 0024 PORT CHARLOTTE SEC26 BLK770 LT 24 145/483 372/229 423/710 576/173PR77-155 PR82-344 DC882/1871 939/1833 939/1834 1820/1523 3269/1303 3358831 3359515
Características Exteriores
Tamanho do Lote:
9999
Características do Lote:
N/D
Beira-mar:
Não
Vagas de Estacionamento:
N/D
Estacionamento:
N/D
Telhado:
Telha
Piscina:
Sim
Características da Piscina:
Gunite, no solo
Características Interiores
Quartos:
2
Banheiros:
2
Aquecimento:
Central
Resfriamento:
Central Aérea
Eletrodomésticos:
Máquina de lavar louça, micro-ondas, fogão, geladeira, aquecedor de água sem tanque
Mobiliado:
Não
Andar:
Vinil de luxo
Níveis:
Um
Características Adicionais
Subtipo de Imóvel:
Residência Unifamiliar
Estilo:
N/D
Ano de Construção:
1973
Tipo de Construção:
Bloco, Estuque
Vagas na Garagem:
Sim
Vagas Cobertas:
N/D
Orientação da Fachada:
Norte
Animais Permitidos:
Sim
Condição Especial:
Nenhum
Características Adicionais:
Persianas contra furacões, caixa de correio privada, calhas de chuva
Características Adicionais 2:
Entre em contato com Charlotte County para obter restrições adicionais de leasing.
Mapa
  • Endereço
    20191 GLADSTONE AVE
Fale com um profissional
Por Que Nos Escolher?
  • Comunicação e Transparência
  • Negociação Qualificada
  • Rede Profissional Robusta
  • Suporte Pós-Venda
Propriedades em Destaque

Imóveis relacionados

avt
Daniel Dourado
$ 450,000
avt
Daniel Dourado
$ 899,000
avt
Daniel Dourado
$ 325,000
avt
Daniel Dourado
$ 899,999
avt
Daniel Dourado
$ 599,000
avt
Daniel Dourado
$ 539,000
avt
Daniel Dourado
$ 799,000
avt
Daniel Dourado
$ 444,000
avt
Daniel Dourado
$ 889,900
avt
Daniel Dourado
$ 384,000