Active

$435,000

Características:
  • 3 Quartos
  • 2 Banheiros
  • 176 m²
Visão Geral
  • ID: MFRA4627897
  • Quartos: 3
  • Banheiros: 2
  • Tamanho: 176 m²
Detalhes do Imóvel
Observações
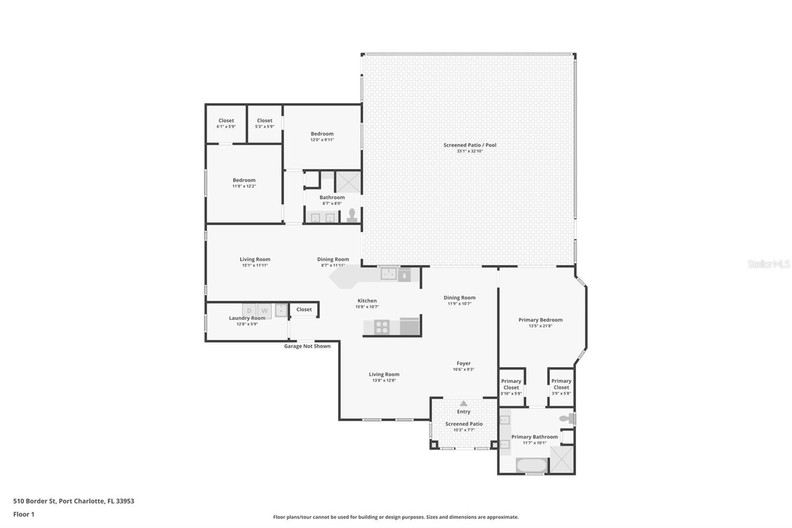
Melhoria de preços, localização, localização: Bem -vindo em casa! Esta encantadora casa de piscina está pronta e localizada em um local muito desejável e crescente na área da SWFL. Ao chegar, você é recebido com paisagismo tropical maduro e uma varanda na frente na entrada principal da casa. Esta casa possui uma planta baixa com 3 quartos, 2 banheiros e garagem de 2 carros, sem restrições de ação ou HOA ou CDD. Traga seu barco e RV. A casa possui piso laminado de madeira e azulejo de cerâmica em todas as áreas comuns. Aproveite a piscina privada, exibida no chão e a área de Lanai. A casa fica em um lote de canto duplo com água da cidade. A propriedade está em uma zona sem inundação. A cozinha foi atualizada recentemente com novos teto e luzes, bancadas em granito e aparelhos de aço inoxidável correspondentes existentes. O banheiro de hóspedes foi atualizado com chuveiros de azulejos e pias duplas. O banheiro principal também tem um chuveiro de azulejos atualizado. O quarto principal tem uma vista para a piscina, que você pode acessar através de portas de vidro deslizantes e armários dele e dela. Os outros dois quartos também têm armários. Há uma sala de estar formal, sala de jantar e uma sala de família com um teto abobadado. Você tem vistas agradáveis ​​e acesso à piscina da sala de estar, cozinha e sala de jantar. Novo teto em 2022, novo interior de tinta fresco, novos ventiladores com luzes. O proprietário também possui o outro lado do lado ao lado de casa, que pode ser comprado, peça detalhes separadamente ao agente de listagem. Juntos, você pode possuir .75 acres de terra, o que é muito raro hoje em dia. É muito perto de Coco Plum Plaza, lojas e restaurantes, Rays & Braves Stadium, hospitais, escolas, praias, shopping, pesca, ciclismo, passeios de barco etc. Faça do seu paraíso da Flórida hoje! Vendedor motivado!
Considerações Financeiras
Preço:
$435,000
Taxa de HOA:
N/D
Valor do Imposto:
$2403.44
Preço por m²:
$228.59
Descrição Legal do Imposto:
PCH 032 2406 0032 PORTA CHARLOTTE SEC32 BLK2406 LTS 32 e 33 291/562 1042/1535 1076/1712 1102/159 1545/346 1768/1033 2494/1737
Características Exteriores
Tamanho do Lote:
21115
Características do Lote:
Lote de esquina, limites da cidade, paisagístico, lote grande
Beira-mar:
Não
Vagas de Estacionamento:
N/D
Estacionamento:
Abridor de porta de garagem
Telhado:
Telha
Piscina:
Sim
Características da Piscina:
Cerca de segurança infantil, Gunite, no solo, iluminação, água salgada, tela de proteção
Características Interiores
Quartos:
3
Banheiros:
2
Aquecimento:
Elétrico
Resfriamento:
Central Aérea
Eletrodomésticos:
Cooktop, Máquina de Lavar Louça, Descarte, Secadora, Aquecedor Elétrico de Água, Exaustor, Máquina de Gelo, Microondas, Fogão, Geladeira, Lavadora
Mobiliado:
Não
Andar:
Azulejo Cerâmico, Vinil
Níveis:
Um
Características Adicionais
Subtipo de Imóvel:
Residência Unifamiliar
Estilo:
N/D
Ano de Construção:
1991
Tipo de Construção:
Bloco, Estuque
Vagas na Garagem:
Sim
Vagas Cobertas:
N/D
Orientação da Fachada:
Oeste
Animais Permitidos:
Não
Condição Especial:
Nenhum
Características Adicionais:
Varanda, Jardim, Sistema de Rega, Logradouro, Portas de Correr
Características Adicionais 2:
N/D
Mapa
  • Endereço
    510 BORDER ST
Fale com um profissional
Por Que Nos Escolher?
  • Comunicação e Transparência
  • Negociação Qualificada
  • Rede Profissional Robusta
  • Suporte Pós-Venda
Propriedades em Destaque

Imóveis relacionados

avt
Daniel Dourado
$ 6,970,000
avt
Daniel Dourado
$ 949,000
avt
Daniel Dourado
$ 455,000
avt
Daniel Dourado
$ 659,990
avt
Daniel Dourado
$ 729,946
avt
Daniel Dourado
$ 244,900
avt
Daniel Dourado
$ 229,900
avt
Daniel Dourado
$ 269,900
avt
Daniel Dourado
$ 1,395,000
avt
Daniel Dourado
$ 299,000
avt
Daniel Dourado
$ 389,900