Active

$545,000

Características:
  • 3 Quartos
  • 3 Banheiros
  • 200 m²
Visão Geral
  • ID: MFRD6145923
  • Quartos: 3
  • Banheiros: 3
  • Tamanho: 200 m²
Detalhes do Imóvel
Observações
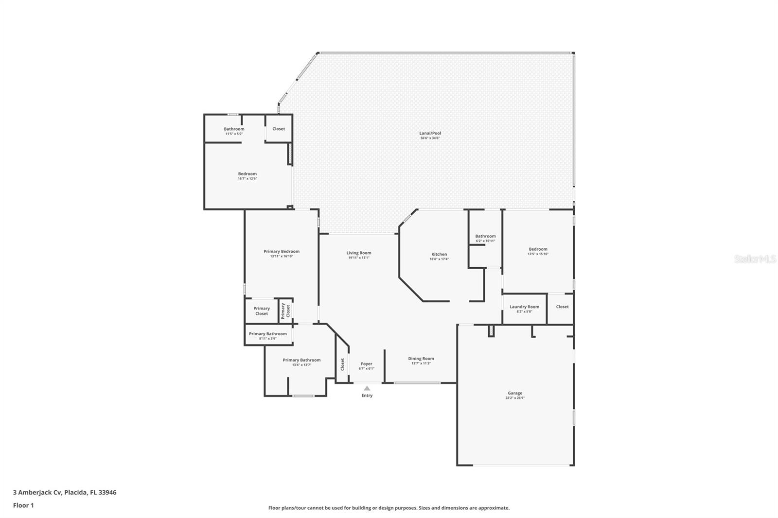
Situada em uma comunidade de golfe altamente desejável, a poucos minutos das praias imaculadas de Boca Grande e da pesca de tarpões de renome mundial, esta deslumbrante residência de 3 quartos e 3 banheiros completos oferece a combinação perfeita de luxo, privacidade e estilo de vida costeiro. A piscina possui um novo aquecedor de piscina (2025) e uma gaiola panorâmica (2023) que permite vistas relaxantes do campo de golfe e do lago ao longe. Cada quarto da casa tem seu próprio banheiro completo com box amplo e acesso deslizante de vidro completo à piscina, oferecendo conforto e privacidade para a família e convidados. Uma característica marcante é a casita de hóspedes, situada fora da área da piscina, com entrada separada. Isto é ideal para visitantes, familiares ou um escritório doméstico privado. No interior da zona da cozinha encontrará bancadas em granito, gavetas com fecho suave, electrodomésticos em inox, uma ilha espaçosa e 3 metros de vidro deslizante que permite o acesso directo da cozinha à zona da piscina. O quarto principal e o banheiro foram totalmente remodelados de cima a baixo. Seu banho tipo spa é tão convidativo que você ficará ansioso para passar algum tempo em sua banheira de imersão ou chuveiro relaxante. A suíte master possui teto em bandeja, piso novo com porta deslizante para facilitar o acesso à piscina. Atualizações e recursos adicionais incluem um NOVO telhado de telha (2023), venezianas na maior parte da casa e proteção contra furacões em toda a casa com portas, janelas e persianas contra furacões a 265 mph. Um sistema de ar condicionado de 3 toneladas mais recente (2019), novos intradorsos, fachadas e calhas (2023), um sistema de irrigação completo, uma garagem para 2 carros com uma área de bancada iluminada e no lado oposto da casa uma área de armazenamento embutida e combinada para seu carrinho de golfe ou outros itens. Os serviços subterrâneos tornam agradável percorrer os caminhos que levam a seis lagos pitorescos, todos dentro desta comunidade de golfe lindamente mantida. Casas com este nível de atualizações, privacidade e flexibilidade para os hóspedes raramente estão disponíveis. Agende sua exibição privada hoje.
Considerações Financeiras
Preço:
$545,000
Taxa de HOA:
284
Valor do Imposto:
$6064.58
Preço por m²:
$252.2
Descrição Legal do Imposto:
CHW 000 0000 0291 CAPE HAZE WINDWARD LT 291 1137/1769 1620/450 3428/1723
Características Exteriores
Tamanho do Lote:
13870
Características do Lote:
Lote de esquina, beco sem saída, zona de inundação, cinturão verde, no condado, lote irregular, paisagístico, próximo ao campo de golfe, lote grande, pavimentado
Beira-mar:
Não
Vagas de Estacionamento:
N/D
Estacionamento:
N/D
Telhado:
Telha
Piscina:
Sim
Características da Piscina:
Deck, Gunite, Aquecido, No Solo, Acesso Externo ao Banho, Tela de Encerramento
Características Interiores
Quartos:
3
Banheiros:
3
Aquecimento:
Central
Resfriamento:
Central Aérea
Eletrodomésticos:
Forno Embutido, Cooktop, Lava Louça, Descarte, Secadora, Esquentador Elétrico, Microondas, Geladeira, Lavadora
Mobiliado:
Sim
Andar:
Tapete, Azulejo
Níveis:
Um
Características Adicionais
Subtipo de Imóvel:
Residência Unifamiliar
Estilo:
N/D
Ano de Construção:
1990
Tipo de Construção:
Bloco, concreto, estuque
Vagas na Garagem:
Sim
Vagas Cobertas:
N/D
Orientação da Fachada:
Noroeste
Animais Permitidos:
Não
Condição Especial:
Nenhum
Características Adicionais:
Persianas contra furacões, pátio privado, calhas de chuva, portas deslizantes, armazenamento
Características Adicionais 2:
Siga as regras e regulamentos do condado de Charlotte
Mapa
  • Endereço
    3 AMBERJACK CV
Fale com um profissional
Por Que Nos Escolher?
  • Comunicação e Transparência
  • Negociação Qualificada
  • Rede Profissional Robusta
  • Suporte Pós-Venda
Propriedades em Destaque

Imóveis relacionados

avt
Daniel Dourado
$ 2,200,000
avt
Daniel Dourado
$ 419,000
avt
Daniel Dourado
$ 279,000
avt
Daniel Dourado
$ 388,350
avt
Daniel Dourado
$ 532,880
avt
Daniel Dourado
$ 439,000
avt
Daniel Dourado
$ 368,990
avt
Daniel Dourado
$ 2,200,000
avt
Daniel Dourado
$ 335,080