Active

$327,000

Características:
  • 4 Quartos
  • 2 Banheiros
  • 144 m²
Visão Geral
  • ID: MFRA4683940
  • Quartos: 4
  • Banheiros: 2
  • Tamanho: 144 m²
Detalhes do Imóvel
Observações
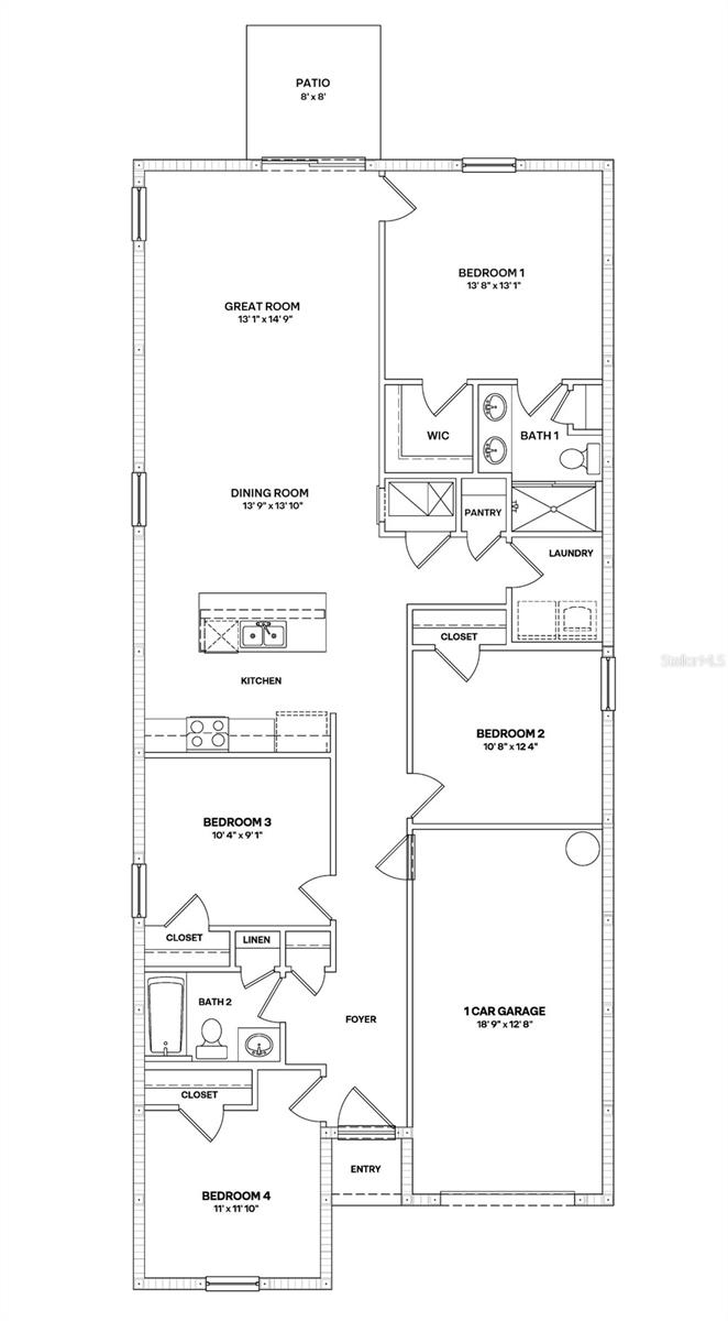
Em construção. Receba até $ 15.000 para custos de fechamento e taxas de juros especiais com o uso de nosso credor preferencial + $ 5.000 para atualizações - de agora até domingo, 31 de maio. O Cameron é uma planta baixa projetada pensando no conforto e na funcionalidade. Com 4 quartos e 2 banheiros, esta casa oferece muito espaço para famílias de todos os tamanhos. O Cameron é uma planta baixa projetada pensando no conforto e na funcionalidade. Com 4 quartos e 2 banheiros, esta casa oferece muito espaço para famílias de todos os tamanhos. O layout de conceito aberto conecta as áreas de cozinha, jantar e estar, criando um espaço acolhedor perfeito para receber convidados ou passar bons momentos juntos. A suíte principal, localizada na parte traseira da casa, oferece um retiro privativo com banheiro próprio e closet, enquanto três quartos adicionais acrescentam flexibilidade para família, convidados ou home office. Este condomínio oferece vida em estilo resort com comodidades para todos, incluindo piscina cintilante, sala de ginástica, playground, parque para cães e quadras de pickleball e tênis. Os moradores também podem desfrutar de competições amistosas nas quadras de vôlei de praia e basquete, criando a combinação perfeita de relaxamento e recreação.
Considerações Financeiras
Preço:
$327,000
Taxa de HOA:
132
Valor do Imposto:
$0
Preço por m²:
$209.62
Descrição Legal do Imposto:
LOTE 124 RYE CROSSING PH III e IV SUBPH IIIA, IIIB e IV PI #5135.2755/9
Características Exteriores
Tamanho do Lote:
5065
Características do Lote:
N/D
Beira-mar:
Não
Vagas de Estacionamento:
N/D
Estacionamento:
Entrada de automóveis, abridor de porta de garagem
Telhado:
Telha
Piscina:
Não
Características da Piscina:
Outro
Características Interiores
Quartos:
4
Banheiros:
2
Aquecimento:
Elétrico
Resfriamento:
Central Aérea
Eletrodomésticos:
Máquina de lavar louça, secadora, micro-ondas, fogão, geladeira, lavadora
Mobiliado:
Sim
Andar:
Tapete, Vinil Luxo
Níveis:
Um
Características Adicionais
Subtipo de Imóvel:
Residência Unifamiliar
Estilo:
N/D
Ano de Construção:
2026
Tipo de Construção:
Concreto
Vagas na Garagem:
Sim
Vagas Cobertas:
N/D
Orientação da Fachada:
Sudoeste
Animais Permitidos:
Sim
Condição Especial:
Nenhum
Características Adicionais:
Persianas contra furacões
Características Adicionais 2:
De acordo com as diretrizes HOA
Mapa
  • Endereço
    17910 WHEAT STACK CT
Fale com um profissional
Por Que Nos Escolher?
  • Comunicação e Transparência
  • Negociação Qualificada
  • Rede Profissional Robusta
  • Suporte Pós-Venda
Propriedades em Destaque

Imóveis relacionados

avt
Daniel Dourado
$ 385,000
avt
Daniel Dourado
$ 749,900
avt
Daniel Dourado
$ 2,100,000
avt
Daniel Dourado
$ 369,000
avt
Daniel Dourado
$ 1,750,000
avt
Daniel Dourado
$ 579,900