Active

$355,990

Características:
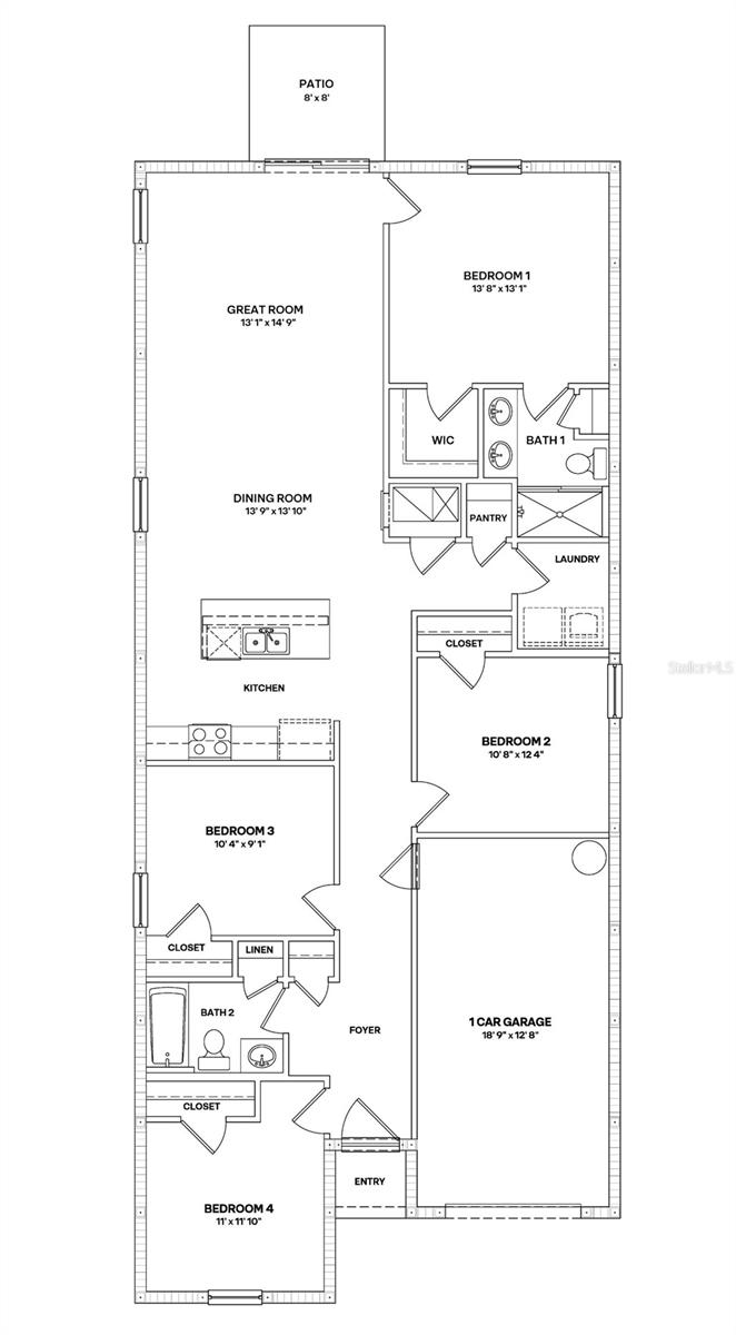
  • 4 Quartos
  • 2 Banheiros
  • 144 m²
Visão Geral
  • ID: MFRA4683821
  • Quartos: 4
  • Banheiros: 2
  • Tamanho: 144 m²
Detalhes do Imóvel
Observações
Em construção. TODOS OS CUSTOS DE FECHAMENTO PAGOS, $ 5.000 para upgrades + Taxas de juros especiais com o uso de nosso credor preferencial - agora até 31/03. Oakfield Lakes consiste em residências unifamiliares, todas projetadas para atender às necessidades da família moderna de hoje. No coração de Oakfield Lakes está The Grove, nosso centro comunitário central que é um espaço convidativo para socializar, relaxar e brincar, com espaços dedicados para cozinhar, food trucks e reuniões durante todo o ano. Disponível para residentes de Oakfield Lakes haverá uma piscina estilo resort, splash pad, playground e parque para cães para nossos familiares de 4 patas.
Considerações Financeiras
Preço:
$355,990
Taxa de HOA:
215
Valor do Imposto:
$0
Preço por m²:
$228.2
Descrição Legal do Imposto:
LOTE 663 TRILHAS BUCKHEAD PH IVA PI#5892.2260/9
Características Exteriores
Tamanho do Lote:
5040
Características do Lote:
N/D
Beira-mar:
Não
Vagas de Estacionamento:
N/D
Estacionamento:
Entrada de automóveis, abridor de porta de garagem
Telhado:
Telha
Piscina:
Não
Características da Piscina:
N/D
Características Interiores
Quartos:
4
Banheiros:
2
Aquecimento:
Elétrico
Resfriamento:
Central Aérea
Eletrodomésticos:
Máquina de lavar louça, descarte, secadora, micro-ondas, fogão, geladeira, lavadora
Mobiliado:
Sim
Andar:
Tapete, Vinil Luxo
Níveis:
Um
Características Adicionais
Subtipo de Imóvel:
Residência Unifamiliar
Estilo:
N/D
Ano de Construção:
2026
Tipo de Construção:
Bloco, Estuque
Vagas na Garagem:
Sim
Vagas Cobertas:
N/D
Orientação da Fachada:
Leste
Animais Permitidos:
Sim
Condição Especial:
Nenhum
Características Adicionais:
Persianas, iluminação e portas deslizantes contra furacões
Características Adicionais 2:
De acordo com as diretrizes HOA
Mapa
  • Endereço
    13121 OLD CANOE WAY
Fale com um profissional
Por Que Nos Escolher?
  • Comunicação e Transparência
  • Negociação Qualificada
  • Rede Profissional Robusta
  • Suporte Pós-Venda
Propriedades em Destaque

Imóveis relacionados

avt
Daniel Dourado
$ 759,000
avt
Daniel Dourado
$ 269,999
avt
Daniel Dourado
$ 450,000
avt
Daniel Dourado
$ 339,000
avt
Daniel Dourado
$ 599,000
avt
Daniel Dourado
$ 349,000