Active

$339,000

Características:
  • 5 Quartos
  • 2 Banheiros
  • 161 m²
Visão Geral
  • ID: MFRA4683023
  • Quartos: 5
  • Banheiros: 2
  • Tamanho: 161 m²
Detalhes do Imóvel
Observações
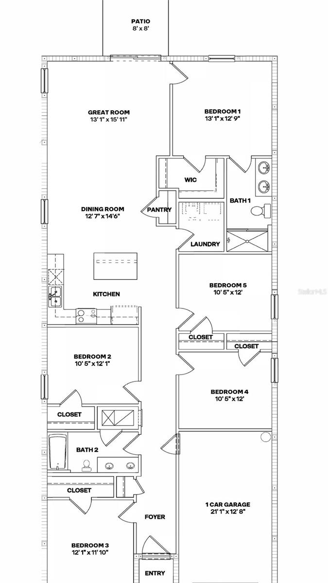
MOVIMENTE-SE PRONTO! Receba até $ 15.000 para custos de fechamento e taxas de juros especiais com o uso de nosso credor preferencial + $ 5.000 para atualizações - de agora até domingo, 31 de maio. O Alford é uma casa térrea que equilibra estilo, espaço e conforto. Oferecendo 5 quartos, 2 banheiros e 1.739 pés quadrados, esta planta oferece muito espaço para famílias de todos os tamanhos. Seu layout de conceito aberto conecta perfeitamente as áreas de cozinha, jantar e estar, criando um espaço acolhedor ideal para reuniões ou para a vida cotidiana. A cozinha se destaca com armários estilo shaker, bancadas de quartzo e eletrodomésticos de aço inoxidável, todos com vista para a área de jantar para facilitar o entretenimento. Com seu layout cuidadoso e acabamentos modernos, o Alford facilita a criação da casa que se adapta ao seu estilo de vida. A suíte principal fica na parte de trás da casa para maior privacidade, com closet e banheiro privativo com pia dupla e espaço separado para chuveiro e toalete. Quatro quartos adicionais na frente da casa oferecem flexibilidade para familiares, convidados ou até mesmo um escritório doméstico. Este condomínio oferece vida em estilo resort com comodidades para todos, incluindo piscina cintilante, sala de ginástica, playground, parque para cães e quadras de pickleball e tênis. Os moradores também podem desfrutar de competições amistosas nas quadras de vôlei de praia e basquete, criando a combinação perfeita de relaxamento e recreação.
Considerações Financeiras
Preço:
$339,000
Taxa de HOA:
132
Valor do Imposto:
$0
Preço por m²:
$194.94
Descrição Legal do Imposto:
LOTE 131 RYE CROSSING PH III e IV SUBPH IIIA, IIIB e IV PI #5135.2790/9
Características Exteriores
Tamanho do Lote:
5064
Características do Lote:
N/D
Beira-mar:
Não
Vagas de Estacionamento:
N/D
Estacionamento:
Entrada de automóveis, abridor de porta de garagem
Telhado:
Telha
Piscina:
Não
Características da Piscina:
Outro
Características Interiores
Quartos:
5
Banheiros:
2
Aquecimento:
Elétrico
Resfriamento:
Central Aérea
Eletrodomésticos:
Máquina de lavar louça, secadora, micro-ondas, fogão, geladeira, lavadora
Mobiliado:
Sim
Andar:
Tapete, Vinil Luxo
Níveis:
Um
Características Adicionais
Subtipo de Imóvel:
Residência Unifamiliar
Estilo:
N/D
Ano de Construção:
2026
Tipo de Construção:
Concreto
Vagas na Garagem:
Sim
Vagas Cobertas:
N/D
Orientação da Fachada:
Sudoeste
Animais Permitidos:
Sim
Condição Especial:
Nenhum
Características Adicionais:
Persianas contra furacões
Características Adicionais 2:
De acordo com as diretrizes HOA
Mapa
  • Endereço
    17938 WHEAT STACK CT
Fale com um profissional
Por Que Nos Escolher?
  • Comunicação e Transparência
  • Negociação Qualificada
  • Rede Profissional Robusta
  • Suporte Pós-Venda
Propriedades em Destaque

Imóveis relacionados

avt
Daniel Dourado
$ 799,000
avt
Daniel Dourado
$ 349,900
avt
Daniel Dourado
$ 299,000
avt
Daniel Dourado
$ 334,900
avt
Daniel Dourado
$ 230,000
avt
Daniel Dourado
$ 464,990
avt
Daniel Dourado
$ 499,000
avt
Daniel Dourado
$ 265,000
avt
Daniel Dourado
$ 360,000