Active

$423,000

Características:
  • 5 Quartos
  • 3 Banheiros
  • 272 m²
Visão Geral
  • ID: MFRTB8366236
  • Quartos: 5
  • Banheiros: 3
  • Tamanho: 272 m²
Detalhes do Imóvel
Observações
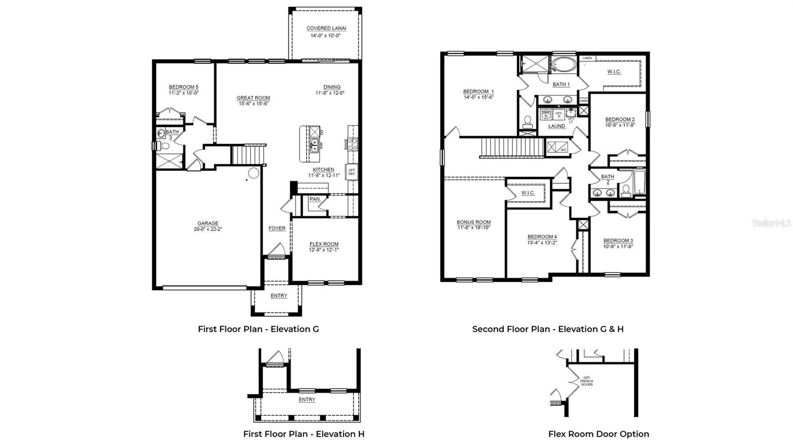
Aninhado na procurada comunidade de Silverstone North, esta impressionante casa de 5 quartos e 3 banheiros, construída em 2021, possui a das maiores plantas do bairro. A estréia de Hemingway tem mais de 2.900 pés quadrados de espaço de vida cuidadosamente projetado e mais de 9 'tetos por toda parte. Perfeito para entretenimento, a cozinha de conceito aberto possui armários personalizados, utensílios de aço inoxidável, bancadas em granito, um elegante backsplash e uma ilha espaçosa, enquanto uma encantadora porta de celeiro leva a uma despensa e café. O escritório dedicado com elegantes portas francesas fornece um espaço de trabalho tranquilo, e o loft de grandes dimensões oferece versatilidade adicional. Desfrute do pôr do sol de tirar o fôlego sobre o lago sereno do pátio de costas cobertas. Construído com uma construção durável de blocos de concreto nos dois pisos, esta é uma casa com eficiência energética. Esta casa está situada em uma rua sem saída, sem tráfego. Os moradores de Silverstone North têm acesso a comodidades fantásticas, incluindo uma piscina cintilante, clube, parque de cães e lote, tudo de fácil acesso à I-75, compras, restaurantes com melhor classificação, campos de golfe, parques, museus e praias mundiais. Não Sinto falta da sua chance de chamar esta casa excepcional de sua - schedule sua exibição hoje! ** Home Warrnty incluído ** VA empréstimo assumido com taxa de juros muito baixa para compradores qualificados ** O vendedor motivado considerará concessões/custos de fechamento
Considerações Financeiras
Preço:
$423,000
Taxa de HOA:
123.08
Valor do Imposto:
$5537
Preço por m²:
$144.17
Descrição Legal do Imposto:
Lote 28, Silverstone North Ph Ia & Ib Pi #7169.0640/9
Características Exteriores
Tamanho do Lote:
6804
Características do Lote:
N/D
Beira-mar:
Não
Vagas de Estacionamento:
N/D
Estacionamento:
N/D
Telhado:
Telha
Piscina:
Não
Características da Piscina:
N/D
Características Interiores
Quartos:
5
Banheiros:
3
Aquecimento:
Central
Resfriamento:
Central Aérea
Eletrodomésticos:
Máquina de lavar louça, descarte, micro-ondas, fogão, geladeira
Mobiliado:
Não
Andar:
Tapete, Azulejo Cerâmico
Níveis:
Dois
Características Adicionais
Subtipo de Imóvel:
Residência Unifamiliar
Estilo:
N/D
Ano de Construção:
2021
Tipo de Construção:
Bloco, Estuque
Vagas na Garagem:
Sim
Vagas Cobertas:
N/D
Orientação da Fachada:
Oeste
Animais Permitidos:
Sim
Condição Especial:
Nenhum
Características Adicionais:
Persianas contra furacões, calhas de chuva
Características Adicionais 2:
Verifique as restrições de leasing com o HOA e o município.
Mapa
  • Endereço
    5214 GRANITE DUST PL
Fale com um profissional
Por Que Nos Escolher?
  • Comunicação e Transparência
  • Negociação Qualificada
  • Rede Profissional Robusta
  • Suporte Pós-Venda
Propriedades em Destaque

Imóveis relacionados

avt
Daniel Dourado
$ 445,000
avt
Daniel Dourado
$ 1,287,138
avt
Daniel Dourado
$ 698,547
avt
Daniel Dourado
$ 861,071
avt
Daniel Dourado
$ 250,000
avt
Daniel Dourado
$ 329,900
avt
Daniel Dourado
$ 389,900
avt
Daniel Dourado
$ 309,900
avt
Daniel Dourado
$ 395,000
avt
Daniel Dourado
$ 574,900
avt
Daniel Dourado
$ 725,000