Active

$549,900

Características:
  • 4 Quartos
  • 3 Banheiros
  • 233 m²
Visão Geral
  • ID: MFRTB8356137
  • Quartos: 4
  • Banheiros: 3
  • Tamanho: 233 m²
Detalhes do Imóvel
Observações
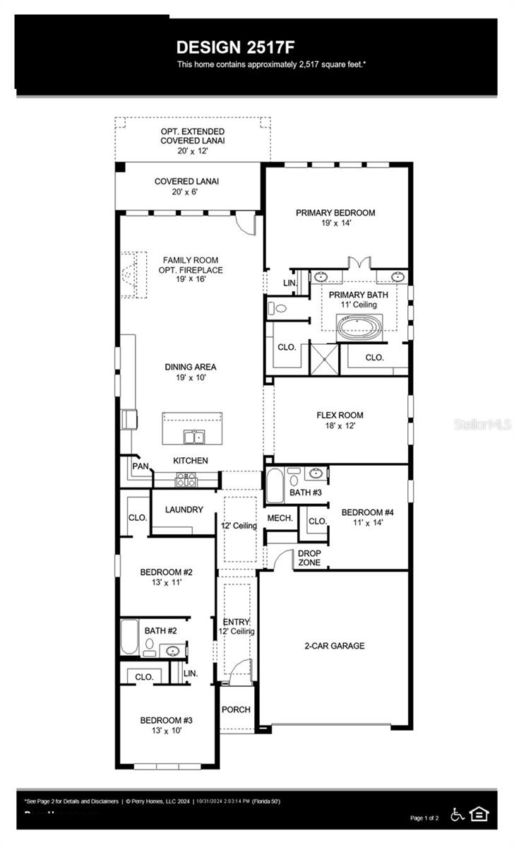
Em construção. A varanda da frente se abre para uma entrada acolhedora com um teto de bandeja estendido que abraça o corredor principal. Dois quartos secundários com armários e banheiro completo estão fora do salão principal. Uma suíte de convidado completa com banheiro privativo e amplo espaço no armário é adjacente. Você passa pela lavanderia quando entra na cozinha, que apresenta uma ilha com assentos embutidos e despensa de canto. Uma sala flexível de bônus fica em frente à cozinha. A área de jantar flui da cozinha para a sala da família conectada, que oferece abundância de luz natural a partir de sua porta de vidro deslizante e acesso ao lanai coberto de quintal. O quarto principal tem uma parede de janelas com vista para o quintal. As portas duplas levam ao banheiro, que hospeda duplas, uma banheira de jardim, chuveiro fechado de vidro e dois armários. A zona de gota está fora da garagem de dois carros.
Considerações Financeiras
Preço:
$549,900
Taxa de HOA:
15
Valor do Imposto:
$2809
Preço por m²:
$218.47
Descrição Legal do Imposto:
LOTE DE MANDARIN GROVE 204_BLOCK 1_SECTION 17
Características Exteriores
Tamanho do Lote:
7029
Características do Lote:
N/D
Beira-mar:
Não
Vagas de Estacionamento:
N/D
Estacionamento:
N/D
Telhado:
Telha
Piscina:
Não
Características da Piscina:
N/D
Características Interiores
Quartos:
4
Banheiros:
3
Aquecimento:
Central, Elétrica, Bomba de Calor
Resfriamento:
Central Aérea
Eletrodomésticos:
Forno embutido, Cooktop, Máquina de lavar louça, Descarte, Esquentador elétrico, Exaustor, Microondas, Exaustor
Mobiliado:
Não
Andar:
Carpete, Azulejo Cerâmico, Laminado
Níveis:
Um
Características Adicionais
Subtipo de Imóvel:
Residência Unifamiliar
Estilo:
N/D
Ano de Construção:
2024
Tipo de Construção:
Bloco, Estuque
Vagas na Garagem:
Sim
Vagas Cobertas:
N/D
Orientação da Fachada:
Sul
Animais Permitidos:
Sim
Condição Especial:
Nenhum
Características Adicionais:
Iluminação
Características Adicionais 2:
Verifique com o HOA para obter mais informações.
Mapa
  • Endereço
    3714 109TH STREET EAST
Fale com um profissional
Por Que Nos Escolher?
  • Comunicação e Transparência
  • Negociação Qualificada
  • Rede Profissional Robusta
  • Suporte Pós-Venda
Propriedades em Destaque

Imóveis relacionados

avt
Daniel Dourado
$ 317,400
avt
Daniel Dourado
$ 595,000
avt
Daniel Dourado
$ 624,000
avt
Daniel Dourado
$ 445,000
avt
Daniel Dourado
$ 1,287,138
avt
Daniel Dourado
$ 698,547
avt
Daniel Dourado
$ 861,071
avt
Daniel Dourado
$ 250,000
avt
Daniel Dourado
$ 329,900
avt
Daniel Dourado
$ 389,900