Active

$659,000

Características:
  • 4 Quartos
  • 3 Banheiros
  • 223 m²
Visão Geral
  • ID: MFRA4678967
  • Quartos: 4
  • Banheiros: 3
  • Tamanho: 223 m²
Detalhes do Imóvel
Observações
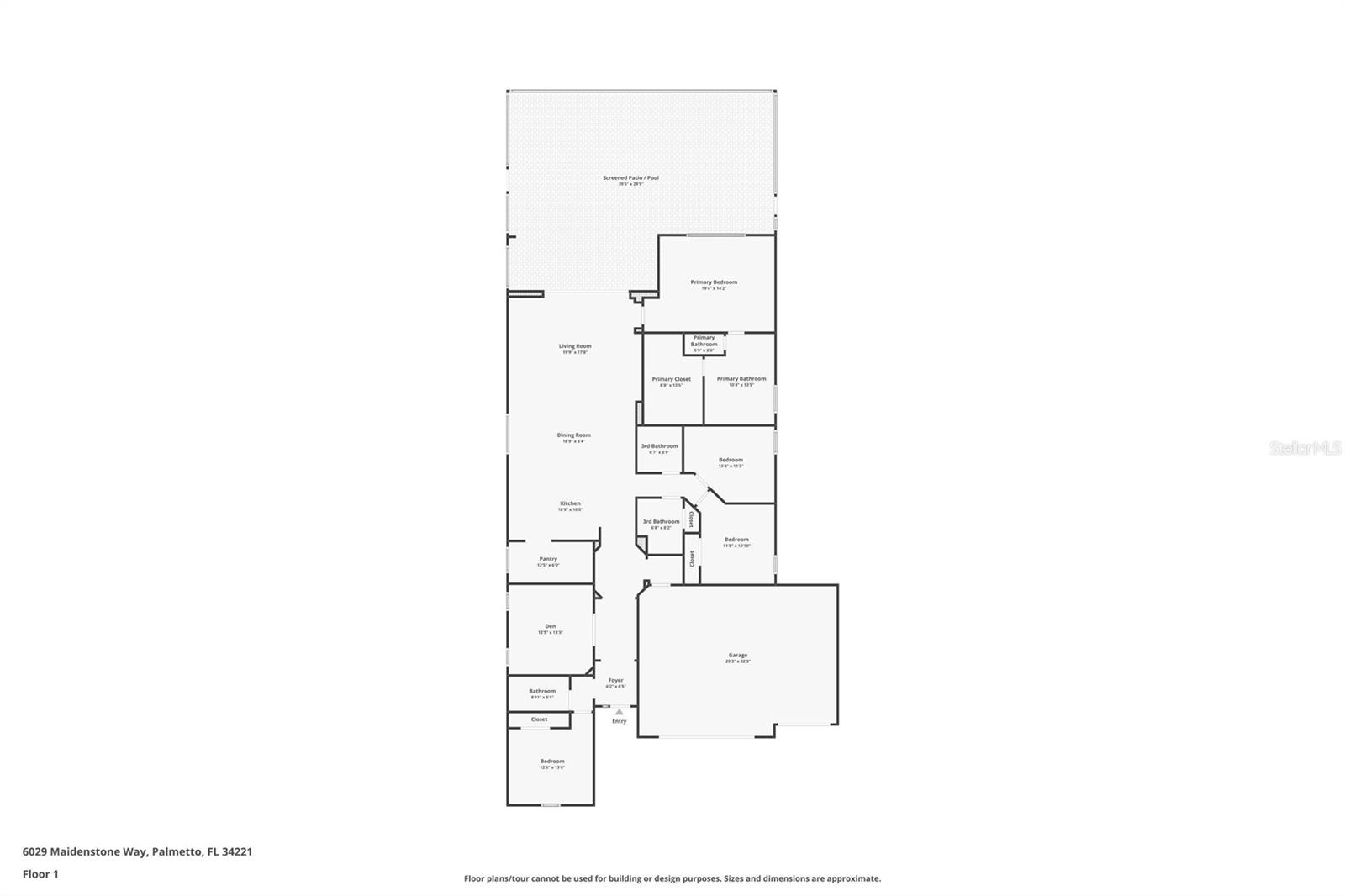
Bem-vindo a este modelo excepcional da Taylor Morrison Antigua, oferecendo 4 quartos, COM DEN, 3 banheiros e uma garagem para 3 carros com mais de 2.400 pés quadrados de espaço cuidadosamente projetado, perfeitamente posicionado em um lote de conservação premium no muito procurado Eaves Bend em Artisan Lakes. Projetada como uma verdadeira casa para sempre, esta residência oferece mais de US$ 185.000 em atualizações de alta qualidade, proporcionando conforto, qualidade e valor duradouro. A planta baixa de conceito aberto é ideal tanto para a vida cotidiana quanto para entretenimento, ancorada por uma cozinha gourmet GE Cafe com cozinha a gás, bancadas de quartzo, centro de bebidas GE Monogram, tetos de bandeja, garagem em epóxi e acabamentos de luxo por toda parte. Saia para o seu quintal privado em estilo resort, completo com uma piscina de água salgada aquecida expandida e spa, recinto blindado com malha anti-ver um, pátio com pavimentação de travertino e uma cozinha de verão a gás externa totalmente equipada com bancadas de quartzo, perfeita para diversão durante todo o ano. Os destaques adicionais incluem cercas de haste de alumínio, escadas do sótão da garagem com isolamento, sistema de amaciante de água para toda a casa, baixo HOA e nenhuma designação de zona de inundação. Convenientemente localizado perto da I-75, com fácil acesso a Sarasota, Lakewood Ranch, Tampa, São Petersburgo e Bradenton, bem como lojas, restaurantes, escolas e conveniências diárias nas proximidades. A Artisan Lakes Elementary School será inaugurada neste outono, ano letivo de 2026-2027! Os residentes de Artisan Lakes desfrutam de comodidades em estilo resort, incluindo clube, academia, piscina comunitária, trilhas para caminhada, parque para cães e lote para crianças. Lindamente conservada, pronta para morar e rica em atualizações, esta casa oferece um valor excepcional em uma localização privilegiada, oportunidades como esta são raras. Agende sua exibição privada hoje mesmo!!
Considerações Financeiras
Preço:
$659,000
Taxa de HOA:
495
Valor do Imposto:
$6888.1
Preço por m²:
$274.24
Descrição Legal do Imposto:
LOTE 431, LAGOS ARTESANAIS BEND BEND PH II SUBPH A, B & C PI #6045.0135/9
Características Exteriores
Tamanho do Lote:
8682
Características do Lote:
Desmatada, Área de Conservação
Beira-mar:
Não
Vagas de Estacionamento:
N/D
Estacionamento:
N/D
Telhado:
Telha
Piscina:
Sim
Características da Piscina:
Sem cloro, Gunite, Aquecido, No solo, Iluminação, Água salgada, Tela de proteção
Características Interiores
Quartos:
4
Banheiros:
3
Aquecimento:
Central, Gás Natural
Resfriamento:
Central Aérea
Eletrodomésticos:
Cooktop, Máquina de Lavar Louça, Descarte, Microondas, Geladeira, Geladeira para Vinho
Mobiliado:
Sim
Andar:
Tapete, Azulejo Cerâmico
Níveis:
Um
Características Adicionais
Subtipo de Imóvel:
Residência Unifamiliar
Estilo:
N/D
Ano de Construção:
2021
Tipo de Construção:
Bloco, Estuque
Vagas na Garagem:
Sim
Vagas Cobertas:
N/D
Orientação da Fachada:
Oeste
Animais Permitidos:
Não
Condição Especial:
Nenhum
Características Adicionais:
Persianas contra furacões, churrasqueira externa, cozinha externa, entrada privativa, caixa de correio privativa, quintal privativo, calhas de chuva, calçada, portas de correr
Características Adicionais 2:
Consulte as regras e regulamentos HOA
Mapa
  • Endereço
    6029 MAIDENSTONE WAY
Fale com um profissional
Por Que Nos Escolher?
  • Comunicação e Transparência
  • Negociação Qualificada
  • Rede Profissional Robusta
  • Suporte Pós-Venda
Propriedades em Destaque

Imóveis relacionados

avt
Daniel Dourado
$ 395,000
avt
Daniel Dourado
$ 1,595,000
avt
Daniel Dourado
$ 388,990
avt
Daniel Dourado
$ 485,000
avt
Daniel Dourado
$ 425,000
avt
Daniel Dourado
$ 330,000
avt
Daniel Dourado
$ 477,997
avt
Daniel Dourado
$ 285,000
avt
Daniel Dourado
$ 360,000