Active

$659,000

Características:
  • 4 Quartos
  • 2 Banheiros
  • 205 m²
Visão Geral
  • ID: MFRFC312499
  • Quartos: 4
  • Banheiros: 2
  • Tamanho: 205 m²
Detalhes do Imóvel
Observações
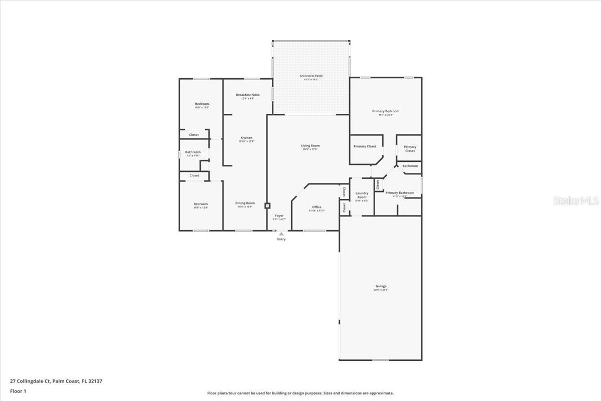
Paraíso à beira -mar no país veleiro! Esta impressionante casa de quatro quartos está situada em um sereno canal de água salgada, oferecendo vistas deslumbrantes e acesso direto à hidrovia intracoastal. Sem pontes fixas para navegar, você pode desfrutar de experiências de barco e pesca sem esforço. Este modelo de Willow Seagate foi construído em 2017 e foi meticulosamente mantido. Possui uma nova camada de tinta por toda parte. O design de interiores combina estilo e funcionalidade, perfeito para a vida moderna. Cozinha recentemente atualizada com utensílios de aço inoxidável. Relaxe no banheiro principal espaçoso, com um chuveiro de azulejos e uma banheira de imersão separada para relaxar. Uma garagem para entrada lateral de três carros oferece amplo estacionamento e armazenamento, enquanto o Lanai estendido oferece um espaço ao ar livre sereno para apreciar as vistas. Com 80 'de fachada de água e uma doca de 8' x 16 'no lugar, esta casa oferece inúmeras oportunidades para passeios de barco, pesca e desfrutar do belo estilo de vida da Flórida. Não perca esta incrível oportunidade de possuir um pedaço de paraíso à beira -mar. O proprietário é um agente imobiliário licenciado.
Considerações Financeiras
Preço:
$659,000
Taxa de HOA:
N/D
Valor do Imposto:
$10194
Preço por m²:
$298.46
Descrição Legal do Imposto:
Palm Coast Seção 14 Bloco 00002 Lote 0129 Subdivisão 0R 127 PG 37 ou 1233 PG 1746 ou 1734/131
Características Exteriores
Tamanho do Lote:
10019
Características do Lote:
N/D
Beira-mar:
Não
Vagas de Estacionamento:
N/D
Estacionamento:
N/D
Telhado:
Telha
Piscina:
Não
Características da Piscina:
N/D
Características Interiores
Quartos:
4
Banheiros:
2
Aquecimento:
Central
Resfriamento:
Central Aérea
Eletrodomésticos:
Máquina de lavar louça, descarte, micro-ondas, fogão, geladeira
Mobiliado:
Não
Andar:
Tapete, Azulejo Cerâmico, Azulejo
Níveis:
Um
Características Adicionais
Subtipo de Imóvel:
Residência Unifamiliar
Estilo:
N/D
Ano de Construção:
2017
Tipo de Construção:
Bloco, concreto, estuque
Vagas na Garagem:
Sim
Vagas Cobertas:
N/D
Orientação da Fachada:
Leste
Animais Permitidos:
Não
Condição Especial:
Nenhum
Características Adicionais:
Calhas de chuva
Características Adicionais 2:
N/D
Mapa
  • Endereço
    27 COLLINGDALE CT
Fale com um profissional
Por Que Nos Escolher?
  • Comunicação e Transparência
  • Negociação Qualificada
  • Rede Profissional Robusta
  • Suporte Pós-Venda
Propriedades em Destaque

Imóveis relacionados

avt
Daniel Dourado
$ 284,900
avt
Daniel Dourado
$ 289,990
avt
Daniel Dourado
$ 1,199,000
avt
Daniel Dourado
$ 690,000
avt
Daniel Dourado
$ 554,999
avt
Daniel Dourado
$ 525,000
avt
Daniel Dourado
$ 219,900
avt
Daniel Dourado
$ 415,000