Active

$490,000

Características:
  • 6 Quartos
  • 5 Banheiros
  • 364 m²
Visão Geral
  • ID: MFRFC297480
  • Quartos: 6
  • Banheiros: 5
  • Tamanho: 364 m²
Detalhes do Imóvel
Observações
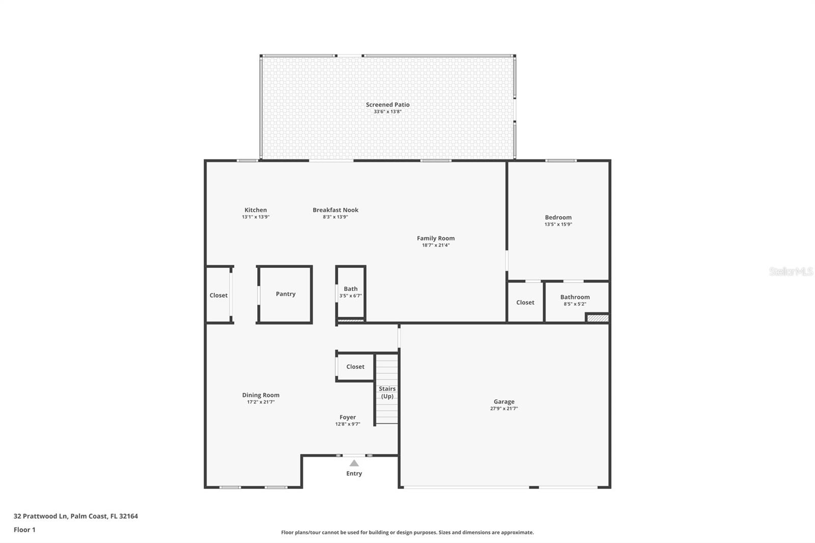
Venda a descoberto. Fácil de mostrar e procurar ofertas! Procurando uma casa espaçosa com amplos quartos e banheiros, espaço aberto, uma abundância de armazenamento e notável quintal? 6 quartos 4,5 banheiros, garagem de 3 carros, pouco menos de 4000 pés quadrados vivos. Ladrilho, laminado por toda parte, sem tapete! No térreo, toda a área de estar, cozinha atualizada, para incluir balcões de granito, utensílios de aço inoxidável, armários de fechamento macio, despensa enorme. Incluído na planta do primeiro andar um quarto com banho de banheiro privativo. Também um banho de 1/2 no andar de baixo. No andar de cima, grande área de loft, 5 quartos, incluindo o primário com banheiro privativo e duas caminhadas em armários. Tanto espaço com os tetos altos! Grande varanda traseira de 12x33 pés, com piso de ladrilho com vista para o quintal e o pátio de pavimentação totalmente cercado, com fogo, dois galpões e paisagismo exuberante, muita privacidade. Esta casa está se movendo pronta! Este é realmente um oásis no meio de Palm Coast! Esta propriedade é uma venda a descoberto. O telhado substituiu 2021, dois sistemas CA substituídos em 2018 e 2022, aquecedor de água quente substituiu 2022, várias janelas substituídas em 2022. Agende sua consulta hoje!
Considerações Financeiras
Preço:
$490,000
Taxa de HOA:
N/D
Valor do Imposto:
$5611
Preço por m²:
$124.87
Descrição Legal do Imposto:
Palm Coast Seção 24 Bloco 00045 Lote 0029 Conclusão da subdivisão Ano de 1980 ou 182 pg 212 ou 1100 pg 1900-DC ou 1100 pg 1898-SA ou 1171 pg 1150 ou 1357 pg 663
Características Exteriores
Tamanho do Lote:
10106
Características do Lote:
N/D
Beira-mar:
Não
Vagas de Estacionamento:
N/D
Estacionamento:
N/D
Telhado:
Telha
Piscina:
Não
Características da Piscina:
N/D
Características Interiores
Quartos:
6
Banheiros:
5
Aquecimento:
Central, Elétrica
Resfriamento:
Ar Central, Outro
Eletrodomésticos:
Máquina de lavar louça, descarte, secadora, micro-ondas, fogão, geladeira, lavadora
Mobiliado:
Não
Andar:
Laminado, Azulejo
Níveis:
Dois
Características Adicionais
Subtipo de Imóvel:
Residência Unifamiliar
Estilo:
N/D
Ano de Construção:
2005
Tipo de Construção:
Bloco, revestimento de vinil
Vagas na Garagem:
Sim
Vagas Cobertas:
N/D
Orientação da Fachada:
Noroeste
Animais Permitidos:
Não
Condição Especial:
Venda a descoberto
Características Adicionais:
Persianas contra furacões, iluminação, caixa de correio privada, portas deslizantes
Características Adicionais 2:
N/D
Mapa
  • Endereço
    32 PRATTWOOD LN
Fale com um profissional
Por Que Nos Escolher?
  • Comunicação e Transparência
  • Negociação Qualificada
  • Rede Profissional Robusta
  • Suporte Pós-Venda
Propriedades em Destaque

Imóveis relacionados

avt
Daniel Dourado
$ 419,900
avt
Daniel Dourado
$ 425,000
avt
Daniel Dourado
$ 470,000
avt
Daniel Dourado
$ 339,000
avt
Daniel Dourado
$ 1,795,000
avt
Daniel Dourado
$ 745,000
avt
Daniel Dourado
$ 3,975,000
avt
Daniel Dourado
$ 1,450,000