Active

$269,000

Características:
  • 3 Quartos
  • 2 Banheiros
  • 148 m²
Visão Geral
  • ID: MFRO6382217
  • Quartos: 3
  • Banheiros: 2
  • Tamanho: 148 m²
Detalhes do Imóvel
Observações
Pré-construção. Para ser construído. Pré-construção. Para ser construído. As fotos são representações do modelo XYZ. O comprador pode selecionar acabamentos. O preço base inclui recursos padrão; atualizações adicionais. Tempo estimado de construção de 8 a 10 meses a partir do contrato.
Considerações Financeiras
Preço:
$269,000
Taxa de HOA:
N/D
Valor do Imposto:
$339
Preço por m²:
$168.13
Descrição Legal do Imposto:
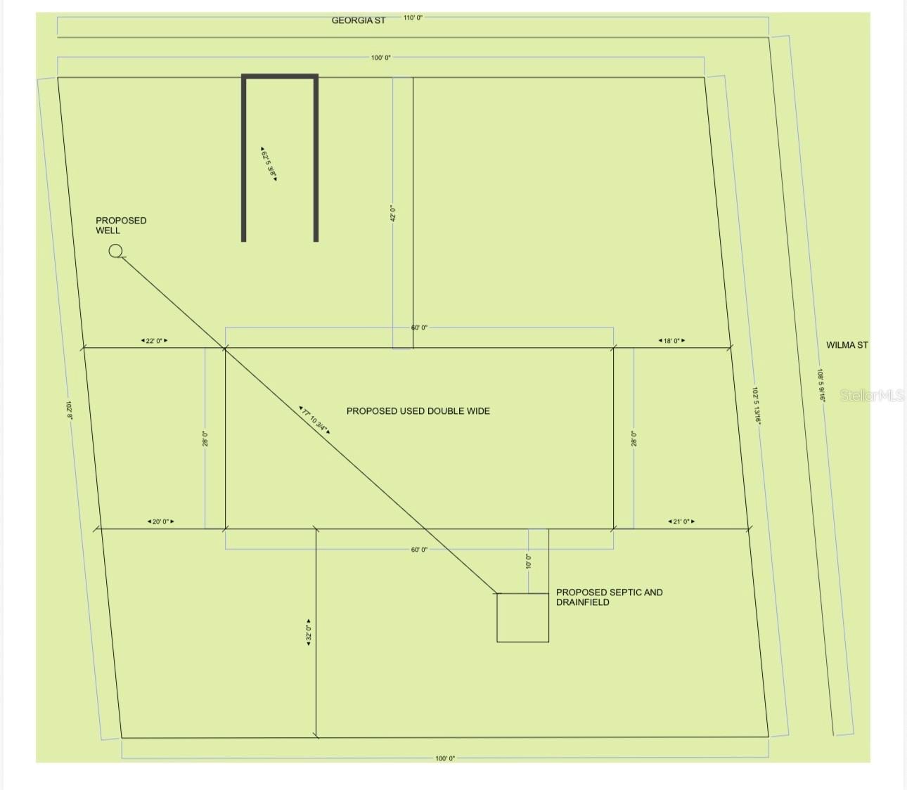
LAKEVIEW PARK LOTES 20 A 23 INCL BLK 11 PB 5 PG 63 ORB 6566 PG 89
Características Exteriores
Tamanho do Lote:
10000
Características do Lote:
Lote de esquina, pavimentado
Beira-mar:
Não
Vagas de Estacionamento:
N/D
Estacionamento:
N/D
Telhado:
Telha
Piscina:
Não
Características da Piscina:
N/D
Características Interiores
Quartos:
3
Banheiros:
2
Aquecimento:
Bomba de calor
Resfriamento:
Central Aérea
Eletrodomésticos:
Máquina de lavar louça, aquecedor elétrico de água, fogão, geladeira
Mobiliado:
Sim
Andar:
Linóleo
Níveis:
Um
Características Adicionais
Subtipo de Imóvel:
Residência Unifamiliar
Estilo:
N/D
Ano de Construção:
2026
Tipo de Construção:
Revestimento de vinil, quadro
Vagas na Garagem:
Não
Vagas Cobertas:
N/D
Orientação da Fachada:
Norte
Animais Permitidos:
Não
Condição Especial:
Nenhum
Características Adicionais:
Nenhum
Características Adicionais 2:
N/D
Mapa
  • Endereço
    45560 GEORGIA ST
Fale com um profissional
Por Que Nos Escolher?
  • Comunicação e Transparência
  • Negociação Qualificada
  • Rede Profissional Robusta
  • Suporte Pós-Venda
Propriedades em Destaque

Imóveis relacionados

avt
Daniel Dourado
$ 259,999
avt
Daniel Dourado
$ 599,000
avt
Daniel Dourado
$ 995,000
avt
Daniel Dourado
$ 325,000
avt
Daniel Dourado
$ 1,350,000
avt
Daniel Dourado
$ 1,995,000
avt
Daniel Dourado
$ 521,265
avt
Daniel Dourado
$ 259,000
avt
Daniel Dourado
$ 382,990
avt
Daniel Dourado
$ 459,000
avt
Daniel Dourado
$ 899,000