Active

$569,000

Características:
  • 5 Quartos
  • 4 Banheiros
  • 273 m²
Visão Geral
  • ID: MFRV4946624
  • Quartos: 5
  • Banheiros: 4
  • Tamanho: 273 m²
Detalhes do Imóvel
Observações
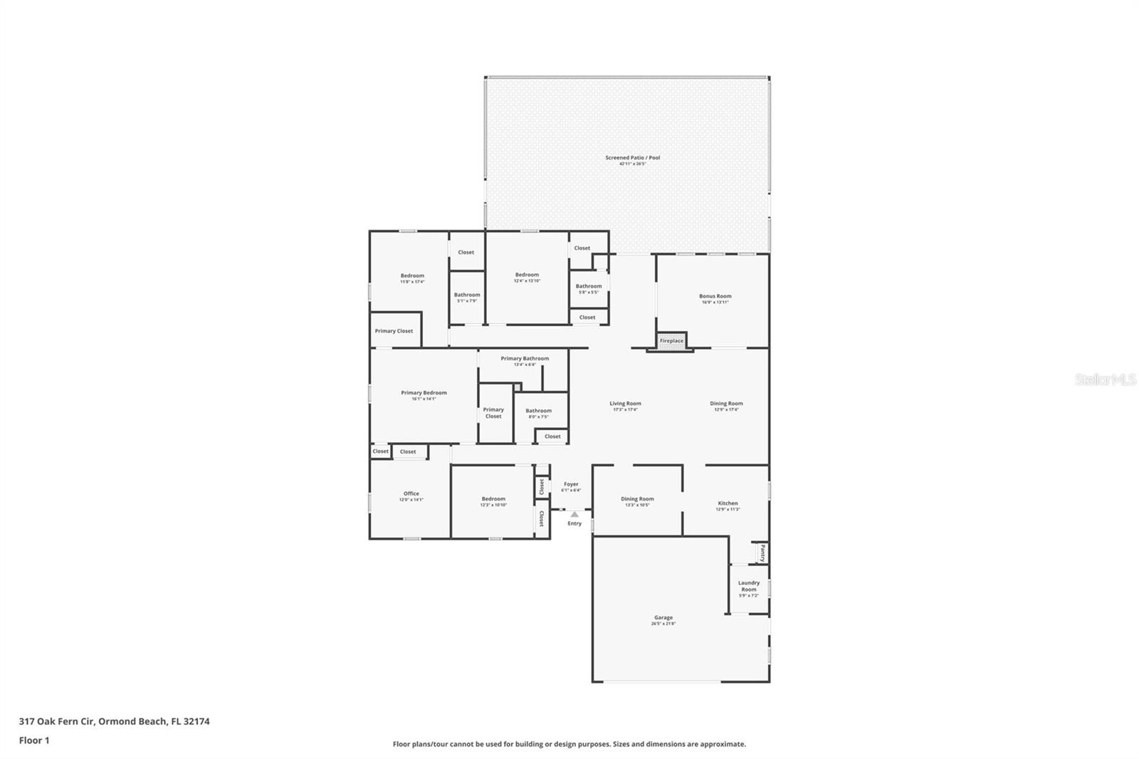
Experimente uma vida refinada nesta casa lindamente atualizada, posicionada em um terreno de esquina dentro do condomínio fechado de Tymber Creek. Cercada por um paisagismo maduro e um cenário natural, esta ampla residência de 5 quartos e 3,5 banheiros oferece uma rara mistura de espaço e privacidade. No interior, a casa possui várias áreas de estar, incluindo uma grande sala de bônus e espaço para refeições formais, proporcionando flexibilidade excepcional para entretenimento, trabalho remoto ou vida multifuncional. O layout aberto da área de estar é perfeitamente projetado tanto para o conforto do dia a dia quanto para grandes reuniões. Saia para um retiro privado no quintal centrado ao redor da piscina. Este espaço oferece privacidade e espaço para desfrutar da vida na Flórida o ano todo. Aproveite o acesso a um impressionante conjunto de comodidades, incluindo duas piscinas comunitárias, tênis e basquete, playgrounds e um pitoresco santuário de pássaros, tudo em um ambiente fechado e seguro. Melhorias significativas: telhado, calhas, bomba de piscina, janelas, portão de garagem, pintura em 2022 e ar condicionado em 2019. *Uma ou mais fotos podem ser editadas virtualmente.
Considerações Financeiras
Preço:
$569,000
Taxa de HOA:
250
Valor do Imposto:
$7350.12
Preço por m²:
$193.14
Descrição Legal do Imposto:
LOTE 317 TYMBER CREEK FASE 2 MB 35 PGS 116-126 PER OU 4249 PG 1441
Características Exteriores
Tamanho do Lote:
13589
Características do Lote:
N/D
Beira-mar:
Não
Vagas de Estacionamento:
N/D
Estacionamento:
Abridor de porta de garagem, nível do solo
Telhado:
Telha
Piscina:
Sim
Características da Piscina:
No solo, varredura de piscina, gabinete de tela
Características Interiores
Quartos:
5
Banheiros:
4
Aquecimento:
Central, Elétrica
Resfriamento:
Central Aérea
Eletrodomésticos:
Máquina de lavar louça, secadora, aquecedor elétrico de água, micro-ondas, fogão, geladeira, lavadora
Mobiliado:
Sim
Andar:
Carpete, Azulejo Cerâmico, Vinil
Níveis:
Um
Características Adicionais
Subtipo de Imóvel:
Residência Unifamiliar
Estilo:
N/D
Ano de Construção:
1984
Tipo de Construção:
Tapume de madeira
Vagas na Garagem:
Sim
Vagas Cobertas:
N/D
Orientação da Fachada:
Oeste
Animais Permitidos:
Não
Condição Especial:
Nenhum
Características Adicionais:
Portas deslizantes, armazenamento
Características Adicionais 2:
N/D
Mapa
  • Endereço
    317 OAK FERN CIR
Fale com um profissional
Por Que Nos Escolher?
  • Comunicação e Transparência
  • Negociação Qualificada
  • Rede Profissional Robusta
  • Suporte Pós-Venda
Propriedades em Destaque

Imóveis relacionados

avt
Daniel Dourado
$ 1,695,000
avt
Daniel Dourado
$ 325,000
avt
Daniel Dourado
$ 785,000
avt
Daniel Dourado
$ 649,900
avt
Daniel Dourado
$ 528,000
avt
Daniel Dourado
$ 530,000
avt
Daniel Dourado
$ 609,000
avt
Daniel Dourado
$ 459,000
avt
Daniel Dourado
$ 645,000
avt
Daniel Dourado
$ 429,000