Active

$875,000

Características:
  • 3 Quartos
  • 3 Banheiros
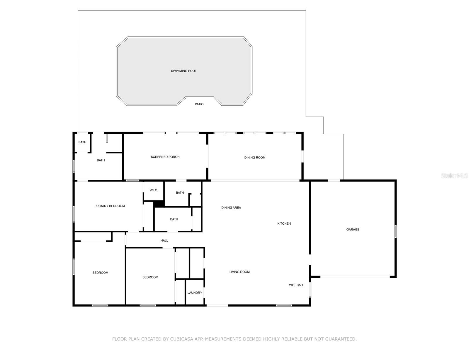
  • 216 m²
Visão Geral
  • ID: MFRFC303755
  • Quartos: 3
  • Banheiros: 3
  • Tamanho: 216 m²
Detalhes do Imóvel
Observações
Uau! Confira esta casa totalmente atualizada com planta aberta e todos os recursos modernos. Aproveite a vida à beira-mar no Ormond By the Sea. Caminhe, surfe ou pesque ao longo da praia com acesso público nas proximidades. Ou refresque-se na sua própria piscina privada aquecida, grande o suficiente para fazer algumas voltas de exercício. A casa foi completamente atualizada no final de 2021. Janelas classificadas como furacões e isolamento de espuma proporcionam contas de energia elétrica baixas. O plano aberto com excelente design de sala é ideal para reuniões familiares e entretenimento. Você vai adorar a ilha de cozinha de 12', bancadas de quartzo, tetos de tábuas, iluminação LED, bar de bebidas, piso de tábuas de vinil por toda parte, venezianas e a lista continua. O terceiro banheiro completo está conectado ao alpendre coberto completo com churrasqueira embutida, exaustor e armários modernos para diversão ao ar livre. Um achado raro para uma casa "como nova" perto do oceano, esta é imperdível. Mobiliário opcional.
Considerações Financeiras
Preço:
$875,000
Taxa de HOA:
N/D
Valor do Imposto:
$11543.35
Preço por m²:
$375.21
Descrição Legal do Imposto:
LOTE 40 REGENCY MANOR ESTATES MB 31 PG 136 PER OU 3026 PG 1431 PER OU 6961 PG 0656 PER OU 6999 PG 4700 PER OU 7949 PG 2103 PER OU 8228 PG 2647
Características Exteriores
Tamanho do Lote:
10000
Características do Lote:
N/D
Beira-mar:
Não
Vagas de Estacionamento:
N/D
Estacionamento:
N/D
Telhado:
Telha
Piscina:
Sim
Características da Piscina:
Aquecido, no solo
Características Interiores
Quartos:
3
Banheiros:
3
Aquecimento:
Central, Elétrica
Resfriamento:
Central Aérea
Eletrodomésticos:
Cooktop, lava-louças, secadora, micro-ondas, geladeira, lavadora
Mobiliado:
Não
Andar:
Vinil
Níveis:
Um
Características Adicionais
Subtipo de Imóvel:
Residência Unifamiliar
Estilo:
N/D
Ano de Construção:
1975
Tipo de Construção:
Bloquear
Vagas na Garagem:
Sim
Vagas Cobertas:
N/D
Orientação da Fachada:
Oeste
Animais Permitidos:
Não
Condição Especial:
Nenhum
Características Adicionais:
Sistema de irrigação, cozinha externa, caixa de correio privada
Características Adicionais 2:
N/D
Mapa
  • Endereço
    21 TIPPERARY LN
Fale com um profissional
Por Que Nos Escolher?
  • Comunicação e Transparência
  • Negociação Qualificada
  • Rede Profissional Robusta
  • Suporte Pós-Venda
Propriedades em Destaque

Imóveis relacionados

avt
Daniel Dourado
$ 545,650
avt
Daniel Dourado
$ 290,000
avt
Daniel Dourado
$ 359,000
avt
Daniel Dourado
$ 409,900
avt
Daniel Dourado
$ 445,000
avt
Daniel Dourado
$ 365,000
avt
Daniel Dourado
$ 1,175,000
avt
Daniel Dourado
$ 825,000
avt
Daniel Dourado
$ 374,900
avt
Daniel Dourado
$ 399,999
avt
Daniel Dourado
$ 552,100