Active

$339,000

Características:
  • 4 Quartos
  • 2 Banheiros
  • 142 m²
Visão Geral
  • ID: MFRO6368859
  • Quartos: 4
  • Banheiros: 2
  • Tamanho: 142 m²
Detalhes do Imóvel
Observações
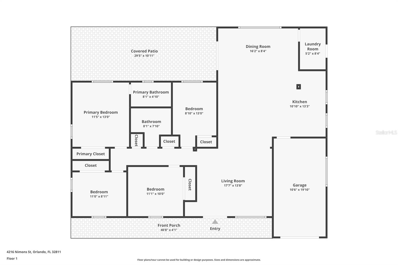
Uma ou mais fotos foram virtualmente encenadas. O caráter de meados do século encontra a sofisticação moderna nesta casa em estilo rancho lindamente atualizada, localizada na 4216 Nimons Street, em Orlando. A partir do momento em que você chega, você é recebido por impressionantes portas duplas de vidro em estilo francês, dando o tom para as atualizações elegantes encontradas em toda esta residência de 4 quartos e 2 banheiros SEM HOA! No interior, a casa oferece uma planta luminosa e de conceito aberto, projetada tanto para a vida cotidiana quanto para o entretenimento. A cozinha funciona como o coração da casa, com uma ilha de granito, eletrodomésticos de aço inoxidável totalmente novos, amplos armários e uma lavanderia dedicada para maior comodidade. A área de jantar flui perfeitamente para um pátio coberto pelo teto com piso cimentado, criando uma extensão convidativa da área de estar – perfeita para o café da manhã, reuniões de fim de semana ou noites relaxantes ao ar livre. O quintal totalmente cercado adiciona privacidade e flexibilidade para animais de estimação, brincadeiras ou futuras melhorias ao ar livre. Cada quarto está equipado com um ventilador de teto com baixo consumo de energia e controle remoto, enquanto a moderna iluminação embutida melhora a sensação limpa e contemporânea da casa. As principais atualizações incluem um telhado totalmente novo, novo ar-condicionado, novas janelas e um novo aquecedor elétrico de água, oferecendo tranquilidade nos próximos anos. E o melhor de tudo - SEM HOA. Idealmente situada a poucos minutos da Interstate 4, esta casa é perfeita para viajantes e oferece acesso rápido ao centro de Orlando, lojas, restaurantes, principais atrações e entretenimento. A propriedade também está convenientemente localizada perto de escolas locais, sendo uma excelente opção para famílias ou compradores que planejam o futuro. Elegante, pronta para morar e com localização central - este é o tipo de casa que realmente precisa ser vista pessoalmente para ser apreciada.
Considerações Financeiras
Preço:
$339,000
Taxa de HOA:
N/D
Valor do Imposto:
$3770.29
Preço por m²:
$221.71
Descrição Legal do Imposto:
PINECREST ESTATES 2/1 LOTE 8 PRETO 4
Características Exteriores
Tamanho do Lote:
7113
Características do Lote:
N/D
Beira-mar:
Não
Vagas de Estacionamento:
N/D
Estacionamento:
N/D
Telhado:
Telha
Piscina:
Não
Características da Piscina:
N/D
Características Interiores
Quartos:
4
Banheiros:
2
Aquecimento:
Central, Elétrica
Resfriamento:
Central Aérea
Eletrodomésticos:
Forno de convecção, máquina de lavar louça, aquecedor elétrico de água, exaustor, geladeira
Mobiliado:
Sim
Andar:
Laminado
Níveis:
Um
Características Adicionais
Subtipo de Imóvel:
Residência Unifamiliar
Estilo:
N/D
Ano de Construção:
1968
Tipo de Construção:
Bloco, revestimento de madeira
Vagas na Garagem:
Sim
Vagas Cobertas:
N/D
Orientação da Fachada:
Norte
Animais Permitidos:
Não
Condição Especial:
Nenhum
Características Adicionais:
Entrada Privada, Caixa de Correio Privada, Calçada, Portas de Correr
Características Adicionais 2:
N/D
Mapa
  • Endereço
    4216 NIMONS ST
Fale com um profissional
Por Que Nos Escolher?
  • Comunicação e Transparência
  • Negociação Qualificada
  • Rede Profissional Robusta
  • Suporte Pós-Venda
Propriedades em Destaque

Imóveis relacionados

avt
Daniel Dourado
$ 595,500
avt
Daniel Dourado
$ 1,390,000
avt
Daniel Dourado
$ 1,675,000
avt
Daniel Dourado
$ 1,200,000
avt
Daniel Dourado
$ 309,000
avt
Daniel Dourado
$ 1,100,000
avt
Daniel Dourado
$ 450,000
avt
Daniel Dourado
$ 393,000
avt
Daniel Dourado
$ 490,000