Active

$699,000

Características:
  • 4 Quartos
  • 4 Banheiros
  • 219 m²
Visão Geral
  • ID: MFRO6368553
  • Quartos: 4
  • Banheiros: 4
  • Tamanho: 219 m²
Detalhes do Imóvel
Observações
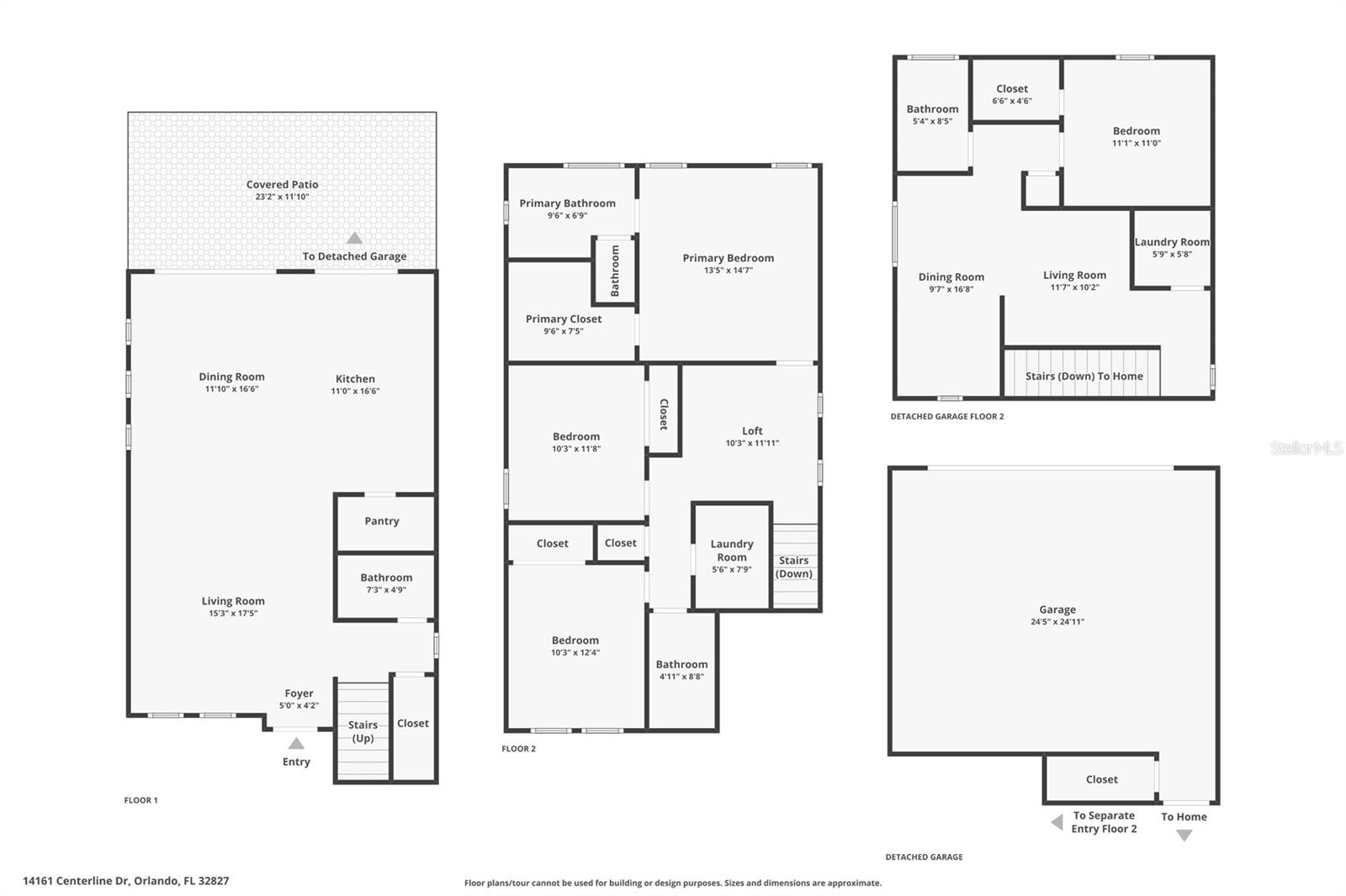
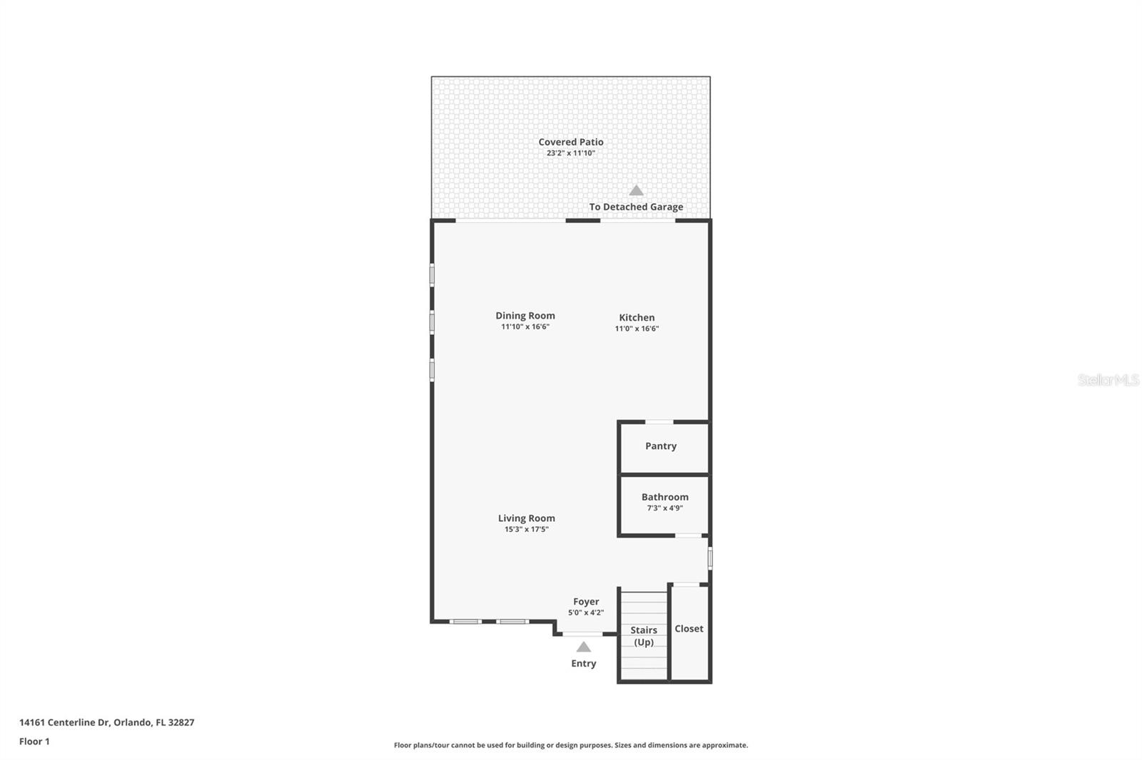
Planta baixa de Mason cuidadosamente atualizada com apartamento de garagem e vida tranquila em Lake Nona! Esta planta Mason lindamente projetada pela Craft Builders oferece flexibilidade excepcional, atualizações atenciosas e uma localização centrada no estilo de vida no coração do Laureate Park, em Lake Nona. Apresentando um apartamento com garagem privativa e um layout aberto e cheio de luz, esta casa é ideal para uma vida moderna, necessidades multigeracionais ou flexibilidade para trabalhar em casa. Projetada para uma vida interna e externa perfeita, a casa principal apresenta controles deslizantes expansivos atualizados que levam a uma varanda coberta e pavimentada - perfeita para entretenimento ou relaxamento. Portas francesas, janelas abundantes e um design de conceito aberto inundam a casa com luz natural por toda parte. Tanto a casa principal quanto o apartamento na garagem possuem eletrodomésticos de cozinha Bosch e sua própria lavadora e secadora, oferecendo maior conforto e verdadeira funcionalidade de vida dupla. O quintal totalmente cercado oferece um espaço privado para a família e animais de estimação, e uma passarela instalada conecta a casa principal ao apartamento-garagem. Saúde, conforto e eficiência foram cuidadosamente priorizados Luzes UV instaladas no sistema de ar condicionado da casa principal, um aquecedor de água quente híbrido, uma bomba de circulação de água quente para água quente quase instantânea e pré-cabeada para um carregador EV. A suíte principal oferece um retiro semelhante a um spa com chuveiros duplos e um amplo closet, enquanto a casa é pré-instalada para som surround na sala de estar e possui alto-falantes embutidos na cozinha, no loft e no pátio. Um sistema de segurança totalmente conectado com fiação de câmera externa proporciona tranquilidade. As vantagens HOA agregam valor excepcional, incluindo internet de alta velocidade e água recuperada para irrigação. Viver no Laureate Park também oferece acesso a uma linha incomparável de comodidades em estilo resort, incluindo uma academia de ginástica de última geração, um centro aquático com diversas piscinas, quadras de vôlei e basquete, playgrounds, parques e mais de 64 quilômetros de trilhas panorâmicas para caminhada, ciclismo e corrida. Desfrute de um estilo de vida verdadeiramente saudável e conectado com acesso a pé aos campos esportivos e ao parque comunitário, ao Lake Nona Adventure Park, ao VA Hospital e ao Laureate Park Elementary, além da proximidade com o Boxi Park, o USTA National Campus, o Lake Nona Town Center, Medical City, lojas e restaurantes. O acesso conveniente à SR-417, ao centro de Orlando e ao Aeroporto Internacional de Orlando, além das escolas de alto nível em Lake Nona, tornam este local tão prático quanto desejável. Pronta para morar e cheia de melhorias atenciosas, esta casa realmente verifica todas as caixas. Agende hoje mesmo seu tour privado.
Considerações Financeiras
Preço:
$699,000
Taxa de HOA:
193
Valor do Imposto:
$7626
Preço por m²:
$295.31
Descrição Legal do Imposto:
LAUREATE PARK FASE 4 98/122 LOTE 12
Características Exteriores
Tamanho do Lote:
4008
Características do Lote:
Calçada
Beira-mar:
Não
Vagas de Estacionamento:
N/D
Estacionamento:
Acesso ao beco
Telhado:
Telha
Piscina:
Não
Características da Piscina:
N/D
Características Interiores
Quartos:
4
Banheiros:
4
Aquecimento:
Central
Resfriamento:
Central Aérea
Eletrodomésticos:
Cooktop, lava-louças, secadora, micro-ondas, geladeira, lavadora
Mobiliado:
Sim
Andar:
Carpete, laminado, azulejo
Níveis:
Dois
Características Adicionais
Subtipo de Imóvel:
Residência Unifamiliar
Estilo:
N/D
Ano de Construção:
2020
Tipo de Construção:
Bloco, Estuque
Vagas na Garagem:
Sim
Vagas Cobertas:
N/D
Orientação da Fachada:
Noroeste
Animais Permitidos:
Sim
Condição Especial:
Nenhum
Características Adicionais:
Portas francesas, pátio privado, portas deslizantes
Características Adicionais 2:
Consulte HOA/Cidade para quaisquer restrições de aluguel
Mapa
  • Endereço
    14161 CENTERLINE DR
Fale com um profissional
Por Que Nos Escolher?
  • Comunicação e Transparência
  • Negociação Qualificada
  • Rede Profissional Robusta
  • Suporte Pós-Venda
Propriedades em Destaque

Imóveis relacionados

avt
Daniel Dourado
$ 349,000
avt
Daniel Dourado
$ 1,600,000
avt
Daniel Dourado
$ 595,000
avt
Daniel Dourado
$ 265,000
avt
Daniel Dourado
$ 575,000
avt
Daniel Dourado
$ 295,000
avt
Daniel Dourado
$ 595,000