Active

$800,000

Características:
  • 4 Quartos
  • 5 Banheiros
  • 193 m²
Visão Geral
  • ID: MFRO6363073
  • Quartos: 4
  • Banheiros: 5
  • Tamanho: 193 m²
Detalhes do Imóvel
Observações
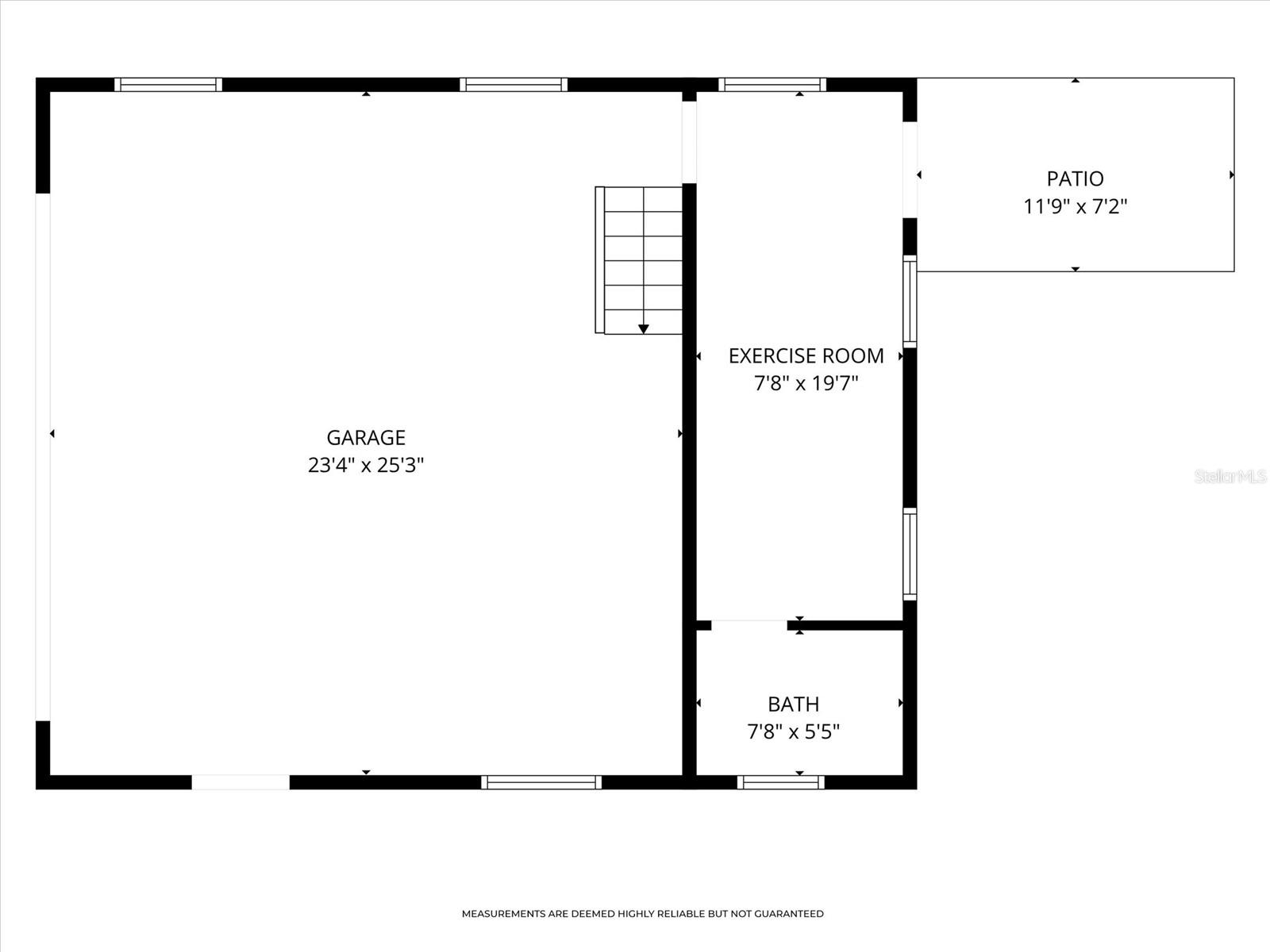
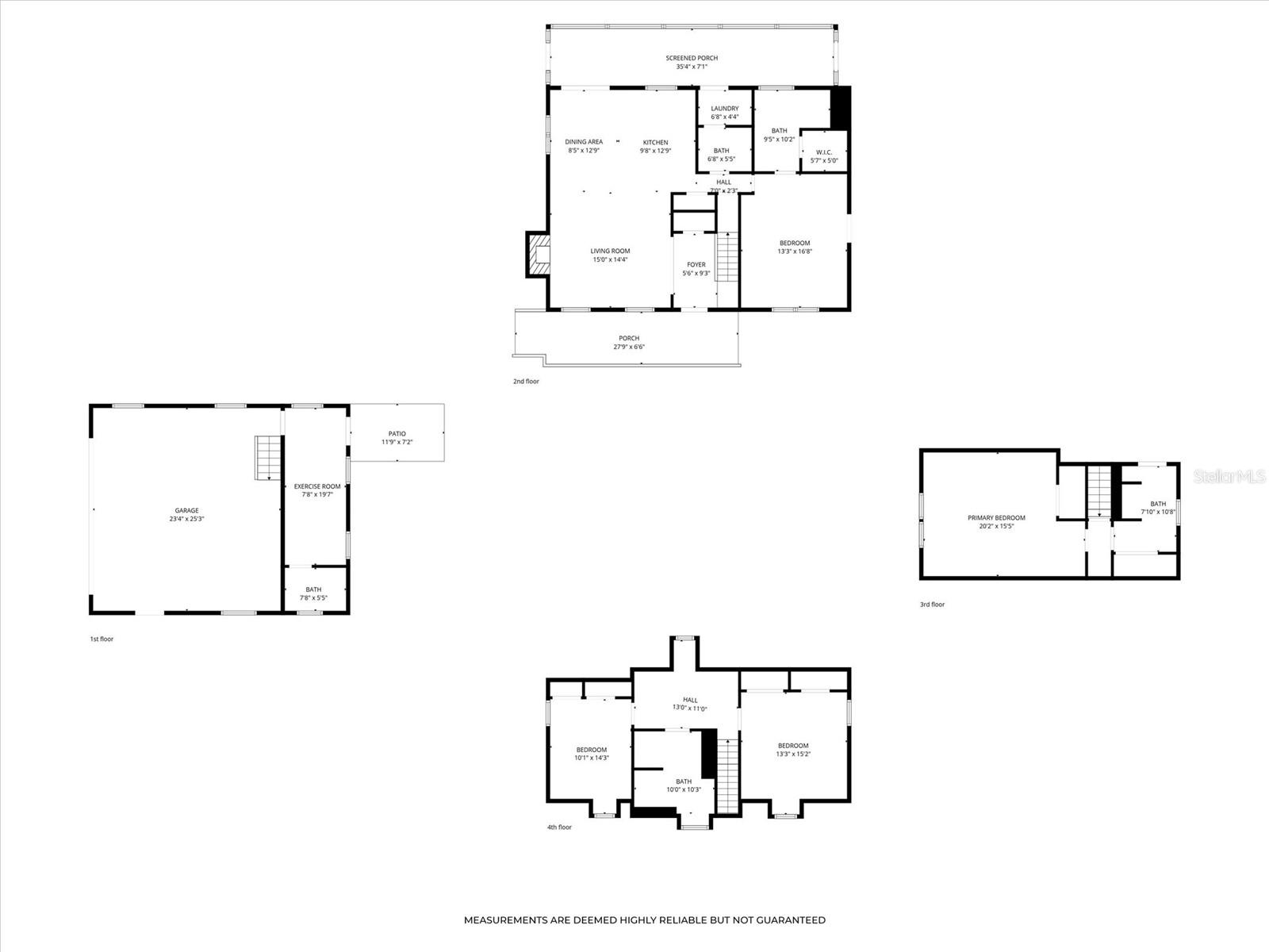
FINANCIAMENTO DO VENDEDOR DISPONÍVEL. É ISSO… A SUA PROPRIEDADE DE SONHOS ESPERA! Bem-vindo a esta casa com piscina lindamente conservada, situada em mais de 2 hectares de terreno tranquilo e pitoresco, perfeita para uma vida multigeracional no seu melhor. A partir do momento em que você entra na longa e extensa entrada de automóveis, você ficará cativado. O amplo terreno frontal é de tirar o fôlego, oferecendo infinitas possibilidades para jardins, atividades ao ar livre ou projetos futuros. As árvores maduras proporcionam a combinação perfeita de beleza e sombra, criando um espaço sereno para desfrutar mesmo nos dias mais quentes. Antes de entrar, você é recebido por uma charmosa varanda envolvente, ideal para tomar o café da manhã, ler à tarde ou simplesmente mergulhar na tranquilidade do ambiente. No interior, a sala possui uma lareira acolhedora e uma vista deslumbrante para o pátio frontal e quintal, proporcionando ao dia a dia uma sensação de férias. A cozinha tem um tamanho perfeito e uma área de jantar conveniente. A espaçosa suíte principal, localizada no primeiro andar e separada dos quartos de hóspedes, oferece privacidade e conforto, incluindo acesso direto ao pátio. Na verdade, o primeiro andar possui quatro pontos de acesso separados ao pátio, combinando perfeitamente a vida interna e externa. No andar de cima, um espaço versátil e flexível é um escritório, lounge ou área de leitura ideal, levando a dois quartos de hóspedes de tamanho generoso, completos com recantos charmosos. O banheiro de hóspedes é impressionantemente grande, você realmente precisa ver para acreditar. Mas estamos apenas começando. A garagem inclui um anexo perfeito para um ginásio doméstico, completo com lavabo. Acima da garagem há uma suíte para sogra totalmente equipada com banheiro completo, ideal para hóspedes ou familiares que desfrutam de seu próprio retiro privado. E agora para o grande final… Um pátio envolvente circunda a casa e leva a um espaçoso deck com piscina acima do solo. O quintal é uma aventura própria, expansiva, emocionante e cheia de possibilidades. Vários galpões proporcionam amplo armazenamento, sendo um grande o suficiente para ser transformado em oficina. Há até um estábulo para cavalos! As palavras não podem realmente capturar tudo o que esta propriedade incrível tem a oferecer. Agende sua exibição hoje e experimente você mesmo!
Considerações Financeiras
Preço:
$800,000
Taxa de HOA:
N/D
Valor do Imposto:
$5330
Preço por m²:
$384.99
Descrição Legal do Imposto:
SEAWARD PLANTATION ESTATES TERCEIRA ADIÇÃO T/135 LOTE 24
Características Exteriores
Tamanho do Lote:
95832
Características do Lote:
N/D
Beira-mar:
Não
Vagas de Estacionamento:
N/D
Estacionamento:
N/D
Telhado:
Telha
Piscina:
Sim
Características da Piscina:
Acima do solo, convés
Características Interiores
Quartos:
4
Banheiros:
5
Aquecimento:
Central
Resfriamento:
Central Aérea
Eletrodomésticos:
Máquina de lavar louça, micro-ondas, fogão, geladeira
Mobiliado:
Sim
Andar:
Tapete, Madeira
Níveis:
Dois
Características Adicionais
Subtipo de Imóvel:
Residência Unifamiliar
Estilo:
N/D
Ano de Construção:
2006
Tipo de Construção:
Concreto, revestimento de vinil
Vagas na Garagem:
Sim
Vagas Cobertas:
N/D
Orientação da Fachada:
Norte
Animais Permitidos:
Não
Condição Especial:
Nenhum
Características Adicionais:
Fogueira, armazenamento
Características Adicionais 2:
N/D
Mapa
  • Endereço
    16607 BEARLE RD
Fale com um profissional
Por Que Nos Escolher?
  • Comunicação e Transparência
  • Negociação Qualificada
  • Rede Profissional Robusta
  • Suporte Pós-Venda
Propriedades em Destaque

Imóveis relacionados

avt
Daniel Dourado
$ 450,000
avt
Daniel Dourado
$ 415,000
avt
Daniel Dourado
$ 495,000
avt
Daniel Dourado
$ 370,000
avt
Daniel Dourado
$ 315,000
avt
Daniel Dourado
$ 699,900
avt
Daniel Dourado
$ 1,100,000
avt
Daniel Dourado
$ 685,000
avt
Daniel Dourado
$ 315,000
avt
Daniel Dourado
$ 499,000