Active

$460,000

Características:
  • 4 Quartos
  • 2 Banheiros
  • 168 m²
Visão Geral
  • ID: MFRO6360164
  • Quartos: 4
  • Banheiros: 2
  • Tamanho: 168 m²
Detalhes do Imóvel
Observações
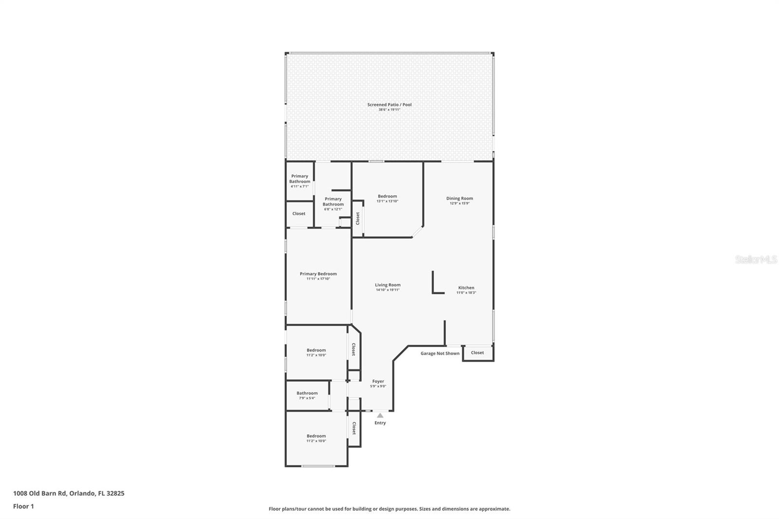
Descubra esta casa unifamiliar de 4 quartos em Orlando, que oferece conforto, flexibilidade e conveniência para famílias em crescimento ou compradores de primeira viagem. Construída em 1997, esta casa pronta para morar possui piso de cerâmica, clarabóias que preenchem o espaço com luz natural e um layout aberto ideal para a vida cotidiana. O espaçoso quarto principal inclui um amplo closet e um banheiro privativo anexo, criando um retiro relaxante no final do dia. O quarto quarto foi cuidadosamente convertido para incluir armários de cozinha, micro-ondas e pia - perfeito para hóspedes, familiares ou um espaço de trabalho privado. Desfrute da vida ao ar livre no quintal cercado com uma piscina convidativa, perfeita para reuniões de fim de semana e diversão no verão. Uma garagem para dois carros oferece amplo armazenamento e estacionamento, enquanto o baixo HOA mantém a propriedade acessível. Localizada a poucos minutos de Publix, Aldi, Starbucks e Waterford Lakes Town Center, esta casa oferece conveniência incomparável. O acesso rápido às rodovias 417 e 408 facilita muito o deslocamento. Você está a apenas 15 minutos do Aeroporto MCO, Lake Nona Medical City, Avalon Park, Downtown Orlando, UCF e Valencia College, e a apenas 30 minutos da Disney. Esta casa combina valor, espaço e localização em uma das áreas mais desejáveis ​​de Orlando. Não espere - agende sua exibição privada hoje mesmo, ligando ou enviando uma mensagem de texto para obter detalhes.
Considerações Financeiras
Preço:
$460,000
Taxa de HOA:
200
Valor do Imposto:
$4742
Preço por m²:
$253.44
Descrição Legal do Imposto:
UNIDADE DE ENROLAMENTO CREEK 3 31/82 LOTE 259
Características Exteriores
Tamanho do Lote:
5720
Características do Lote:
N/D
Beira-mar:
Não
Vagas de Estacionamento:
N/D
Estacionamento:
N/D
Telhado:
Telha
Piscina:
Sim
Características da Piscina:
No chão
Características Interiores
Quartos:
4
Banheiros:
2
Aquecimento:
Elétrico
Resfriamento:
Central Aérea
Eletrodomésticos:
Forno embutido, cooktop, lava-louças, micro-ondas, exaustor
Mobiliado:
Não
Andar:
Telha
Níveis:
Um
Características Adicionais
Subtipo de Imóvel:
Residência Unifamiliar
Estilo:
N/D
Ano de Construção:
1997
Tipo de Construção:
Bloco, concreto, estuque
Vagas na Garagem:
Sim
Vagas Cobertas:
N/D
Orientação da Fachada:
Leste
Animais Permitidos:
Sim
Condição Especial:
Nenhum
Características Adicionais:
Portas Francesas, Calçada
Características Adicionais 2:
Os compradores são responsáveis ​​por confirmar referenciando o HOA CCR, entrando em contato com a empresa gestora do HOA e/ou município.
Mapa
  • Endereço
    1008 OLD BARN RD
Fale com um profissional
Por Que Nos Escolher?
  • Comunicação e Transparência
  • Negociação Qualificada
  • Rede Profissional Robusta
  • Suporte Pós-Venda
Propriedades em Destaque

Imóveis relacionados

avt
Daniel Dourado
$ 350,000
avt
Daniel Dourado
$ 315,990
avt
Daniel Dourado
$ 2,195,000
avt
Daniel Dourado
$ 330,000
avt
Daniel Dourado
$ 650,000
avt
Daniel Dourado
$ 235,000
avt
Daniel Dourado
$ 235,000
avt
Daniel Dourado
$ 235,000
avt
Daniel Dourado
$ 260,000