Active

$525,000

Características:
  • 5 Quartos
  • 3 Banheiros
  • 258 m²
Visão Geral
  • ID: MFRO6344880
  • Quartos: 5
  • Banheiros: 3
  • Tamanho: 258 m²
Detalhes do Imóvel
Observações
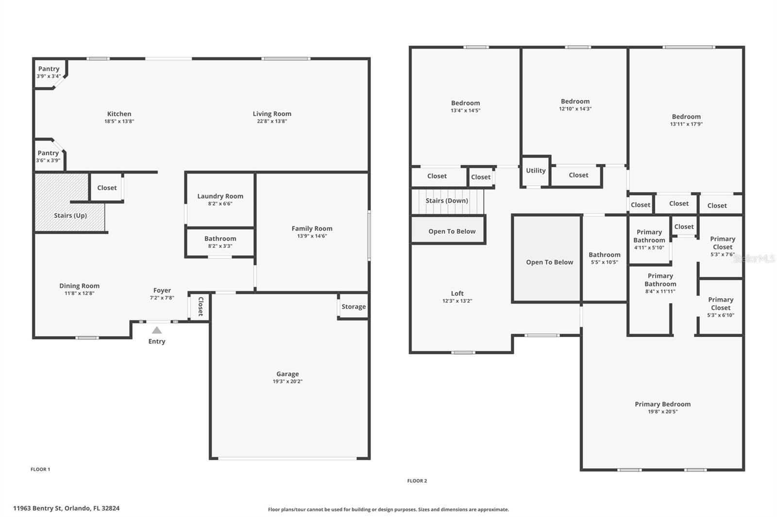
Entre em mais de 2.800 pés quadrados de espaço lindamente renovado nesta espaçosa casa de 5 quartos e 3,5 banheiros com tetos altos, luz natural abundante e várias áreas de estar e jantar projetadas para a vida familiar moderna. A cozinha atualizada é o coração da casa, apresentando armários shaker brancos, bancadas de granito, eletrodomésticos de aço inoxidável e uma grande ilha que se abre perfeitamente para a sala da família, perfeita para entretenimento ou conexão diária. O andar de baixo oferece piso de porcelanato, um lavabo conveniente e um espaço flexível que pode servir como quarto de hóspedes, home office ou área de estar adicional, oferecendo opções que se adaptam ao seu estilo de vida. No andar de cima, desfrute de um loft espaçoso, uma suíte principal ampla com closets duplos e uma banheira estilo spa renovada, além de três quartos adicionais e um banheiro completo. Renovada em 2025, esta casa também apresenta piso novo, pintura interna e externa fresca, iluminação e acessórios atualizados e um novo telhado em 2024 para maior tranquilidade. Um quintal privado sem vizinhos traseiros e uma vista serena de conservação oferecem o lugar perfeito para relaxar ou se divertir ao ar livre. Idealmente localizada perto do Lago Nona, do Aeroporto Internacional de Orlando, de lojas, restaurantes e das principais rodovias, esta casa combina atualizações modernas, espaço flexível e uma localização conveniente em uma das comunidades mais desejáveis ​​do sul de Orlando. Agende sua exibição privada hoje e veja por que Wetherbee Lakes é o lugar perfeito para chamar de lar.
Considerações Financeiras
Preço:
$525,000
Taxa de HOA:
492
Valor do Imposto:
$6402.42
Preço por m²:
$188.78
Descrição Legal do Imposto:
Wetherbee Lakes Sub Ph 2 49/57 Lote 143
Características Exteriores
Tamanho do Lote:
7287
Características do Lote:
N/D
Beira-mar:
Não
Vagas de Estacionamento:
N/D
Estacionamento:
N/D
Telhado:
Telha
Piscina:
Não
Características da Piscina:
N/D
Características Interiores
Quartos:
5
Banheiros:
3
Aquecimento:
Central
Resfriamento:
Central Aérea
Eletrodomésticos:
Cooktop, lava-louças, aquecedor elétrico de água, micro-ondas, geladeira
Mobiliado:
Sim
Andar:
Vinil de luxo, azulejo
Níveis:
Múltiplo/Dividido
Características Adicionais
Subtipo de Imóvel:
Residência Unifamiliar
Estilo:
N/D
Ano de Construção:
2003
Tipo de Construção:
Bloco, Estuque
Vagas na Garagem:
Sim
Vagas Cobertas:
N/D
Orientação da Fachada:
Leste
Animais Permitidos:
Sim
Condição Especial:
Nenhum
Características Adicionais:
Portas deslizantes
Características Adicionais 2:
VERIFIQUE COM HOA
Mapa
  • Endereço
    11963 BENTRY ST
Fale com um profissional
Por Que Nos Escolher?
  • Comunicação e Transparência
  • Negociação Qualificada
  • Rede Profissional Robusta
  • Suporte Pós-Venda
Propriedades em Destaque

Imóveis relacionados

avt
Daniel Dourado
$ 374,900
avt
Daniel Dourado
$ 530,000
avt
Daniel Dourado
$ 480,000
avt
Daniel Dourado
$ 1,295,000
avt
Daniel Dourado
$ 1,299,999
avt
Daniel Dourado
$ 644,900
avt
Daniel Dourado
$ 365,000
avt
Daniel Dourado
$ 599,900
avt
Daniel Dourado
$ 275,000
avt
Daniel Dourado
$ 360,000