Active

$374,999

Características:
  • 4 Quartos
  • 2 Banheiros
  • 128 m²
Visão Geral
  • ID: MFRO6332729
  • Quartos: 4
  • Banheiros: 2
  • Tamanho: 128 m²
Detalhes do Imóvel
Observações
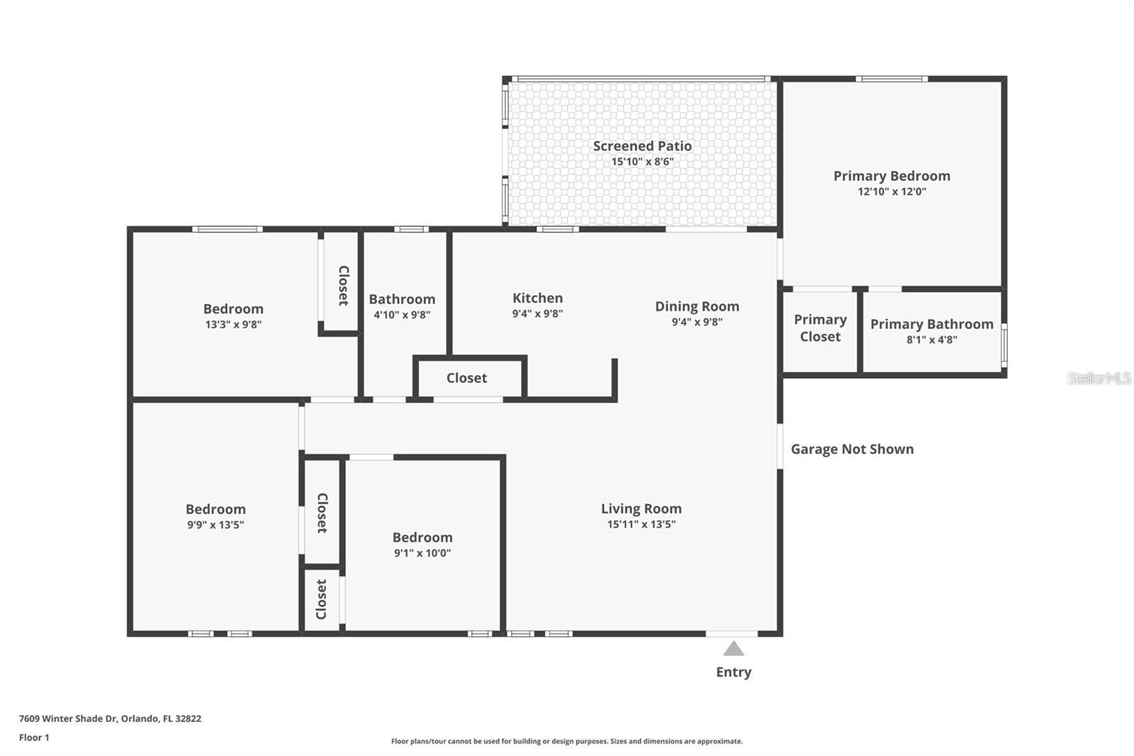
Uma ou mais fotos foram virtualmente encenadas. Assistência para custos de fechamento e entrada baixa disponível para aqueles que se qualificam nesta casa de 4 quartos/2 banheiros SEM HOA e mais de US$ 100.000 em atualizações recentes. Esta casa completamente remodelada está escondida em um bairro tranquilo e procurado no leste de Orlando - oferecendo a combinação perfeita de estilo moderno, conforto e conveniência. Mais de US$ 100.000 em atualizações de agosto de 2025 incluem: Novo telhado de telha arquitetônica, COZINHA E BANHEIROS totalmente novos com luxuosas bancadas de quartzo e armários de madeira de alta qualidade, PISO laminado cinza premium por toda parte e ladrilho de CERÂMICA estilo designer em áreas úmidas, PINTURA interior e exterior fresca, Nova CERCA de privacidade. A partir do momento em que chegar, você notará o belo novo paisagismo e o ambiente tranquilo das ruas. Entre em uma planta aberta e cheia de sol, onde os espaços de estar, jantar e cozinha fluem perfeitamente - ideal para entretenimento ou relaxamento. A cozinha de design é um empecilho, apresentando: Elegantes bancadas de quartzo e uma PENÍNSULA DE JANTAR DE QUARTZO de 6 lugares iluminada por modernas luzes pendentes, Armários de madeira de alta qualidade com amplo armazenamento, BACKSPLASH de alta qualidade para uma aparência refinada, Aparelhos de AÇO INOXIDÁVEL, CAPÔ DE GAMA DE VIDRO CURVADO fora da faixa. Ambos os banheiros exalam elegância de spa com bancadas de quartzo, armários de alta qualidade, box amplo e paredes e pisos de cerâmica em estilo mármore. Aproveite a vida na Flórida o ano todo na espaçosa varanda coberta, perfeita para relaxar à tarde ou para reuniões noturnas. O quintal extra grande e o jardim da frente tornam esta casa ideal para receber amigos e familiares. Localização central privilegiada, perto da Goldenrod Road. e Lake Underhill Rd. - coloca você a poucos passos de: Supermercados, restaurantes, lojas, bancos, hospitais, pet care, salões de beleza, escolas e muito mais. Dentro de 5 a 16 minutos, você pode alcançar: Hospital AdventHealth, Hospital de Saúde de Orlando, Principais universidades: UCF, Valencia College, Full Sail University, Barry University, Principais comunidades de luxo: Winter Park, Baldwin Park, Waterford Lakes, Downtown Orlando, Aeroporto Internacional de Orlando (MCO), Principais rodovias: 408, 528, 417, I-4. Parques de entretenimento como Universal Studios e Islands of Adventure ficam a apenas 20 minutos de distância. Esta casa realmente oferece tudo: acabamentos modernos, uma localização perfeita e sem taxas de HOA. Não espere – agende seu tour privado hoje mesmo!
Considerações Financeiras
Preço:
$374,999
Taxa de HOA:
N/D
Valor do Imposto:
$4802
Preço por m²:
$271.74
Descrição Legal do Imposto:
Autumn Pines 8/127 Lote 101
Características Exteriores
Tamanho do Lote:
7556
Características do Lote:
N/D
Beira-mar:
Não
Vagas de Estacionamento:
N/D
Estacionamento:
N/D
Telhado:
Telha
Piscina:
Não
Características da Piscina:
N/D
Características Interiores
Quartos:
4
Banheiros:
2
Aquecimento:
Central
Resfriamento:
Central Aérea
Eletrodomésticos:
Cooktop, Máquina de Lavar Louça, Descarte, Microondas, Fogão, Geladeira, Compactador de Lixo
Mobiliado:
Não
Andar:
Laminado, Azulejo
Níveis:
Um
Características Adicionais
Subtipo de Imóvel:
Residência Unifamiliar
Estilo:
N/D
Ano de Construção:
1980
Tipo de Construção:
Bloquear
Vagas na Garagem:
Sim
Vagas Cobertas:
N/D
Orientação da Fachada:
Norte
Animais Permitidos:
Não
Condição Especial:
Nenhum
Características Adicionais:
Iluminação, caixa de correio privada
Características Adicionais 2:
N/D
Mapa
  • Endereço
    7609 WINTER SHADE DR
Fale com um profissional
Por Que Nos Escolher?
  • Comunicação e Transparência
  • Negociação Qualificada
  • Rede Profissional Robusta
  • Suporte Pós-Venda
Propriedades em Destaque

Imóveis relacionados

avt
Daniel Dourado
$ 275,000
avt
Daniel Dourado
$ 414,900
avt
Daniel Dourado
$ 650,000
avt
Daniel Dourado
$ 365,000
avt
Daniel Dourado
$ 446,790
avt
Daniel Dourado
$ 389,900
avt
Daniel Dourado
$ 374,900
avt
Daniel Dourado
$ 549,000
avt
Daniel Dourado
$ 679,240
avt
Daniel Dourado
$ 999,000
avt
Daniel Dourado
$ 389,900