Active

$479,000

Características:
  • 3 Quartos
  • 3 Banheiros
  • 182 m²
Visão Geral
  • ID: MFRO6264489
  • Quartos: 3
  • Banheiros: 3
  • Tamanho: 182 m²
Detalhes do Imóvel
Observações
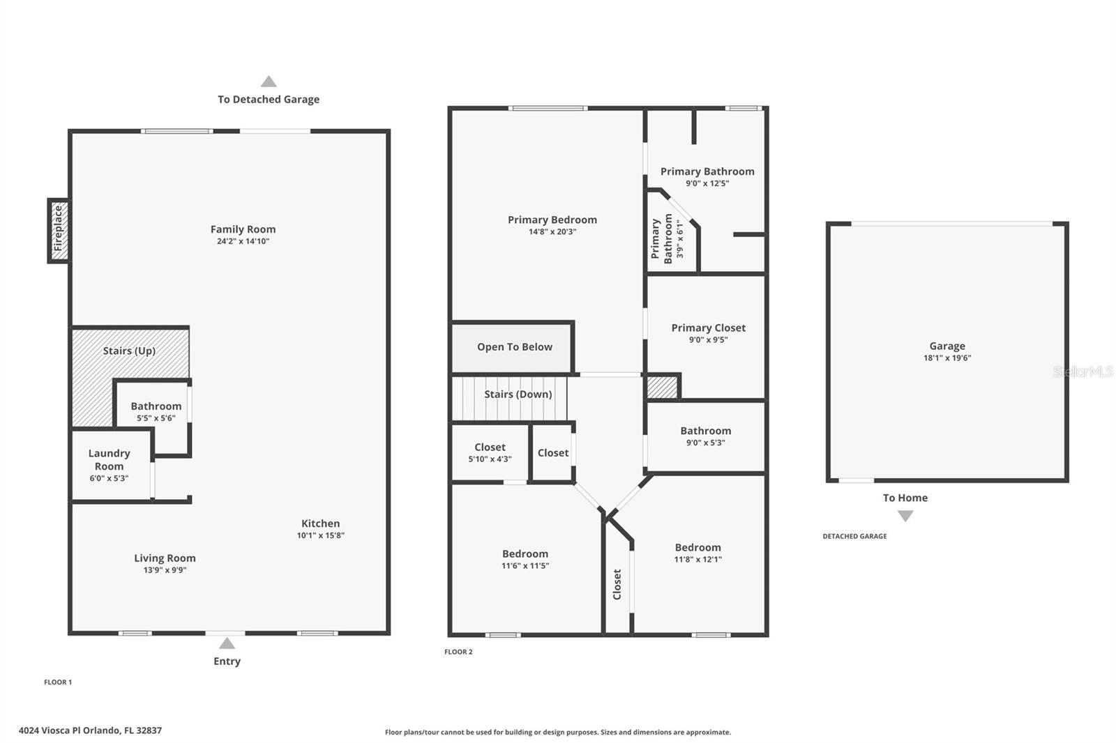
Esta deslumbrante moradia de 3 quartos e 2,5 banheiros oferece 1.960 pés quadrados de área de estar lindamente projetada e está localizada na área muito procurada de Hunters Creek. Ao se aproximar da casa, você é recebido por uma charmosa varanda coberta com vista para um paisagismo bem cuidado. Garantia estendida para eletrodomésticos. Ao entrar, você notará imediatamente a cozinha de última geração, com bancadas de granito, armários de alta qualidade e amplo balcão – perfeito para cozinhar e se divertir. A cozinha se abre perfeitamente para uma espaçosa sala e área de jantar, todas adornadas com elegantes pisos de madeira. No andar de cima, você encontrará uma suíte master de tamanho generoso com um luxuoso banheiro privativo. O banheiro principal oferece pias duplas, uma relaxante banheira de jardim e um chuveiro separado. Os dois quartos adicionais também são espaçosos, cada um com grandes armários, proporcionando bastante arrumação. A casa possui detalhes arquitetônicos únicos, adicionando personalidade e charme a todos os cômodos. A grande sala leva a um pátio privado de tijolos, ideal para reuniões ao ar livre e entretenimento. Esta área também dá acesso à garagem para dois carros com estacionamento traseiro. Convenientemente localizada perto de centros comerciais, parques e principais rodovias, esta moradia combina conforto moderno com uma localização imbatível. Não perca a oportunidade de fazer deste lindo imóvel a sua próxima casa!
Considerações Financeiras
Preço:
$479,000
Taxa de HOA:
242
Valor do Imposto:
$3214.24
Preço por m²:
$244.39
Descrição Legal do Imposto:
JARDINS CHARTRES 60/129 LOTE 95
Características Exteriores
Tamanho do Lote:
3264
Características do Lote:
Limites da cidade, calçada, pavimentada
Beira-mar:
Não
Vagas de Estacionamento:
N/D
Estacionamento:
N/D
Telhado:
Telha
Piscina:
Não
Características da Piscina:
No solo, varredura de piscina
Características Interiores
Quartos:
3
Banheiros:
3
Aquecimento:
Central
Resfriamento:
Central Aérea
Eletrodomésticos:
Forno de convecção, micro-ondas, geladeira
Mobiliado:
Não
Andar:
Carpete, Azulejo Cerâmico, Madeira
Níveis:
Dois
Características Adicionais
Subtipo de Imóvel:
Moradia
Estilo:
N/D
Ano de Construção:
2006
Tipo de Construção:
Bloquear
Vagas na Garagem:
Sim
Vagas Cobertas:
N/D
Orientação da Fachada:
Nordeste
Animais Permitidos:
Sim
Condição Especial:
Nenhum
Características Adicionais:
Sistema de irrigação
Características Adicionais 2:
O comprador/agente comprador é responsável por confirmar todas as informações
Mapa
  • Endereço
    4024 VIOSCA PL
Fale com um profissional
Por Que Nos Escolher?
  • Comunicação e Transparência
  • Negociação Qualificada
  • Rede Profissional Robusta
  • Suporte Pós-Venda
Propriedades em Destaque

Imóveis relacionados

img
  • Featured
  • Active
Townhouse

4750 NATHAN HALE BLVD

  • 3
  • 3
  • 174 m²
avt
Daniel Dourado
$ 317,000
avt
Daniel Dourado
$ 384,000
avt
Daniel Dourado
$ 410,000
avt
Daniel Dourado
$ 314,900
avt
Daniel Dourado
$ 278,000
avt
Daniel Dourado
$ 245,000
img
  • Featured
  • Active
Townhouse

11560 FOUNTAINHEAD DR

  • 3
  • 3
  • 156 m²
avt
Daniel Dourado
$ 450,000
img
  • Featured
  • Active
Townhouse

9936 INDIAN KEY TRL #22

  • 3
  • 4
  • 201 m²
avt
Daniel Dourado
$ 440,000
avt
Daniel Dourado
$ 475,000
avt
Daniel Dourado
$ 269,000
avt
Daniel Dourado
$ 540,000
img
  • Featured
  • Active
Townhouse

3537 BRIGHTON PARK CIR

  • 4
  • 3
  • 162 m²
avt
Daniel Dourado
$ 380,000