Active

$1,375,000

Características:
  • 5 Quartos
  • 5 Banheiros
  • 292 m²
Visão Geral
  • ID: MFRO6238092
  • Quartos: 5
  • Banheiros: 5
  • Tamanho: 292 m²
Detalhes do Imóvel
Observações
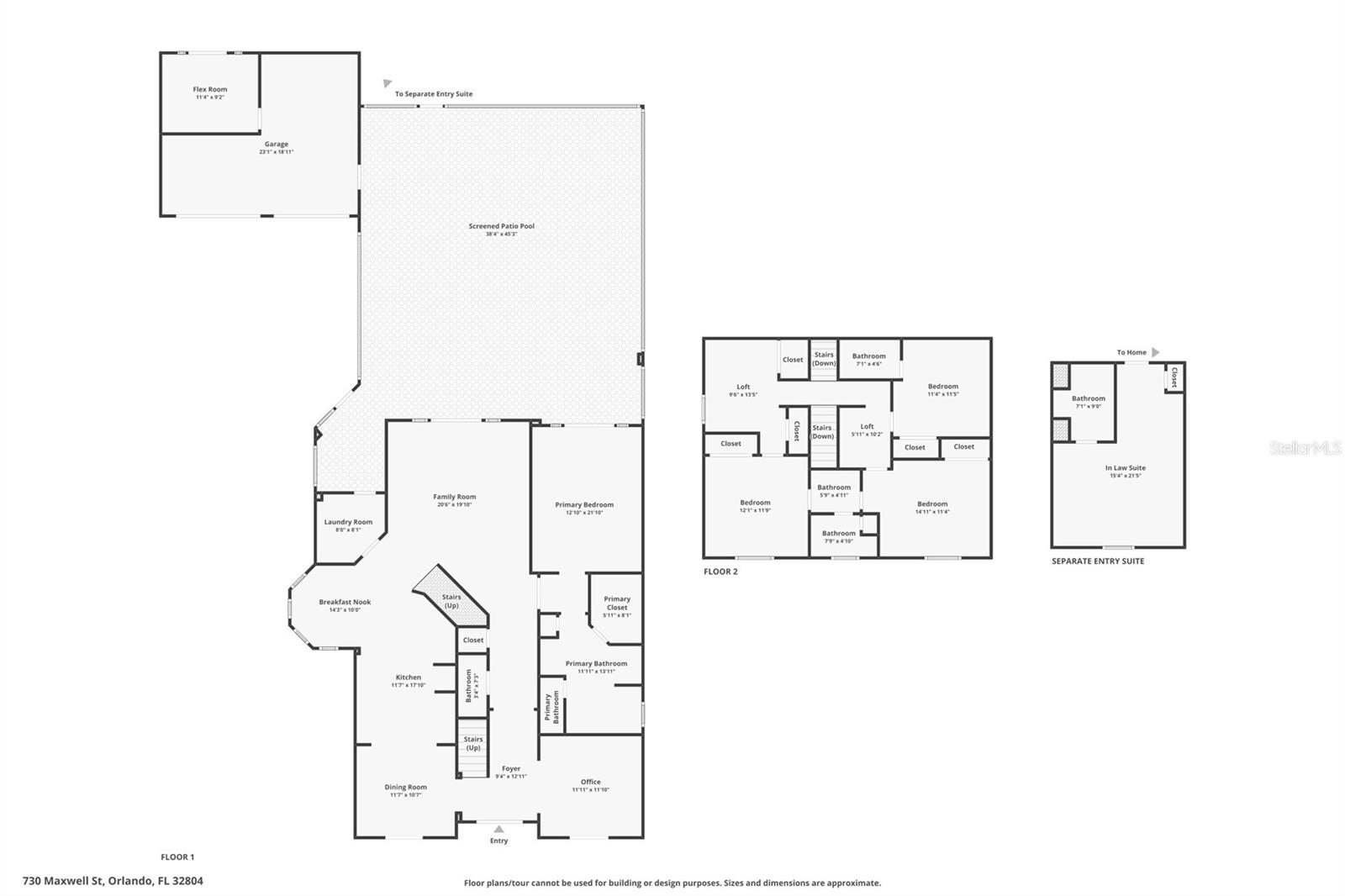
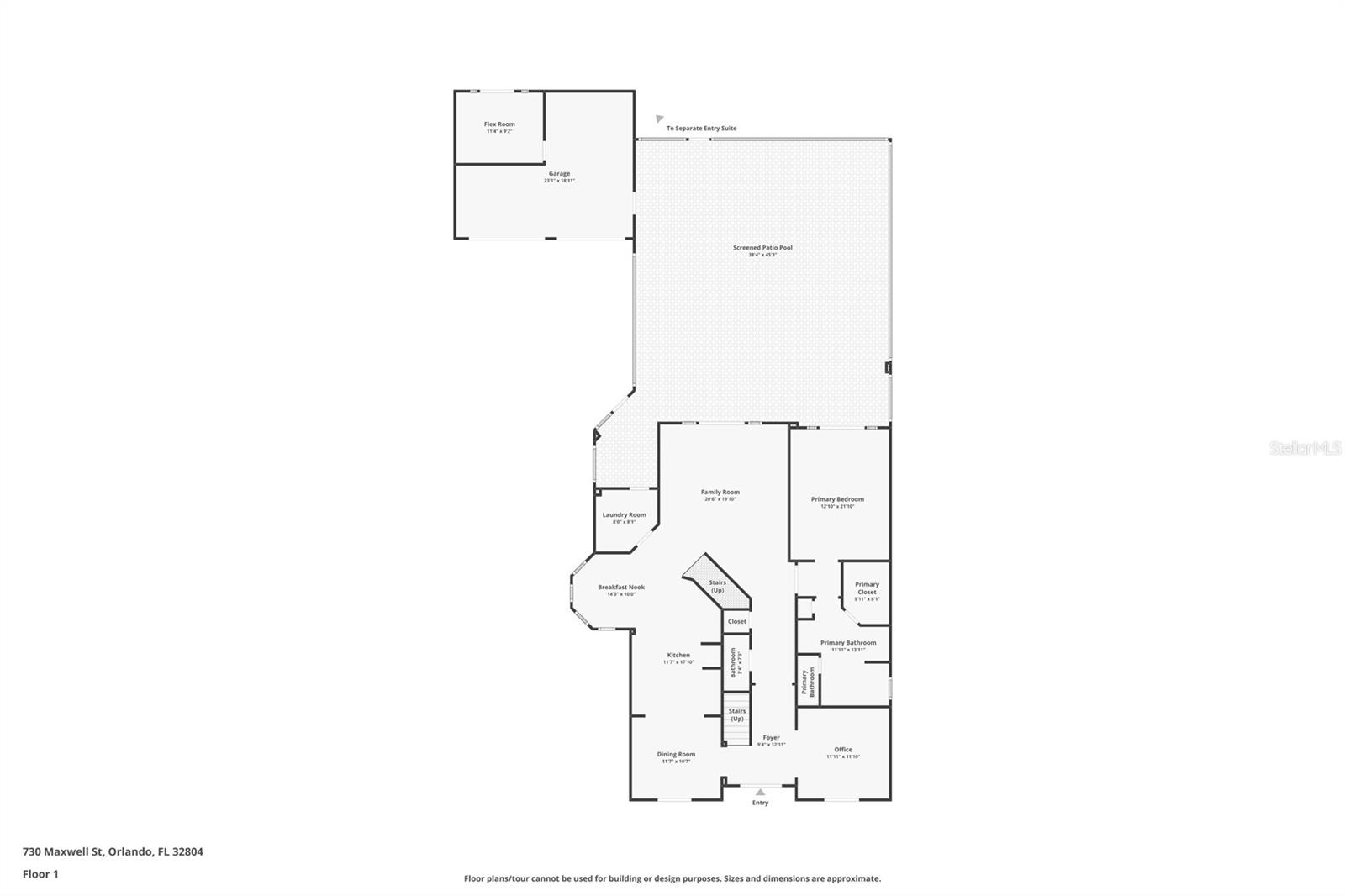
Descubra a combinação perfeita de elegância, funcionalidade e qualidade em 730 Maxwell St. 32804. Esta propriedade deslumbrante oferece uma área espaçosa com 4 quartos e 3,5 banheiros na casa principal, além de um estúdio com banheiro completo e cozinha compacta. Os tetos altos criam uma atmosfera aberta e arejada, com lindos armários embutidos e portas de 8’6” por toda parte! Você pode ter confiança na construção de alta qualidade da casa, pois ela foi construída com um bloco externo. Ainda mais impressionante é que o segundo andar também foi feito de blocos, por isso resistirá ao teste do tempo e dos elementos. Outra prova da qualidade desta casa majestosa é a linda e espessa madeira brasileira que fica no primeiro andar. A cozinha recém-renovada apresenta um fogão a gás Z-Line de 48" com fornos duplos como peça central, eletrodomésticos de aço inoxidável e muito armazenamento elegante e bancadas de pedra sólida para preparar e servir. A sala de estar tem tetos de 14' que permitem vistas amplas para um incrível deck de piscina protegido, proporcionando uma experiência de vida interna e externa perfeita. Você também encontrará um novo centro de entretenimento construído do chão ao teto que é ao mesmo tempo espetacular e funcional. O quarto principal é um verdadeiro retiro, com tetos de 14 pés de altura, um banheiro principal deslumbrante, um closet e um grande guarda-roupa embutido para mais armazenamento. No andar de cima, você encontrará 3 quartos adicionais, 2 banheiros completos, um recanto de leitura e um loft central que é perfeito para um salão de entretenimento ou área de lazer no andar de cima. Saia para desfrutar do seu oásis privado. A área da piscina protegida possui uma área de estar coberta e um espaço de cozinha ao ar livre, tornando-a ideal para entretenimento ou relaxamento. A piscina é completa com spa e acabamento em seixo técnico. A garagem tem oficina completa que lhe dá espaço para se espalhar e trabalhar em todo o tipo de projetos. Perto da oficina há um "Jardim Italiano" que é um pátio privado para relaxamento tranquilo ou pequenas reuniões íntimas. Acima da garagem há um apartamento estúdio bem equipado com entrada privativa, cozinha compacta e banheiro completo que oferece infinitas possibilidades - seja para hóspedes de fora da cidade, espaço de escritório adicional ou até mesmo como fonte de renda extra. Tudo isso vem com uma localização imbatível. Você estará próximo de belos lagos, do centro de Orlando e da Main Street de College Park, conhecida por suas lojas pitorescas, restaurantes e serviços locais. Experimente o melhor de Orlando morando nesta propriedade versátil e luxuosa que atende a todas as suas necessidades e desejos!
Considerações Financeiras
Preço:
$1,375,000
Taxa de HOA:
N/D
Valor do Imposto:
$10093.29
Preço por m²:
$437.34
Descrição Legal do Imposto:
LAKE ADAIR GROVE G/58 W 13 PÉS DO LOTE 11TODO LOTE 12 E E 13 PÉS DO LOTE 13 (MENOS N 15 PÉS PARA R/W)
Características Exteriores
Tamanho do Lote:
9667
Características do Lote:
N/D
Beira-mar:
Não
Vagas de Estacionamento:
N/D
Estacionamento:
N/D
Telhado:
Telha
Piscina:
Sim
Características da Piscina:
No solo, gabinete de tela
Características Interiores
Quartos:
5
Banheiros:
5
Aquecimento:
Central
Resfriamento:
Central Aérea
Eletrodomésticos:
Forno embutido, máquina de lavar louça, secadora, micro-ondas, fogão, exaustor, geladeira, máquina de lavar
Mobiliado:
Não
Andar:
Carpete, Mármore, Azulejo, Madeira
Níveis:
Dois
Características Adicionais
Subtipo de Imóvel:
Residência Unifamiliar
Estilo:
N/D
Ano de Construção:
2001
Tipo de Construção:
Bloquear
Vagas na Garagem:
Sim
Vagas Cobertas:
N/D
Orientação da Fachada:
Norte
Animais Permitidos:
Não
Condição Especial:
Nenhum
Características Adicionais:
Outro
Características Adicionais 2:
N/D
Mapa
  • Endereço
    730 MAXWELL ST
Fale com um profissional
Por Que Nos Escolher?
  • Comunicação e Transparência
  • Negociação Qualificada
  • Rede Profissional Robusta
  • Suporte Pós-Venda
Propriedades em Destaque

Imóveis relacionados

avt
Daniel Dourado
$ 374,900
avt
Daniel Dourado
$ 310,000
avt
Daniel Dourado
$ 544,000
avt
Daniel Dourado
$ 539,000
avt
Daniel Dourado
$ 595,000
avt
Daniel Dourado
$ 830,000
avt
Daniel Dourado
$ 335,000
avt
Daniel Dourado
$ 344,900
avt
Daniel Dourado
$ 324,490
avt
Daniel Dourado
$ 298,000