Active

$499,999

Características:
  • 3 Quartos
  • 2 Banheiros
  • 176 m²
Visão Geral
  • ID: MFRO6234239
  • Quartos: 3
  • Banheiros: 2
  • Tamanho: 176 m²
Detalhes do Imóvel
Observações
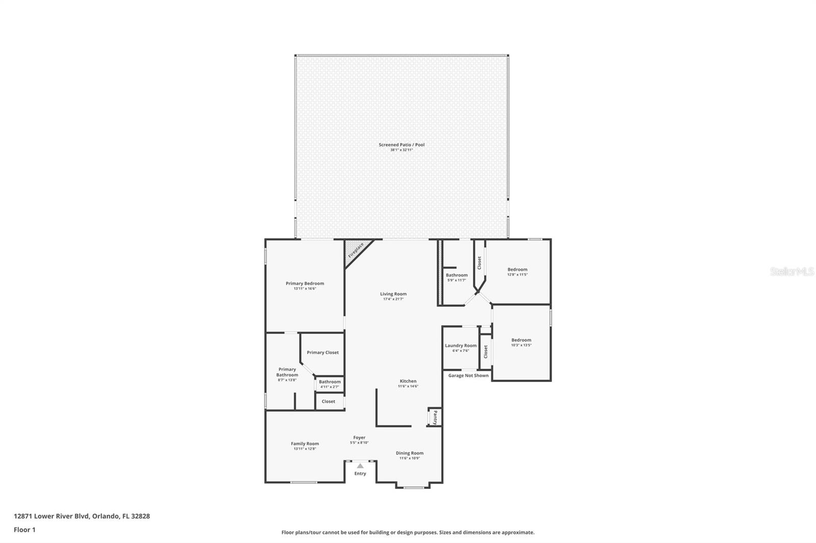
Esta deslumbrante casa com piscina em Waterford Lakes incorpora verdadeiramente a mistura perfeita de conforto e luxo. Com 1.895 pés quadrados, esta planta cuidadosamente projetada inclui uma sala flexível versátil, permitindo que você personalize o espaço para acomodar suas necessidades, seja um escritório, sala de jogos ou espaço para hóspedes. Ao entrar, você é recebido por uma área de jantar formal que leva ao coração convidativo da casa: uma ampla sala familiar perfeitamente conectada a uma cozinha moderna. Aqui, você encontrará gabinetes elegantes e atualizados com funcionalidades de fechamento suave, iluminação sob o gabinete e bancadas de granito elegantes que melhoram a estética da casa. Os altos tetos abobadados contribuem para a sensação de espaço, tornando-o um local perfeito para entretenimento e relaxamento. A desejável planta dividida oferece privacidade para a luxuosa suíte master, que possui banheiro privativo e acesso direto à área da piscina através de portas de vidro deslizantes. No lado oposto, dois quartos de hóspedes e um banheiro completo com piscina criam um ambiente perfeito para familiares ou visitantes, complementados pela comodidade de uma lavanderia interna. A área externa é um oásis privado, com uma varanda protegida com vistas tranquilas para o mar, ideal para desfrutar de manhãs tranquilas ou reuniões noturnas. Com ATUALIZAÇÕES RECENTES que incluem um RE-TUBO DE CASA COMPLETO em 2019, NOVO AC e AQUECEDOR DE ÁGUA em 2018, uma CERCA DE VINIL em 2017 e uma PORTA DE GARAGEM RESISTENTE A FURACÕES EM 2020, esta casa não é apenas bonita, mas também prática e pronta para o futuro. Além disso, um NOVO TELHADO E CLARABÓIAS serão instalados, aumentando ainda mais seu valor. Os residentes da comunidade de Waterford Lakes podem aproveitar uma ampla variedade de comodidades, incluindo piscina comunitária, playground, trilhas para caminhada e diversas instalações esportivas, como quadras de tênis e basquete. Com tantas opções para atividades ao ar livre, além da conveniência de vias expressas próximas e da proximidade dos principais empregadores e atrações, esta casa não é apenas um lugar fantástico para se viver; é uma comunidade vibrante da qual você adorará fazer parte.
Considerações Financeiras
Preço:
$499,999
Taxa de HOA:
195
Valor do Imposto:
$5208.08
Preço por m²:
$263.85
Descrição Legal do Imposto:
HUCKLEBERRY FIELDS TRATOS N-9 E N-10 UNIDADE 2 26/98 LOTE 95
Características Exteriores
Tamanho do Lote:
8168
Características do Lote:
Paisagístico, Perto de Campo de Golfe, Calçada
Beira-mar:
Não
Vagas de Estacionamento:
N/D
Estacionamento:
N/D
Telhado:
Telha
Piscina:
Sim
Características da Piscina:
Gunite, no solo, gabinete de tela
Características Interiores
Quartos:
3
Banheiros:
2
Aquecimento:
Elétrico
Resfriamento:
Central Aérea
Eletrodomésticos:
Máquina de lavar louça, descarte, secadora, aquecedor elétrico de água, fogão, geladeira, lavadora
Mobiliado:
Não
Andar:
Carpete, Azulejo Cerâmico, Laminado
Níveis:
Um
Características Adicionais
Subtipo de Imóvel:
Residência Unifamiliar
Estilo:
N/D
Ano de Construção:
1992
Tipo de Construção:
Bloco, Estuque
Vagas na Garagem:
Sim
Vagas Cobertas:
N/D
Orientação da Fachada:
Leste
Animais Permitidos:
Sim
Condição Especial:
Nenhum
Características Adicionais:
Sistema de irrigação, calhas de chuva, portas de correr
Características Adicionais 2:
Verifique com o HOA as restrições de aluguel.
Mapa
  • Endereço
    12871 LOWER RIVER BLVD
Fale com um profissional
Por Que Nos Escolher?
  • Comunicação e Transparência
  • Negociação Qualificada
  • Rede Profissional Robusta
  • Suporte Pós-Venda
Propriedades em Destaque

Imóveis relacionados

avt
Daniel Dourado
$ 400,000
avt
Daniel Dourado
$ 400,000
avt
Daniel Dourado
$ 349,800
avt
Daniel Dourado
$ 895,000
avt
Daniel Dourado
$ 1,275,000
avt
Daniel Dourado
$ 255,000
avt
Daniel Dourado
$ 339,000
avt
Daniel Dourado
$ 355,000
avt
Daniel Dourado
$ 424,900
avt
Daniel Dourado
$ 699,000
avt
Daniel Dourado
$ 389,999