Active

$498,989

Características:
  • 5 Quartos
  • 3 Banheiros
  • 280 m²
Visão Geral
  • ID: MFRO6232124
  • Quartos: 5
  • Banheiros: 3
  • Tamanho: 280 m²
Detalhes do Imóvel
Observações
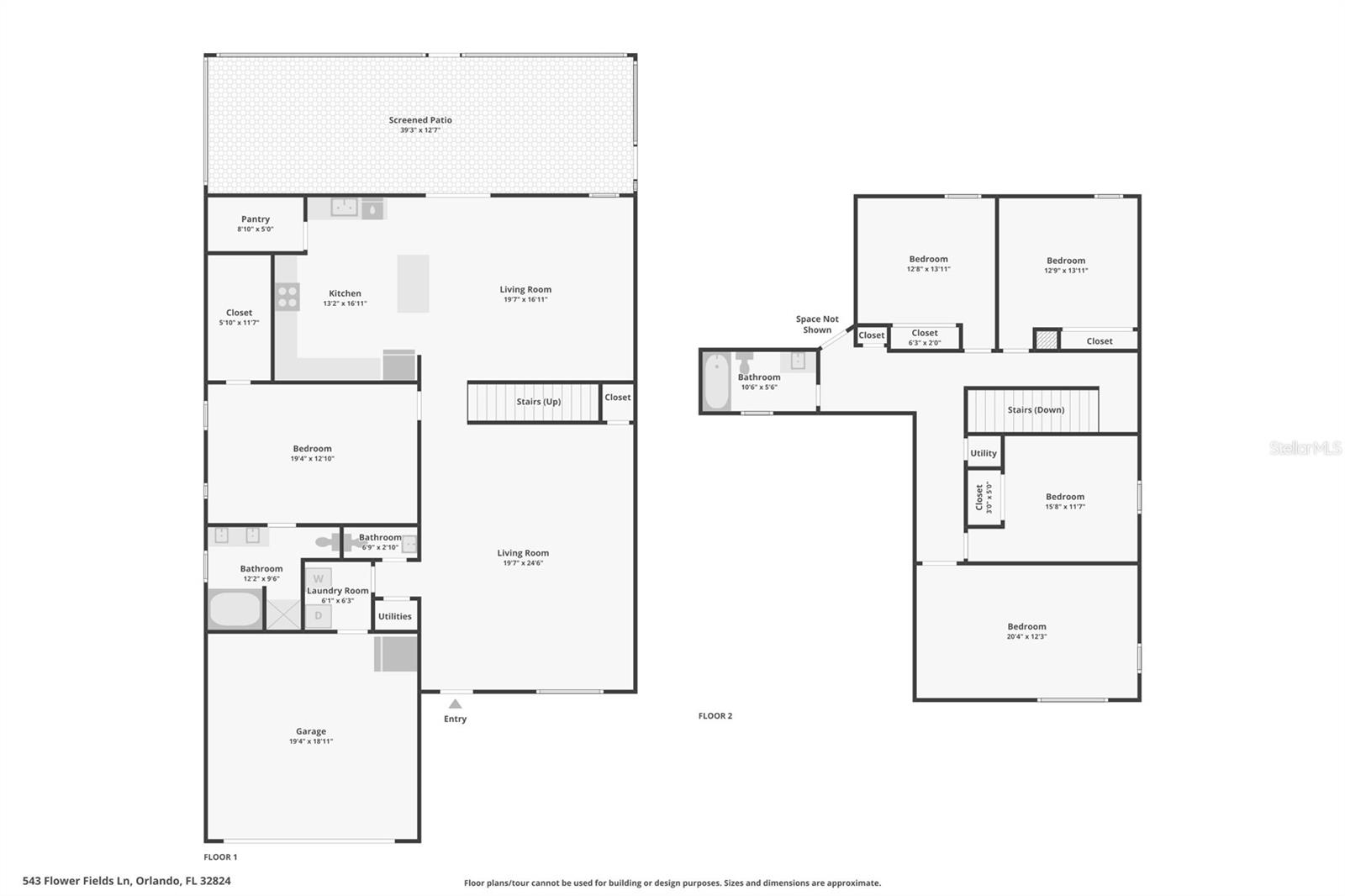
Bem-vindo ao 543 Flower Fields Ln, uma deslumbrante casa de 5 quartos e 2,5 banheiros com vista para o lago no quintal - localizada na muito procurada comunidade de Rosewood. Esta propriedade lindamente projetada oferece a combinação perfeita de conforto e estilo, tornando-a um refúgio ideal para quem procura um estilo de vida sereno com acesso conveniente a tudo o que Orlando tem a oferecer. Entre para descobrir uma planta espaçosa e aberta, com uma cozinha gourmet equipada com eletrodomésticos de aço inoxidável, bancadas de granito e uma grande ilha central - perfeita para jantares casuais ou receber convidados. A sala de jantar formal e a sala de estar separadas ficam na entrada da frente. A suíte master está localizada no primeiro andar. A ampla suíte master oferece um oásis privativo com closet e banheiro privativo completo com pia dupla, box amplo e banheira de imersão. No segundo andar você encontrará quatro quartos adicionais bem equipados que oferecem muito espaço para a família e convidados, cada um com seu próprio armário e ventilador de teto. Saia para o paraíso do seu quintal privado, onde você pode relaxar no longo pátio coberto. Esta propriedade está idealmente situada com fácil acesso à 417 e à Florida's Turnpike, tornando-a uma curta viagem às principais atrações, The Loop Mall, restaurantes e muito mais. Você estará a apenas 15 minutos do Aeroporto Internacional de Orlando, das melhores escolas, da Medical City e dos parques temáticos mundialmente famosos. Além disso, a comunidade oferece taxas HOA baixas. Não perca a chance de experimentar o que há de melhor à beira do lago em uma das comunidades mais desejáveis ​​de Orlando.—MARQUE SEU HORÁRIO HOJE!
Considerações Financeiras
Preço:
$498,989
Taxa de HOA:
145
Valor do Imposto:
$2844
Preço por m²:
$165.45
Descrição Legal do Imposto:
UNIDADE PAROSA 1 66/5 LOTE 103
Características Exteriores
Tamanho do Lote:
5499
Características do Lote:
Calçada
Beira-mar:
Não
Vagas de Estacionamento:
N/D
Estacionamento:
N/D
Telhado:
Telha
Piscina:
Não
Características da Piscina:
N/D
Características Interiores
Quartos:
5
Banheiros:
3
Aquecimento:
Central
Resfriamento:
Central Aérea
Eletrodomésticos:
Máquina de lavar louça, descarte, aquecedor elétrico de água, micro-ondas, fogão, geladeira
Mobiliado:
Sim
Andar:
Tapete, Azulejo
Níveis:
Dois
Características Adicionais
Subtipo de Imóvel:
Residência Unifamiliar
Estilo:
N/D
Ano de Construção:
2006
Tipo de Construção:
Bloco, estuque, moldura de madeira
Vagas na Garagem:
Sim
Vagas Cobertas:
N/D
Orientação da Fachada:
Sudoeste
Animais Permitidos:
Sim
Condição Especial:
Nenhum
Características Adicionais:
Calçada
Características Adicionais 2:
Verifique todas as restrições de locação com o HOA.
Mapa
  • Endereço
    543 FLOWER FIELDS LN
Fale com um profissional
Por Que Nos Escolher?
  • Comunicação e Transparência
  • Negociação Qualificada
  • Rede Profissional Robusta
  • Suporte Pós-Venda
Propriedades em Destaque

Imóveis relacionados

avt
Daniel Dourado
$ 510,000
avt
Daniel Dourado
$ 309,900
avt
Daniel Dourado
$ 939,000
avt
Daniel Dourado
$ 598,000
avt
Daniel Dourado
$ 468,990
avt
Daniel Dourado
$ 1,999,900
avt
Daniel Dourado
$ 427,000
avt
Daniel Dourado
$ 310,000
avt
Daniel Dourado
$ 699,000
avt
Daniel Dourado
$ 369,999