Active

$449,900

Características:
  • 3 Quartos
  • 3 Banheiros
  • 152 m²
Visão Geral
  • ID: MFRO6164503
  • Quartos: 3
  • Banheiros: 3
  • Tamanho: 152 m²
Detalhes do Imóvel
Observações
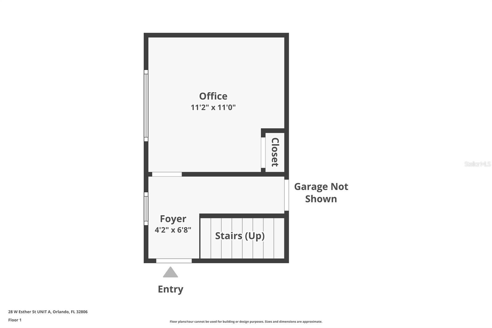
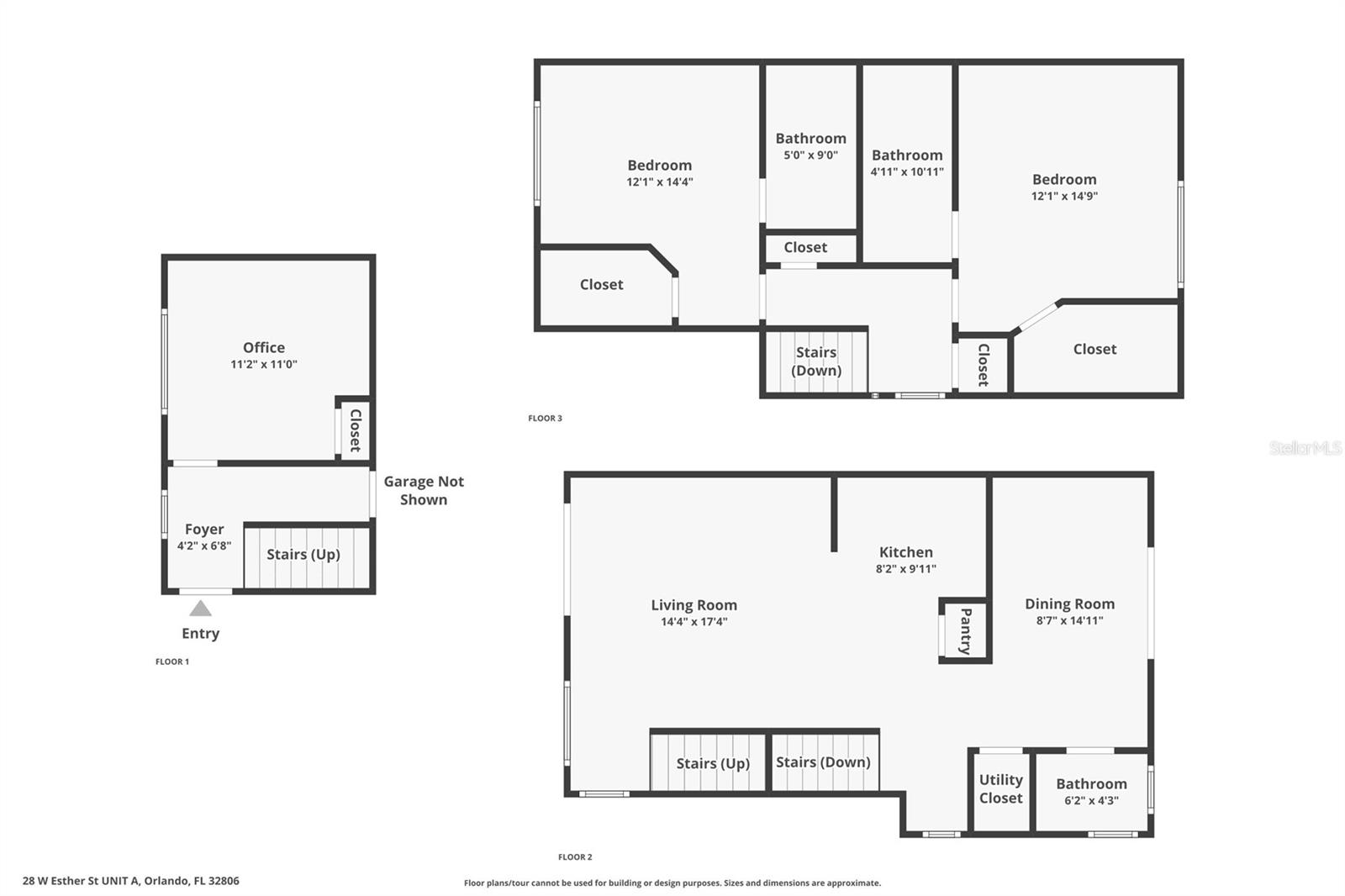
ABAIXO DA TAXA BANCÁRIA FINANCIAMENTO AO VENDEDOR DISPONÍVEL! Bem-vindo a esta linda residência urbana de 3 quartos, 2,5 banheiros e garagem para 2 carros, uma verdadeira joia no vibrante bairro SODO de Orlando. Esta casa repleta de luz possui doze janelas adicionais, garantindo um ambiente claro e arejado. Com uma localização única, oferece espaço extra e privacidade, sem vizinhos diretos do outro lado da rua. Ao entrar, você é recebido por um cômodo versátil no térreo, perfeito como quarto ou home office. O coração da casa fica no segundo andar, com uma espaçosa cozinha em plano aberto e área de estar. A cozinha, com piso de porcelanato com efeito de madeira, flui perfeitamente para a área de estar, tornando-a ideal tanto para relaxamento quanto para entretenimento. Duas varandas externas proporcionam um local sereno para seu café da manhã ou uma taça de vinho à noite. Este nível também inclui uma espaçosa sala de jantar e um conveniente lavabo. O andar superior é dedicado ao conforto e à privacidade, abrigando duas amplas suítes duplas, cada uma com seu próprio banheiro completo e closet. Aqui também encontra um armário de lavandaria (com máquina de lavar e secar roupa) e um armário de roupa que complementam a funcionalidade deste espaço. A eficiência energética é fundamental nesta casa, destacada por uma nova unidade de ar condicionado Trane topo de gama, com garantia de 10 anos. A localização é tudo, e esta casa está centralmente localizada no bairro SODO de Orlando. A poucos quarteirões de distância estão um Super Target, LA Fitness, Neighborhood Walmart e duas mercearias Publix. Desfrute da proximidade do centro de Orlando, do Thornton Park, do Lago Eola, dos melhores restaurantes, bares, lojas, do Dr. Phillips Performing Arts Center e do campus principal do Orlando Health, a apenas três quarteirões de distância. Também fica a uma curta distância de carro das principais atrações e de fácil acesso às rodovias. O Wadeview Park, com a sua piscina aquecida e campos de ténis, fica apenas a dez minutos a pé. Desfrute de uma vida de baixa manutenção enquanto a associação do condomínio cuida do paisagismo externo, fachada, telhado, sistema de sprinklers, seguro de propriedade, controle de pragas e muito mais. Esta moradia não é apenas uma casa; é um estilo de vida, então agende sua exibição privada hoje mesmo! <div style="padding:56.25% 0 0 0;position:relative;"><iframe src="https://my.matterport.com/show/?m=eztNRrYu51v&mls=1" frameborder="0" permitir= "reprodução automática; tela cheia" permitfullscreen style="posição:absolute;top:0;esquerda:0;largura:100%;altura:100%;"></iframe></div>
Considerações Financeiras
Preço:
$449,900
Taxa de HOA:
286
Valor do Imposto:
$4781
Preço por m²:
$273.5
Descrição Legal do Imposto:
CONDOMÍNIO DELANEY COURT 8505/0514 UNITA BLDG 3
Características Exteriores
Tamanho do Lote:
700
Características do Lote:
Ajardinado, Calçada, Pavimentado
Beira-mar:
Não
Vagas de Estacionamento:
N/D
Estacionamento:
Acesso ao beco, abridor de porta de garagem, garagem voltada para trás, nível do solo
Telhado:
Telha
Piscina:
Não
Características da Piscina:
N/D
Características Interiores
Quartos:
3
Banheiros:
3
Aquecimento:
Central, Elétrica
Resfriamento:
Central Aérea
Eletrodomésticos:
Descarte, secadora, aquecedor elétrico de água, micro-ondas, fogão, geladeira, lavadora
Mobiliado:
Não
Andar:
Tapete, Azulejo
Níveis:
Dois
Características Adicionais
Subtipo de Imóvel:
Moradia
Estilo:
N/D
Ano de Construção:
2007
Tipo de Construção:
Bloco, Estuque
Vagas na Garagem:
Sim
Vagas Cobertas:
N/D
Orientação da Fachada:
Leste
Animais Permitidos:
Não
Condição Especial:
Nenhum
Características Adicionais:
Varanda, Iluminação, Calhas de Chuva, Calçada, Portas de Correr
Características Adicionais 2:
As restrições de aluguel são do melhor conhecimento do proprietário e do agente de listagem. Os compradores são responsáveis ​​por confirmar entrando em contato com o HOA e/ou município.
Mapa
  • Endereço
    28 W ESTHER ST #A
Fale com um profissional
Por Que Nos Escolher?
  • Comunicação e Transparência
  • Negociação Qualificada
  • Rede Profissional Robusta
  • Suporte Pós-Venda
Propriedades em Destaque

Imóveis relacionados

avt
Daniel Dourado
$ 375,000
avt
Daniel Dourado
$ 380,000
avt
Daniel Dourado
$ 385,000
avt
Daniel Dourado
$ 294,900
avt
Daniel Dourado
$ 299,990
avt
Daniel Dourado
$ 219,900
avt
Daniel Dourado
$ 489,900
avt
Daniel Dourado
$ 429,000
avt
Daniel Dourado
$ 299,990
avt
Daniel Dourado
$ 472,440
avt
Daniel Dourado
$ 899,000
avt
Daniel Dourado
$ 330,000