Active

$350,000

Características:
  • 4 Quartos
  • 2 Banheiros
  • 130 m²
Visão Geral
  • ID: MFROM712289
  • Quartos: 4
  • Banheiros: 2
  • Tamanho: 130 m²
Detalhes do Imóvel
Observações
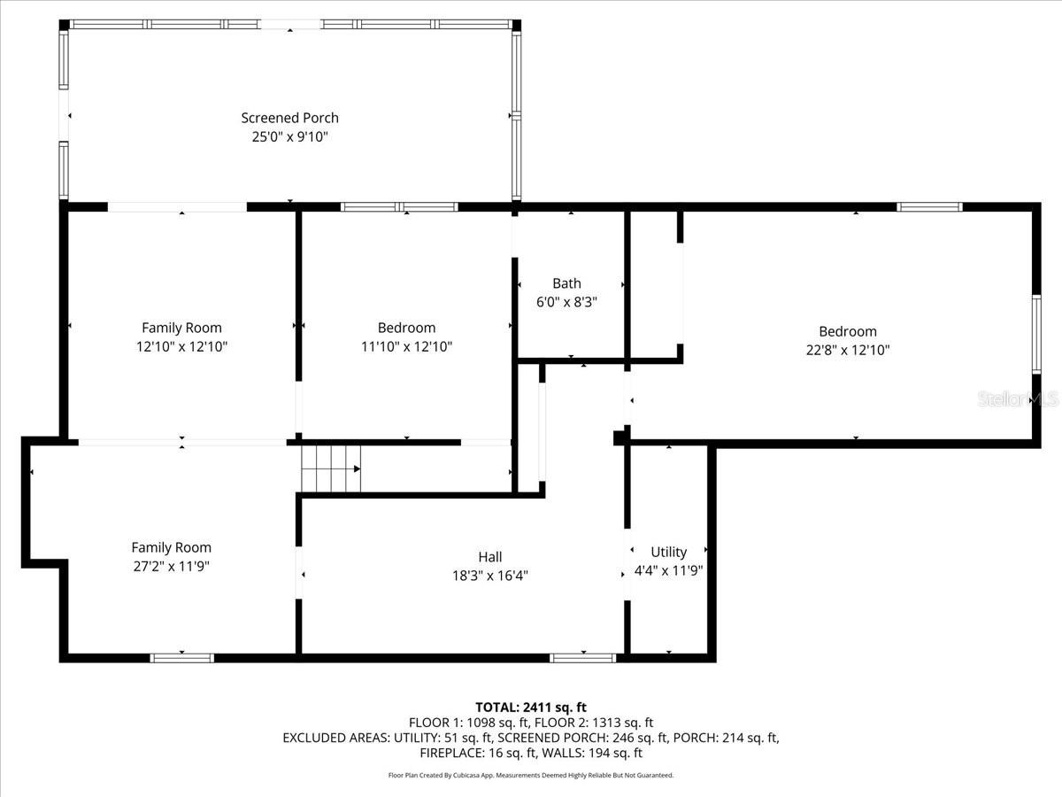
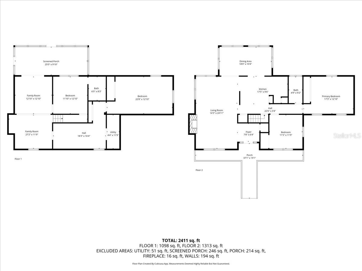
Charmosa casa de 4 quartos em meio acre na bela Ocala! Bem-vindo à casa de família dos seus sonhos! Esta residência unifamiliar de 4 quartos e 2 banheiros fica em um espaçoso terreno de 0,58 acres, oferecendo a combinação perfeita de conforto, charme e conveniência. Aproximadamente mais de 2.400 pés quadrados!! Entre e apaixone-se pelas duas salas de estar convidativas, pela lareira aconchegante e pela sala de jantar bem iluminada com passagem conveniente para a cozinha - perfeita para receber a família e os amigos. A cozinha oferece duas despensas e bastante espaço de arrumação em toda a casa para manter tudo organizado. Aproveite o melhor da vida na Flórida na grande varanda com tela, com vista para a piscina acima do solo e o galpão do quintal - ideal para relaxar, fazer jardinagem ou se divertir no fim de semana. Situada em um ambiente tranquilo e sereno, mas a poucos minutos de lojas, restaurantes e de tudo o que Ocala tem a oferecer, esta propriedade realmente tem tudo. Não deixe esta casa única passar por você - agende sua exibição privada hoje mesmo!
Considerações Financeiras
Preço:
$350,000
Taxa de HOA:
N/D
Valor do Imposto:
$957.71
Preço por m²:
$248.4
Descrição Legal do Imposto:
SEC 31 TWP 15 RGE 22 PLAT BOOK UNR PÁGINA 079 SHERWOOD HILLS BLK D LOTE 3 AKA: COM AT INT DE E BDY DO LOTE 18 DE MCINTOSH SUB DE W 1/2 DE SANCHEZ GRANT & S ROW LINE DE LEMON AV, TH S 88-30-31 W AL ROW 448,1 FT, TH S 00-16-38 E 3248,26 pés, TH S 89-41-25 W 290,29 FT PARA POB, TH S 89-41-25 W 121 FT, TH S 04-31-10 E 223,95 FT, TH N 75-34-17 E 122,5 FT, TH N 04-31-10 W 193,98 FT PARA POB EXCETO: COM AT INT OF E BDY OF LOTE 18 DE MCINTOSH SUB DE W 1/2 DE SANCHEZ GRANT & S ROW LINE DE LEMON AVE TH S 00-16-38 E ALG E BNDY LOTE 18 41,55 FT PARA S ROW LEMON AVE TH ALG W ROW S 88-30-31 W 448,10 FT TH S 00-16-38 E ALG W ROW KENSINGTON DR 3248,26 FT PARA S ROW KENT DR TH S 89-41-25 W ALG S LINHA 290,29 FT TH S 04-31-10 E 193,98 FT TH S 75-34-25 W 28,54 FT PARA POB DE
Características Exteriores
Tamanho do Lote:
25265
Características do Lote:
N/D
Beira-mar:
Não
Vagas de Estacionamento:
N/D
Estacionamento:
N/D
Telhado:
Telha
Piscina:
Sim
Características da Piscina:
Acima do solo
Características Interiores
Quartos:
4
Banheiros:
2
Aquecimento:
Central
Resfriamento:
Central Aérea
Eletrodomésticos:
Máquina de lavar louça, secadora, fogão, geladeira, lavadora, amaciante de água
Mobiliado:
Não
Andar:
Carpete, Madeira, Laminado, Azulejo, Madeira
Níveis:
Dois
Características Adicionais
Subtipo de Imóvel:
Residência Unifamiliar
Estilo:
N/D
Ano de Construção:
1975
Tipo de Construção:
Bloquear
Vagas na Garagem:
Não
Vagas Cobertas:
N/D
Orientação da Fachada:
Norte
Animais Permitidos:
Não
Condição Especial:
Nenhum
Características Adicionais:
Iluminação, calhas de chuva, portas de correr
Características Adicionais 2:
N/D
Mapa
  • Endereço
    430 SW 43RD PL
Fale com um profissional
Por Que Nos Escolher?
  • Comunicação e Transparência
  • Negociação Qualificada
  • Rede Profissional Robusta
  • Suporte Pós-Venda
Propriedades em Destaque

Imóveis relacionados

avt
Daniel Dourado
$ 699,900
avt
Daniel Dourado
$ 380,000
avt
Daniel Dourado
$ 339,000
avt
Daniel Dourado
$ 320,490
avt
Daniel Dourado
$ 425,000
avt
Daniel Dourado
$ 309,000
avt
Daniel Dourado
$ 368,990
avt
Daniel Dourado
$ 312,490