Active

$264,990

Características:
  • 3 Quartos
  • 2 Banheiros
  • 123 m²
Visão Geral
  • ID: MFROM709738
  • Quartos: 3
  • Banheiros: 2
  • Tamanho: 123 m²
Detalhes do Imóvel
Observações
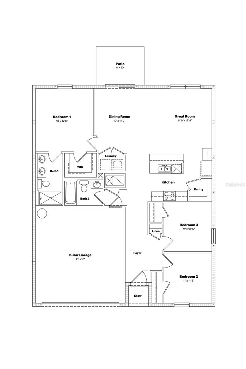
Em construção. Esta casa de 3 quartos e 2 banheiros, com um bloqueio de concreto de concreto, possui uma planta baixa aberta que otimiza o espaço de estar. A espaçosa cozinha tem vista para a grande sala, área de jantar e pátio ao ar livre. A cozinha fica cheia de utensílios de aço inoxidável, incluindo uma máquina de lavar louça embutida, alcance e microondas. A suíte primária está localizada em direção à parte de trás da casa, com um espaçoso closet e banheiro privativo com pias de vaidade dupla. Dois quartos adicionais estão localizados em direção à frente da casa e compartilham um banheiro do outro lado do corredor. Imagens, fotografias, cores, recursos e tamanhos são apenas para fins de ilustração e variam das casas como construídas. Informações domésticas e comunitárias, incluindo preços, recursos incluídos, termos, disponibilidade e comodidades estão sujeitos a alterações e venda prévia a qualquer momento, sem aviso prévio. CRC057592.
Considerações Financeiras
Preço:
$264,990
Taxa de HOA:
70
Valor do Imposto:
$0
Preço por m²:
$199.54
Descrição Legal do Imposto:
SEC 09 TWP 17 RGE 21 Plat Book 16 Página 146 McGinley Landing Fase 1 Lote 14
Características Exteriores
Tamanho do Lote:
5750
Características do Lote:
N/D
Beira-mar:
Não
Vagas de Estacionamento:
N/D
Estacionamento:
N/D
Telhado:
Telha
Piscina:
Não
Características da Piscina:
N/D
Características Interiores
Quartos:
3
Banheiros:
2
Aquecimento:
Elétrica, Bomba de Calor
Resfriamento:
Central Aérea
Eletrodomésticos:
Máquina de lavar louça, micro-ondas, fogão
Mobiliado:
Não
Andar:
Tapete, Vinil Luxo
Níveis:
Um
Características Adicionais
Subtipo de Imóvel:
Residência Unifamiliar
Estilo:
N/D
Ano de Construção:
2025
Tipo de Construção:
Bloquear
Vagas na Garagem:
Sim
Vagas Cobertas:
N/D
Orientação da Fachada:
Noroeste
Animais Permitidos:
Sim
Condição Especial:
Nenhum
Características Adicionais:
N/D
Características Adicionais 2:
De acordo com as diretrizes HOA
Mapa
  • Endereço
    5788 SW 132ND PL
Fale com um profissional
Por Que Nos Escolher?
  • Comunicação e Transparência
  • Negociação Qualificada
  • Rede Profissional Robusta
  • Suporte Pós-Venda
Propriedades em Destaque

Imóveis relacionados

avt
Daniel Dourado
$ 699,900
avt
Daniel Dourado
$ 380,000
avt
Daniel Dourado
$ 339,000
avt
Daniel Dourado
$ 320,490
avt
Daniel Dourado
$ 425,000
avt
Daniel Dourado
$ 309,000
avt
Daniel Dourado
$ 368,990
avt
Daniel Dourado
$ 312,490