Active

$285,000

Características:
  • 3 Quartos
  • 2 Banheiros
  • 165 m²
Visão Geral
  • ID: MFROM703659
  • Quartos: 3
  • Banheiros: 2
  • Tamanho: 165 m²
Detalhes do Imóvel
Observações
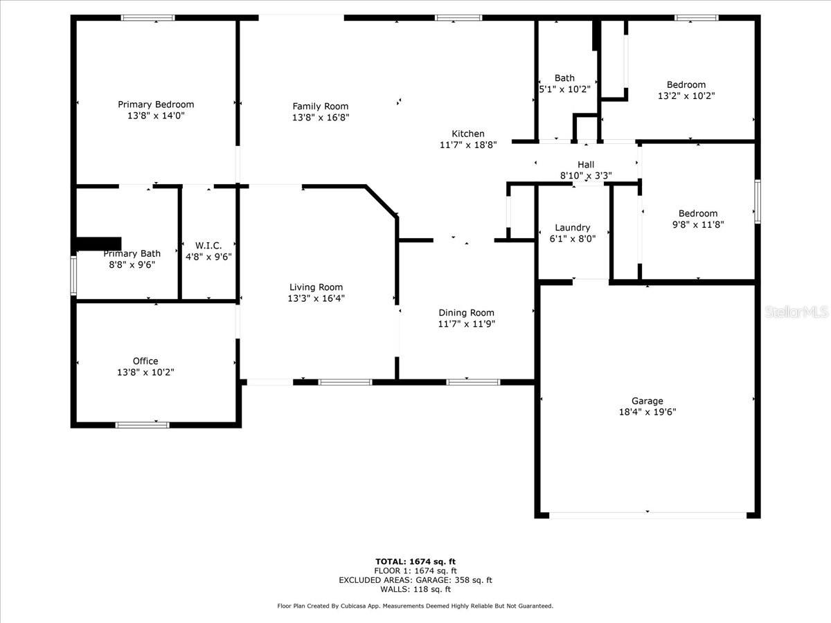
*** O vendedor dará US $ 5.000 para o custo de fechamento com oferta aceitável *** Bem -vindo para casa! Esta casa lindamente mantida de 3 quartos e 2 banheiros oferece um espaço versátil/flexão flexível, ideal para um escritório em casa ou sala de jogos. Desfrute de paz de espírito com um novo A/C (2025), novo telhado (2024), nova fossa séptica em (2021). O interior apresenta piso de tábua de vinil de luxo, ventiladores de teto por toda parte e um banheiro primário atualizado. A planta baixa fornece privacidade e funcionalidade, enquanto a lavanderia interna adiciona conveniência diária. Saia de um quintal totalmente cercado com cercas de privacidade de vinil, completa com uma fogueira - perfeita para relaxar ou divertir. Localizado em uma comunidade sem taxas de HOA ou CDD, esta casa está pronta e bem cuidada.
Considerações Financeiras
Preço:
$285,000
Taxa de HOA:
N/D
Valor do Imposto:
$1958
Preço por m²:
$160.11
Descrição Legal do Imposto:
SEC 06 TWP 17 RGE 21 Plat Book o Página 194 Unidade Marion Oaks 10 Blk 906 Lote 15
Características Exteriores
Tamanho do Lote:
10019
Características do Lote:
N/D
Beira-mar:
Não
Vagas de Estacionamento:
N/D
Estacionamento:
Entrada de automóveis, abridor de porta de garagem
Telhado:
Telha
Piscina:
Não
Características da Piscina:
N/D
Características Interiores
Quartos:
3
Banheiros:
2
Aquecimento:
Central
Resfriamento:
Central Aérea
Eletrodomésticos:
Cooktop, Máquina de Lavar Louça, Descarte, Aquecedor Elétrico de Água, Microondas, Fogão, Geladeira
Mobiliado:
Sim
Andar:
Vinil de luxo, azulejo
Níveis:
Um
Características Adicionais
Subtipo de Imóvel:
Residência Unifamiliar
Estilo:
N/D
Ano de Construção:
2006
Tipo de Construção:
Bloco, concreto, estuque
Vagas na Garagem:
Sim
Vagas Cobertas:
N/D
Orientação da Fachada:
Sul
Animais Permitidos:
Não
Condição Especial:
Nenhum
Características Adicionais:
Calhas de chuva
Características Adicionais 2:
N/D
Mapa
  • Endereço
    7327 SW 129TH LN
Fale com um profissional
Por Que Nos Escolher?
  • Comunicação e Transparência
  • Negociação Qualificada
  • Rede Profissional Robusta
  • Suporte Pós-Venda
Propriedades em Destaque

Imóveis relacionados

avt
Daniel Dourado
$ 415,000
avt
Daniel Dourado
$ 365,000
avt
Daniel Dourado
$ 458,900
avt
Daniel Dourado
$ 925,000
avt
Daniel Dourado
$ 657,990
avt
Daniel Dourado
$ 835,000
avt
Daniel Dourado
$ 493,990
avt
Daniel Dourado
$ 410,000