Pending

$223,990

Características:
  • 3 Quartos
  • 3 Banheiros
  • 135 m²
Visão Geral
  • ID: MFROM701644
  • Quartos: 3
  • Banheiros: 3
  • Tamanho: 135 m²
Detalhes do Imóvel
Observações
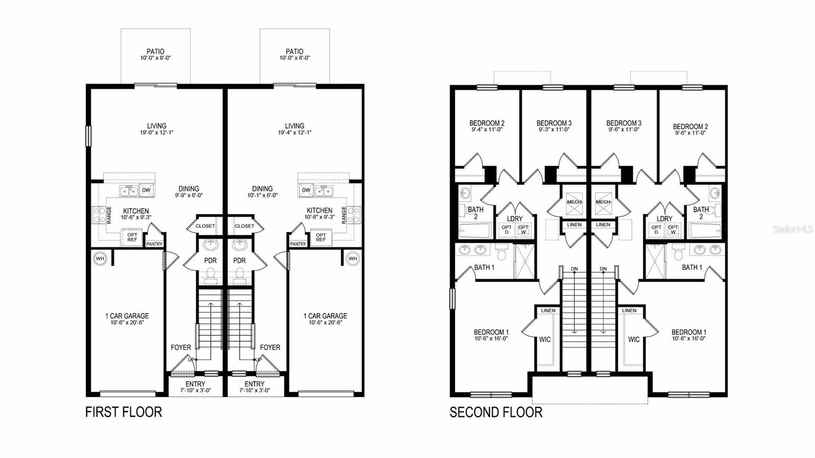
Uma ou mais fotos foram virtualmente encenadas. Em construção. Esta residência urbana de dois andares tem um layout de conceito aberto no andar de baixo que inclui uma grande cozinha aberta, um lavabo e uma espaçosa sala de família com vista para um pátio. O segundo andar inclui uma espaçosa Suite Primária com casa de banho privativa, dois quartos adicionais, uma 2ª casa de banho completa e zona de lavandaria. Esta casa vem com todos os eletrodomésticos, incluindo geladeira, lava-louças embutida, fogão elétrico, micro-ondas, lavadora e secadora. Imagens, fotografias, cores, características e tamanhos são apenas para fins ilustrativos e variam de acordo com as casas construídas. As informações da casa e da comunidade, incluindo preços, recursos incluídos, termos, disponibilidade e comodidades, estão sujeitas a alterações e venda prévia a qualquer momento, sem aviso prévio ou obrigação. CRC057592.
Considerações Financeiras
Preço:
$223,990
Taxa de HOA:
405
Valor do Imposto:
$0
Preço por m²:
$153.63
Descrição Legal do Imposto:
SEC 17 TWP 16 RGE 21 Plat Book 015 Página 130 Laurel Commons Lote 30
Características Exteriores
Tamanho do Lote:
1600
Características do Lote:
N/D
Beira-mar:
Não
Vagas de Estacionamento:
N/D
Estacionamento:
N/D
Telhado:
Telha
Piscina:
Não
Características da Piscina:
N/D
Características Interiores
Quartos:
3
Banheiros:
3
Aquecimento:
Central, Elétrica
Resfriamento:
Central Aérea
Eletrodomésticos:
Máquina de lavar louça, secadora, micro-ondas, fogão, geladeira, lavadora
Mobiliado:
Não
Andar:
Tapete, Azulejo Cerâmico
Níveis:
Dois
Características Adicionais
Subtipo de Imóvel:
Moradia
Estilo:
N/D
Ano de Construção:
2025
Tipo de Construção:
Quadro
Vagas na Garagem:
Sim
Vagas Cobertas:
N/D
Orientação da Fachada:
Noroeste
Animais Permitidos:
Sim
Condição Especial:
Nenhum
Características Adicionais:
N/D
Características Adicionais 2:
De acordo com as diretrizes HOA
Mapa
  • Endereço
    6561 SW 81ST LOOP
Fale com um profissional
Por Que Nos Escolher?
  • Comunicação e Transparência
  • Negociação Qualificada
  • Rede Profissional Robusta
  • Suporte Pós-Venda
Propriedades em Destaque

Imóveis relacionados

img
  • Featured
  • Active
Townhouse

31788 KESTREL CALLING DR

  • 3
  • 3
  • 148 m²
avt
Daniel Dourado
$ 299,990
img
  • Featured
  • Active
Townhouse

31784 KESTREL CALLING DR

  • 3
  • 3
  • 148 m²
avt
Daniel Dourado
$ 295,990
img
  • Featured
  • Active
Townhouse

31825 KESTREL CALLING DR

  • 3
  • 3
  • 148 m²
avt
Daniel Dourado
$ 289,990
avt
Daniel Dourado
$ 299,750
avt
Daniel Dourado
$ 348,455
avt
Daniel Dourado
$ 349,000
img
  • Featured
  • Active
Townhouse

6343 MERRICK LANDING BLVD

  • 2
  • 2
  • 99 m²
avt
Daniel Dourado
$ 339,775
avt
Daniel Dourado
$ 239,900
img
  • Featured
  • Active
Townhouse

18103 PARADISE POINT DR

  • 3
  • 3
  • 126 m²
avt
Daniel Dourado
$ 225,000
avt
Daniel Dourado
$ 245,000
avt
Daniel Dourado
$ 300,015
avt
Daniel Dourado
$ 235,000