Sold

$233,990

Características:
  • 3 Quartos
  • 3 Banheiros
  • 135 m²
Visão Geral
  • ID: MFROM699969
  • Quartos: 3
  • Banheiros: 3
  • Tamanho: 135 m²
Detalhes do Imóvel
Observações
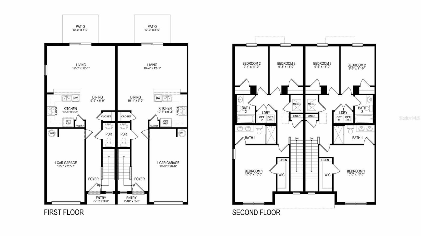
Uma ou mais fotos foram virtualmente encenadas. Em construção. Esta residência urbana de dois andares tem um layout de conceito aberto no andar de baixo que inclui uma grande cozinha aberta, um lavabo e uma espaçosa sala de família com vista para um pátio. O segundo andar inclui uma espaçosa Suite Primária com casa de banho privativa, dois quartos adicionais, uma 2ª casa de banho completa e zona de lavandaria. Esta casa vem com todos os eletrodomésticos, incluindo geladeira, lava-louças embutida, fogão elétrico, micro-ondas, lavadora e secadora. Imagens, fotografias, cores, características e tamanhos são apenas para fins ilustrativos e variam de acordo com as casas construídas. As informações da casa e da comunidade, incluindo preços, recursos incluídos, termos, disponibilidade e comodidades, estão sujeitas a alterações e venda prévia a qualquer momento, sem aviso prévio ou obrigação. CRC057592.
Considerações Financeiras
Preço:
$233,990
Taxa de HOA:
405
Valor do Imposto:
$0
Preço por m²:
$159.8
Descrição Legal do Imposto:
SEC 17 TWP 16 RGE 21 Plat Book 015 Página 130 Laurel Commons Lote 44
Características Exteriores
Tamanho do Lote:
1600
Características do Lote:
N/D
Beira-mar:
Não
Vagas de Estacionamento:
N/D
Estacionamento:
N/D
Telhado:
Telha
Piscina:
Não
Características da Piscina:
N/D
Características Interiores
Quartos:
3
Banheiros:
3
Aquecimento:
Central, Elétrica
Resfriamento:
Central Aérea
Eletrodomésticos:
Máquina de lavar louça, secadora, micro-ondas, fogão, geladeira, lavadora
Mobiliado:
Não
Andar:
Tapete, Azulejo Cerâmico
Níveis:
Dois
Características Adicionais
Subtipo de Imóvel:
Moradia
Estilo:
N/D
Ano de Construção:
2024
Tipo de Construção:
Quadro
Vagas na Garagem:
Sim
Vagas Cobertas:
N/D
Orientação da Fachada:
Noroeste
Animais Permitidos:
Sim
Condição Especial:
Nenhum
Características Adicionais:
N/D
Características Adicionais 2:
De acordo com as diretrizes HOA
Mapa
  • Endereço
    6591 SW 81ST LOOP
Fale com um profissional
Por Que Nos Escolher?
  • Comunicação e Transparência
  • Negociação Qualificada
  • Rede Profissional Robusta
  • Suporte Pós-Venda
Propriedades em Destaque

Imóveis relacionados

avt
Daniel Dourado
$ 238,000
avt
Daniel Dourado
$ 305,000
avt
Daniel Dourado
$ 394,900
avt
Daniel Dourado
$ 315,000
avt
Daniel Dourado
$ 1,247,000
avt
Daniel Dourado
$ 462,960
avt
Daniel Dourado
$ 299,490
avt
Daniel Dourado
$ 289,000
img
  • Featured
  • Active
Townhouse

1669 GREENLEAF WOODS CV

  • 3
  • 3
  • 165 m²
avt
Daniel Dourado
$ 481,270
avt
Daniel Dourado
$ 386,880
avt
Daniel Dourado
$ 450,790
avt
Daniel Dourado
$ 219,900