Sold

$425,000

Características:
  • 3 Quartos
  • 3 Banheiros
  • 167 m²
Visão Geral
  • ID: MFROM699872
  • Quartos: 3
  • Banheiros: 3
  • Tamanho: 167 m²
Detalhes do Imóvel
Observações
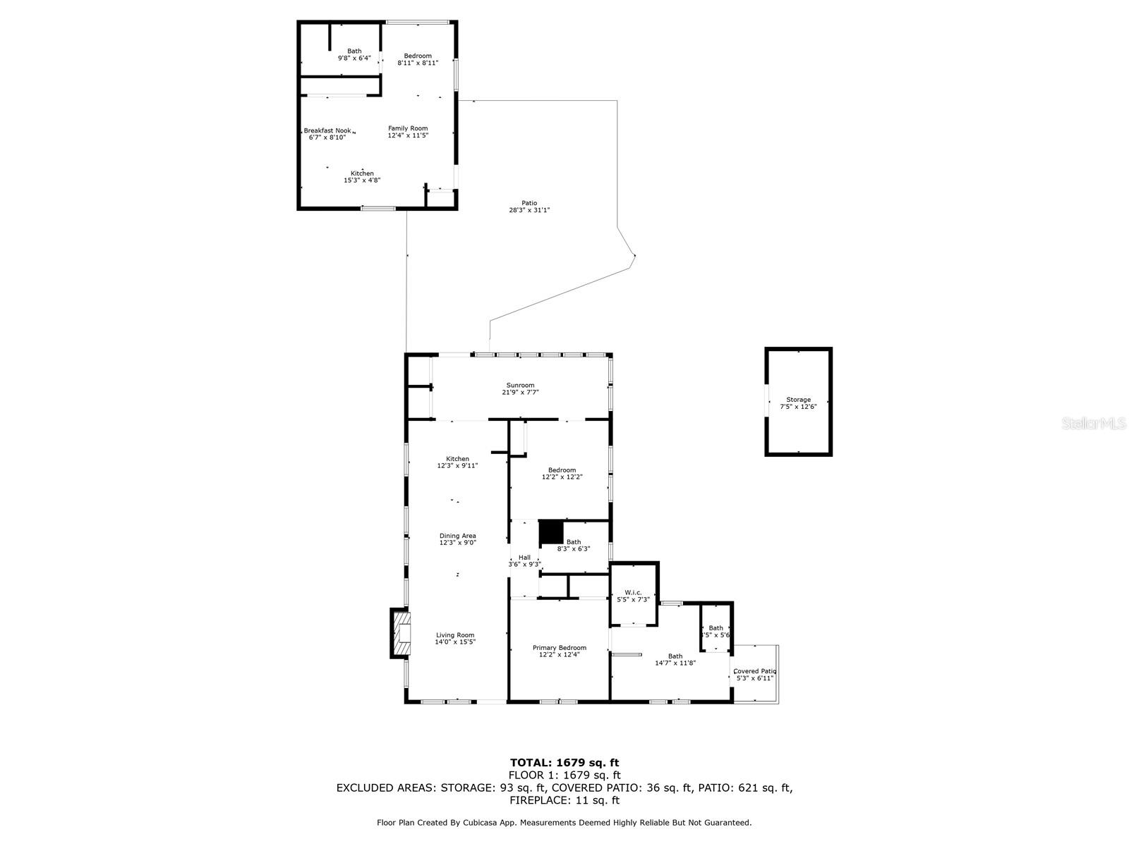
A casa principal é um banheiro de 2 quartos e 2 com uma sala de bônus (atualmente usamos como um escritório) e a casa de convidado isolada tem sua própria entrada, cozinha, banheiro completo e uma área de quarto, além de uma garagem de 2 carros destacada fora do beco. A principal casa tem um novo telhado em novembro de 2023 e teto para casa e teto de garagem em 2020. A casa principal teve uma reforma completa de 2010 a 2012 e uma casa de hóspedes em 2020. Todos os armários elétricos, hidráulicos e de cozinha, também os 3 banheiros foram totalmente renovados, todos pisos, todas as janelas e portas externas em ambas as casas. Cada casa tem seu próprio painel do disjuntor e aquecedores de água quente a gás sem tanques. O quarto principal da casa principal tem uma grande caminhada no armário e um segundo armário, além de um banheiro na suíte com um chuveiro de azulejos personalizados. Um banheiro de hóspedes com um chuveiro na casa principal também. A casa de convidado está totalmente em azulejos e azulejos personalizados no chuveiro e está fora do pátio de pavimentadora de tijolos com a entrada do beco. O pátio tem uma fogueira a gás incorporada, área de churrasqueira a gás coberta e paisagismo lindamente. A garagem de 2 carros destacada foi construída em 2020 e tem acesso traseiro. O Full House Gas Gerator foi adicionado em 2020 e uma nova cerca de privacidade em 2024 em torno do perímetro e laterais da propriedade. Ótimo para aluguel de curto prazo, residência em período integral ou a casa de hóspedes pode ser usada para um escritório em casa. Esta propriedade fica a meia milha do centro de Ocala e a menos de 5 km de ambos os hospitais. Também 9 milhas para o World Equestrian Center.
Considerações Financeiras
Preço:
$425,000
Taxa de HOA:
N/D
Valor do Imposto:
$2720
Preço por m²:
$245.02
Descrição Legal do Imposto:
SEC 17 TWP 15 RGE 22 PLAT LIVRO B PÁGINA 253 WYOMINA TERRACE LOTE 102
Características Exteriores
Tamanho do Lote:
11330
Características do Lote:
Limites da cidade, pavimentados
Beira-mar:
Não
Vagas de Estacionamento:
N/D
Estacionamento:
Acesso ao beco, abridor de porta de garagem
Telhado:
Telha
Piscina:
Não
Características da Piscina:
N/D
Características Interiores
Quartos:
3
Banheiros:
3
Aquecimento:
Central
Resfriamento:
Central Aérea
Eletrodomésticos:
Máquina de lavar louça, micro-ondas, fogão, geladeira, aquecedor de água sem tanque
Mobiliado:
Sim
Andar:
Madeira nobre, azulejo
Níveis:
Um
Características Adicionais
Subtipo de Imóvel:
Residência Unifamiliar
Estilo:
N/D
Ano de Construção:
1927
Tipo de Construção:
Bloco, quadro
Vagas na Garagem:
Sim
Vagas Cobertas:
N/D
Orientação da Fachada:
Norte
Animais Permitidos:
Sim
Condição Especial:
Nenhum
Características Adicionais:
Pátio
Características Adicionais 2:
Aluguel de curto prazo OK.
Mapa
  • Endereço
    942 NE 5TH ST
Fale com um profissional
Por Que Nos Escolher?
  • Comunicação e Transparência
  • Negociação Qualificada
  • Rede Profissional Robusta
  • Suporte Pós-Venda
Propriedades em Destaque

Imóveis relacionados

avt
Daniel Dourado
$ 564,000
avt
Daniel Dourado
$ 351,990
avt
Daniel Dourado
$ 559,000
avt
Daniel Dourado
$ 589,990
avt
Daniel Dourado
$ 381,490
avt
Daniel Dourado
$ 380,990
avt
Daniel Dourado
$ 344,885